アジールコート大森西 - アパマンショップ蒲田東口店(株)ゼントが提供する賃貸物件情報/東京都大田区大森西5/大森町駅の賃貸物件情報 - SUUMO(スーモ)賃貸
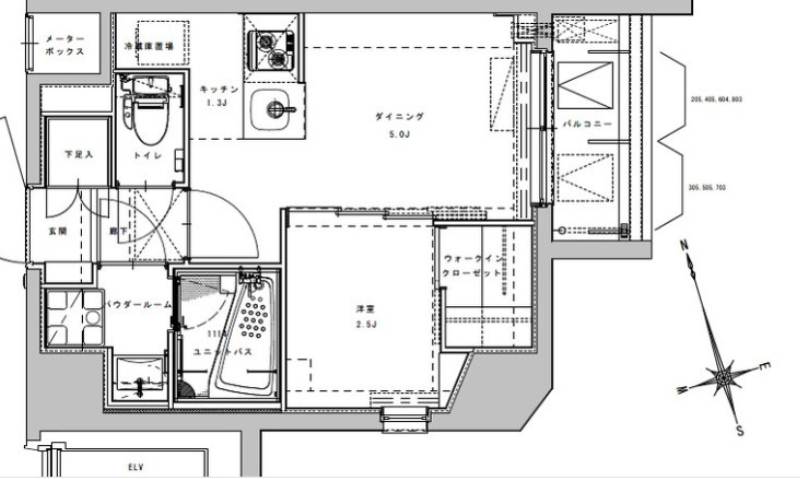
| 間取り詳細 | DK | 構造 | 鉄筋コン |
|---|---|---|---|
| 階建 | 3階/8階建 | 築年月 | 2022年3月 |
| エネルギー 消費性能 |
- | 断熱性能 | - |
| 目安光熱費 |
|
||
| 損保 | 要 | 駐車場 | - |
| 入居 | 相談 | 取引態様 | 仲介 |
| 条件 | - | 取り扱い店舗 物件コード |
104740346 |
| SUUMO 物件コード |
100501935150 | 総戸数 | 69戸 |
| 情報更新日 | 2026/04/15 | 次回更新予定日 | 2026/04/23 |
| バルコニー面積 |
|
||
| 保証会社 |
|
||
| ほか初期費用 |
|
||
| 備考 |
|
||
| 周辺情報 |
|
携帯用QRコード | |

TEL:03-5710-8801
取り扱い物件数No.1、住まいの事ならおまかせください!地域に精通したスタッフが出し惜しみなくご紹介いたします
大田区に位置する羽田空港は国際化が進み世界の玄関口として活躍が期待される今注目の場所です。弊社はそんな大田区、蒲田の地域に密着した不動産会社です。地元の大家さんや大手ハウスメーカー、大手法人様とのお取引も多数ございます。
物件数も他社には負けません。すべての空室物件をご紹介可能です。是非お問合せください。
お客様の満足を徹底的に追及いたします。
【掲載物件情報について】
・SUUMOは「自ら居住するための住宅」をお探しの方に向けたポータルサイトです。契約者以外の方が使用する(例:第三者に宿泊させる等)ことを目的としたお問合せはご遠慮ください
・SUUMOではユーザーの皆様に最も信頼されるサイトを目指して、物件情報の精度向上に努めております。SUUMOに掲載されている物件情報について「事実と異なる点や誤解を招く表現がある」「成約済の物件が掲載されている」などにお気づきになりましたら、以下のページからご連絡ください
|
13万円/ワンルーム
|
12.8万円/1LDK
|
13.1万円/1K
|
|
29.5万円/1LDK
|
22万円/1LDK
|
11.7万円/1K
|
|
13.7万円/ワンルーム
|
17.7万円/1LDK
|
19.8万円/1LDK
|
|
16.7万円/1LDK
|
9万円/1K
|
14.3万円/1DK
|
|
18.7万円/1LDK
|
13.7万円/1LDK
|
11.68万円/1K
|
|
25.9万円/2LDK
|
13.2万円/1DK
|
16.5万円/1LDK
|
|
12.9万円/ワンルーム
|
24.1万円/1LDK
|
13.6万円/1K
|
|
17.7万円/1LDK
|
19.5万円/1LDK
|
17万円/1K
|
|
38万円/2LDK
|
9.5万円/1LDK
|
16万円/1K
|
|
34.3万円/3LDK
|
22.5万円/1K
|
8万円/1K
|
お気に入りに追加しました。 |