東京メトロ有楽町線 市ケ谷駅 地下1地上15階建 築13年 - (株)ルームが提供する賃貸物件情報/東京都千代田区四番町/市ケ谷駅の賃貸物件情報 - SUUMO(スーモ)賃貸
| 間取り詳細 | - | 構造 | 鉄筋コン |
|---|---|---|---|
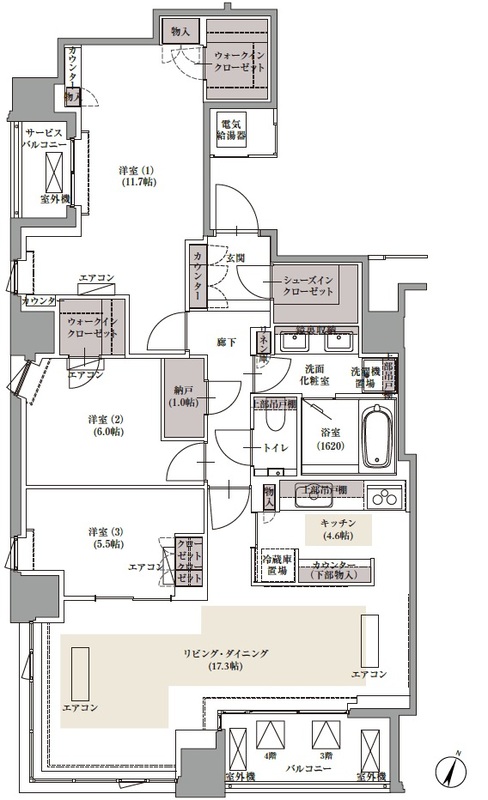
| 階建 | 3階/地下1地上15階建 | 築年月 | 2014年2月 |
| エネルギー 消費性能 |
- | 断熱性能 | - |
| 目安光熱費 |
|
||
| 損保 | 要 | 駐車場 | - |
| 入居 | 相談 | 取引態様 | 仲介 |
| 条件 | ペット相談/楽器相談 | 取り扱い店舗 物件コード |
- |
| SUUMO 物件コード |
100501913938 | 総戸数 | 32戸 |
| 情報更新日 | 2026/04/15 | 次回更新予定日 | 2026/04/23 |
| 敷金積み増し |
|
||
| 契約期間 |
|
||
| 保証会社 |
|
||
| ほか初期費用 |
|
||
| 備考 |
|
||
| 周辺情報 |
|
携帯用QRコード | |

TEL:03-6811-7005
経験豊富、全スタッフ宅建取得者なのでお客様のベストなお部屋のご提案できます!【他社物件でもご紹介可能】
【お客様第一主義】
お客様に、いつでもどこでも当社最新の物件情報をお届けする株式会社ルームは、インターネット環境も充実しておりますのでご自宅や会社にリアルタイムでアパートやマンションの情報をお届けします。また、当社独自ネットワークにより、敷金・礼金・保証金・敷引0物件など多数そろえております。お部屋探しの相談窓口としてお使いください。
【契約代行業務】
物件のご案内等無しで契約までのお手続きのお手伝いのみのお客様にはさらにお安く最安値でのご提案が可能です。
他社掲載物件、どんな物件でも対応します。
詳細はご相談ください。
【掲載物件情報について】
・SUUMOは「自ら居住するための住宅」をお探しの方に向けたポータルサイトです。契約者以外の方が使用する(例:第三者に宿泊させる等)ことを目的としたお問合せはご遠慮ください
・SUUMOではユーザーの皆様に最も信頼されるサイトを目指して、物件情報の精度向上に努めております。SUUMOに掲載されている物件情報について「事実と異なる点や誤解を招く表現がある」「成約済の物件が掲載されている」などにお気づきになりましたら、以下のページからご連絡ください
|
14.2万円/1DK
|
18.7万円/1LDK
|
12.5万円/1K
|
|
20.8万円/1LDK
|
18.3万円/1LDK
|
13.7万円/1K
|
|
29.9万円/2LDK
|
25.1万円/1SLDK
|
23.1万円/1LDK
|
|
23.2万円/1LDK
|
31万円/2SLDK
|
30.3万円/2LDK
|
|
13.8万円/1DK
|
27.8万円/2SLDK
|
22万円/2DK
|
|
17.8万円/1DK
|
23万円/1LDK
|
13.8万円/1LDK
|
|
15.5万円/1DK
|
30.3万円/2LDK
|
26万円/1LDK
|
|
13万円/1K
|
10.5万円/1K
|
17.8万円/1LDK
|
|
13万円/1K
|
29.9万円/2LDK
|
15.6万円/1DK
|
|
22.7万円/1LDK
|
14万円/ワンルーム
|
6.2万円/1K
|
お気に入りに追加しました。 |