MFPR目黒タワー - アエラス田町店 (株)アエラス.FRが提供する賃貸物件情報/東京都目黒区目黒1/目黒駅の賃貸物件情報 - SUUMO(スーモ)賃貸
パノラマ
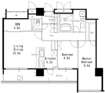
| 間取り詳細 | - | 構造 | 鉄筋コン |
|---|---|---|---|
| 階建 | 3階/地下2地上25階建 | 築年月 | 2008年2月 |
| エネルギー 消費性能 |
- | 断熱性能 | - |
| 目安光熱費 |
|
||
| 損保 | 要 | 駐車場 | 近隣114m44000円 |
| 入居 | '26年4月中旬 | 取引態様 | 仲介 |
| 条件 | 二人入居可/子供可/ペット相談/楽器相談/事務所利用不可 | 取り扱い店舗 物件コード |
70882699 |
| SUUMO 物件コード |
100501814996 | 総戸数 | - |
| 情報更新日 | 2026/04/17 | 次回更新予定日 | 2026/04/25 |
| 契約期間 |
|
||
| 保証会社 |
|
||
| ほか初期費用 |
|
||
| 備考 |
|
||
| 周辺情報 |
|
携帯用QRコード | |

TEL:03-6453-9977
まずは、どのような事でも「ご相談」ください。お客様の希望物件が見つかるまで、とことんお付き合いさせて頂きます。
■「弊社掲載」以外の物件でも『合わせて』お調べし、まとめてご紹介いたします。気になる物件は、まとめて遠慮なくご相談ください。
■「審査が不安」「保証人がいない」「賃料交渉して欲しい」などなど、どのような難しいご条件でも遠慮なくご相談ください。笑顔でご対応いたします。
■お手持ちのクレジットカードで、初期費用の全額(または一部)の分割払いを、喜んでお受けいたします。クレジットカード以外でもご相談可能!
■ご検討されているエリア・沿線が広範囲でも、喜んでお探しいたします。
■店舗にご来店できないお客様も、電話やオンラインで、お部屋探しを完結できます。
【掲載物件情報について】
・SUUMOは「自ら居住するための住宅」をお探しの方に向けたポータルサイトです。契約者以外の方が使用する(例:第三者に宿泊させる等)ことを目的としたお問合せはご遠慮ください
・SUUMOではユーザーの皆様に最も信頼されるサイトを目指して、物件情報の精度向上に努めております。SUUMOに掲載されている物件情報について「事実と異なる点や誤解を招く表現がある」「成約済の物件が掲載されている」などにお気づきになりましたら、以下のページからご連絡ください
|
17.8万円/ワンルーム
|
14.3万円/1DK
|
90万円/2LDK
|
|
26万円/2LDK
|
14.5万円/ワンルーム
|
17.1万円/1DK
|
|
9.5万円/ワンルーム
|
29.5万円/2DK
|
53万円/1LDK
|
|
20.8万円/1LDK
|
58.5万円/3LDK
|
18.4万円/1LDK
|
|
25.1万円/1SLDK
|
12.3万円/2K
|
26.5万円/1SLDK
|
|
17.8万円/1K
|
15.6万円/1K
|
18.9万円/1LDK
|
|
12.1万円/1K
|
16.1万円/ワンルーム
|
25.5万円/1LDK
|
|
12.7万円/ワンルーム
|
25万円/1LDK
|
62万円/2LDK
|
|
31.6万円/2LDK
|
15.9万円/1K
|
23.9万円/2LDK
|
|
15.5万円/1K
|
12.3万円/1K
|
65万円/3LDK
|
お気に入りに追加しました。 |