ZOOM新宿南First - (株)アンティ・ホームクリエイト営業1部が提供する賃貸物件情報/東京都渋谷区千駄ヶ谷5/代々木駅の賃貸物件情報 - SUUMO(スーモ)賃貸
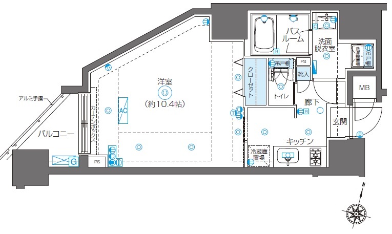
| 間取り詳細 | 洋10.4 K | 構造 | 鉄筋コン |
|---|---|---|---|
| 階建 | 13階/13階建 | 築年月 | 2014年12月 |
| エネルギー 消費性能 |
- | 断熱性能 | - |
| 目安光熱費 |
|
||
| 損保 | 要 | 駐車場 | - |
| 入居 | '26年4月下旬 | 取引態様 | 仲介 |
| 条件 | ペット相談/事務所利用不可/ルームシェア不可 | 取り扱い店舗 物件コード |
- |
| SUUMO 物件コード |
100501772230 | 総戸数 | - |
| 情報更新日 | 2026/04/14 | 次回更新予定日 | 2026/04/22 |
| 敷金積み増し |
|
||
| 契約期間 |
|
||
| 仲介手数料 |
|
||
| 保証会社 |
|
||
| ほか初期費用 |
|
||
| ほか諸費用 |
|
||
| 備考 |
|
||
| 周辺情報 |
|
携帯用QRコード | |

TEL:03-3463-4900
「気楽に部屋探し」最新情報毎日公開!☆
今のお部屋に満足していますか?快適なお部屋に住みたいですか?当社は、「気楽に部屋探し」をモットーに、経験豊富なスタッフが分譲タイプを中心に都内全域~東京近郊の物件を1R~ファミリーまで 独自のオンラインシステムを利用し、迅速かつ親切・丁寧な対応でお部屋探しをサポートしお客様の不安や疑問、たくさんのワガママ・こだわりを一挙に解消できるよう努めます。
JR渋谷駅より徒歩2分!
気楽にお立ち寄りください スタッフ一同お待ちしております。
【掲載物件情報について】
・SUUMOは「自ら居住するための住宅」をお探しの方に向けたポータルサイトです。契約者以外の方が使用する(例:第三者に宿泊させる等)ことを目的としたお問合せはご遠慮ください
・SUUMOではユーザーの皆様に最も信頼されるサイトを目指して、物件情報の精度向上に努めております。SUUMOに掲載されている物件情報について「事実と異なる点や誤解を招く表現がある」「成約済の物件が掲載されている」などにお気づきになりましたら、以下のページからご連絡ください
|
26万円/1LDK
|
22.5万円/1K
|
17.2万円/1LDK
|
|
15.2万円/2K
|
24.3万円/2LDK
|
15.4万円/1K
|
|
10.6万円/1DK
|
14.5万円/1K
|
8.6万円/1K
|
|
19.3万円/1LDK
|
15.75万円/1DK
|
17.05万円/1LDK
|
|
14.65万円/1LDK
|
16.3万円/1LDK
|
15.9万円/1DK
|
|
18.5万円/1LDK
|
10.2万円/1K
|
15.1万円/1DK
|
|
15.5万円/1DK
|
8.15万円/1K
|
9.8万円/2K
|
|
19.4万円/1LDK
|
12.8万円/1K
|
15.3万円/1DK
|
|
19.3万円/2LDK
|
16.85万円/1LDK
|
8.7万円/1K
|
|
19.9万円/2LDK
|
23.1万円/1LDK
|
8.34万円/1K
|
お気に入りに追加しました。 |