プレサンス神戸セレスティア - (株)SuMiraiが提供する賃貸物件情報/兵庫県神戸市兵庫区西多聞通2/神戸駅の賃貸物件情報 - SUUMO(スーモ)賃貸
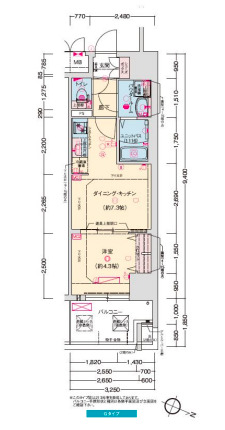
| 間取り詳細 | 洋4.3 LDK7.3 | 構造 | 鉄筋コン |
|---|---|---|---|
| 階建 | 10階/15階建 | 築年月 | 2024年11月 |
| エネルギー 消費性能 |
- | 断熱性能 | - |
| 目安光熱費 |
|
||
| 損保 | 要 | 駐車場 | 敷地内13000円/平置駐 |
| 入居 | 即 | 取引態様 | 仲介 |
| 条件 | 二人入居可 | 取り扱い店舗 物件コード |
748051 |
| SUUMO 物件コード |
100501641024 | 総戸数 | - |
| 情報更新日 | 2026/04/15 | 次回更新予定日 | 2026/04/23 |
| 契約期間 |
|
||
| 周辺情報 |
|
携帯用QRコード | |

TEL:078-600-9828
神戸市でのお部屋探しは【地域密着度NO.1】の当社にお任せください(^^)/
神戸市で理想の住まいをお探しなら、当社へ。神戸市内の豊富な賃貸物件を取り扱っており、単身者向けのスタイリッシュなマンションから、ファミリー向けの広々とした一戸建てまで、さまざまなニーズに対応する物件をご提案します!在籍スタッフは神戸での不動産経験が豊富なため安心してお任せください!お部屋探しが初めてで不安な方もご安心下さい。弊社は初めて賃貸を契約されるお客様の為に、わかりやすく丁寧にサポートいたします。わからないことや不安な点があれば、どんな小さいことでもお気軽にご相談下さい!
【掲載物件情報について】
・SUUMOは「自ら居住するための住宅」をお探しの方に向けたポータルサイトです。契約者以外の方が使用する(例:第三者に宿泊させる等)ことを目的としたお問合せはご遠慮ください
・SUUMOではユーザーの皆様に最も信頼されるサイトを目指して、物件情報の精度向上に努めております。SUUMOに掲載されている物件情報について「事実と異なる点や誤解を招く表現がある」「成約済の物件が掲載されている」などにお気づきになりましたら、以下のページからご連絡ください
|
16.5万円/2LDK
|
5万円/1K
|
12.5万円/1LDK
|
|
8.9万円/1DK
|
6.4万円/1K
|
5.3万円/1K
|
|
6.2万円/1K
|
6.67万円/ワンルーム
|
6.1万円/1K
|
|
9.7万円/1K
|
5.8万円/1K
|
6.9万円/1K
|
|
16万円/2LDK
|
9.3万円/2K
|
5.9万円/1K
|
|
8.1万円/1K
|
8.3万円/2K
|
4.9万円/1K
|
|
5.3万円/1K
|
6.4万円/1K
|
7.6万円/1K
|
|
7.1万円/1K
|
16.5万円/3LDK
|
7.03万円/1K
|
|
11.7万円/1LDK
|
7.25万円/2K
|
7.8万円/1DK
|
|
6.09万円/1K
|
6.45万円/1K
|
6.7万円/2K
|
お気に入りに追加しました。 |