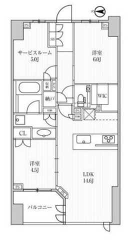
ディームス方南町 603号室 - (株)リライフ飯田橋店が提供する賃貸物件情報/東京都中野区南台5/方南町駅の賃貸物件情報 - SUUMO(スーモ)賃貸
| 間取り詳細 | - | 構造 | 鉄筋コン |
|---|---|---|---|
| 階建 | 6階/13階建 | 築年月 | 2019年10月 |
| エネルギー 消費性能 |
- | 断熱性能 | - |
| 目安光熱費 |
|
||
| 損保 | 2万円2年 | 駐車場 | - |
| 入居 | 即 | 取引態様 | 仲介 |
| 条件 | 二人入居可/ペット相談 | 取り扱い店舗 物件コード |
/B102125R358681 |
| SUUMO 物件コード |
100501447528 | 総戸数 | - |
| 情報更新日 | 2026/05/30 | 次回更新予定日 | 2026/06/07 |
| バルコニー面積 |
|
||
| 敷金積み増し |
|
||
| 契約期間 |
|
||
| 保証会社 |
|
||
| ほか初期費用 |
|
||
| ほか諸費用 |
|
||
| 備考 |
|
||
| 周辺情報 |
|
携帯用QRコード | |

TEL:03-4218-2691
飯田橋駅前! 飯田橋エリア物件情報No.1! 住まい探しは店舗数首都圏数最大級のリライフへ!
【当店の特徴】詳細は当ページ下部をご覧ください。
(1)お客様にご愛顧頂き首都圏数最大級の店舗数と安心のネットワークがございます。(2)総合仲介不動産店の為、ご紹介できる物件数が非常に豊富です。賃貸だけでなくご購入のご相談も可能です。(3)契約金のクレジットカード決済、引越業者の特別割引でのご紹介、インターネット開通作業、家具家電レンタル、近隣駐車場の手配など、物件決定後のアフターサービスも充実しています。
【掲載物件情報について】
・SUUMOは「自ら居住するための住宅」をお探しの方に向けたポータルサイトです。契約者以外の方が使用する(例:第三者に宿泊させる等)ことを目的としたお問合せはご遠慮ください
・SUUMOではユーザーの皆様に最も信頼されるサイトを目指して、物件情報の精度向上に努めております。SUUMOに掲載されている物件情報について「事実と異なる点や誤解を招く表現がある」「成約済の物件が掲載されている」などにお気づきになりましたら、以下のページからご連絡ください
|
32.2万円/2LDK
|
11.9万円/ワンルーム
|
6.1万円/1K
|
|
15.2万円/1LDK
|
7.8万円/1K
|
11.2万円/ワンルーム
|
|
19.1万円/3LDK
|
18.6万円/1K
|
11.5万円/1DK
|
|
12.7万円/1K
|
16.1万円/1LDK
|
16.6万円/1LDK
|
|
13.3万円/ワンルーム
|
11万円/ワンルーム
|
28.9万円/1LDK
|
|
36万円/3LDK
|
12.1万円/1K
|
14.5万円/1K
|
|
19.2万円/2LDK
|
23万円/3LDK
|
13.6万円/1DK
|
|
8.6万円/1K
|
30.5万円/4LDK
|
53万円/1LDK
|
|
16.25万円/1DK
|
15.5万円/1K
|
38万円/2LDK
|
|
8.4万円/1K
|
23万円/1LDK
|
19.2万円/2K
|
お気に入りに追加しました。 |