大晋メゾネ西陣今出川 304号室 - (株)京都ライフ長岡店が提供する賃貸物件情報/京都府京都市上京区元北小路町/今出川駅の賃貸物件情報 - SUUMO(スーモ)賃貸
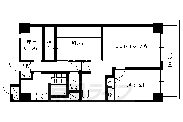
| 間取り詳細 | 和6 洋6.2 LDK13.7 納戸 3.5 | 構造 | 鉄骨鉄筋 |
|---|---|---|---|
| 階建 | 3階/10階建 | 築年月 | 1998年4月 |
| エネルギー 消費性能 |
- | 断熱性能 | - |
| 目安光熱費 |
|
||
| 損保 | 1.66万円2年 | 駐車場 | - |
| 入居 | 即 | 取引態様 | 仲介 |
| 条件 | 二人入居可/子供可 | 取り扱い店舗 物件コード |
K10452-304 |
| SUUMO 物件コード |
100501443286 | 総戸数 | 41戸 |
| 情報更新日 | 2026/05/29 | 次回更新予定日 | 2026/06/06 |
| 保証会社 |
|
||
| ほか初期費用 |
|
||
| ほか諸費用 |
|
||
| 備考 |
|
||
| 周辺情報 |
|
携帯用QRコード | |

TEL:075-957-4800
長岡京市、向日市、大山崎町、南区久世、伏見区羽束師・久我は当店におまかせ下さい。物件を豊富に取り揃えております。
当社は、京都専門の賃貸仲介会社として、40年以上にわたり家主様・地主様とお付き合いさせて頂いている実績があり、独自の折衝・交渉力については、地元密着で培われた機動力・実力を持っていると自負しております。特に当店では長岡京市・向日市・大山崎町については、ほぼ全域について網羅しております。もちろん他地域物件も多数取り揃えておりますので、賃貸のことなら何でもご相談下さい。物件資料の取りよせもどうぞご遠慮なく申し付け下さい。直ちに最新情報を御送り致します。
【掲載物件情報について】
・SUUMOは「自ら居住するための住宅」をお探しの方に向けたポータルサイトです。契約者以外の方が使用する(例:第三者に宿泊させる等)ことを目的としたお問合せはご遠慮ください
・SUUMOではユーザーの皆様に最も信頼されるサイトを目指して、物件情報の精度向上に努めております。SUUMOに掲載されている物件情報について「事実と異なる点や誤解を招く表現がある」「成約済の物件が掲載されている」などにお気づきになりましたら、以下のページからご連絡ください
|
7.1万円/1K
|
7.66万円/1K
|
7.8万円/1K
|
|
8.4万円/ワンルーム
|
3.3万円/1K
|
9.8万円/3LDK
|
|
7.5万円/1K
|
8.7万円/1LDK
|
5.6万円/1K
|
|
7.3万円/1K
|
4.5万円/1K
|
10.5万円/4LDK
|
|
3.5万円/ワンルーム
|
7.2万円/1DK
|
6.5万円/1LDK
|
|
7.8万円/1K
|
5.5万円/1DK
|
4.6万円/1K
|
|
32.5万円/1SLDK
|
7.8万円/1K
|
4.7万円/1DK
|
|
4.9万円/ワンルーム
|
7.6万円/1LDK
|
6.36万円/1K
|
|
18万円/2LDK
|
2.7万円/1K
|
3.5万円/1K
|
|
8.7万円/3LDK
|
8.12万円/2K
|
10.4万円/1LDK
|
お気に入りに追加しました。 |