ソシオ入船 - LIFUKU 福山店中国バス不動産(株)が提供する賃貸物件情報/広島県福山市入船町3/福山駅の賃貸物件情報 - SUUMO(スーモ)賃貸
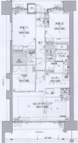
| 間取り詳細 | 和4 洋6 洋5 LDK15.1 | 構造 | 鉄筋コン |
|---|---|---|---|
| 階建 | 9階/14階建 | 築年月 | 2016年5月 |
| エネルギー 消費性能 |
- | 断熱性能 | - |
| 目安光熱費 |
|
||
| 損保 | 2.1万円2年 | 駐車場 | 敷地内7700円 |
| 入居 | 即 | 取引態様 | 仲介 |
| 条件 | - | 取り扱い店舗 物件コード |
611888 |
| SUUMO 物件コード |
100501034665 | 総戸数 | - |
| 情報更新日 | 2026/04/14 | 次回更新予定日 | 2026/04/22 |
| 契約期間 |
|
||
| 仲介手数料 |
|
||
| 保証会社 |
|
||
| ほか初期費用 |
|
||
| ほか諸費用 |
|
||
| 周辺情報 |
|
携帯用QRコード | |

TEL:084-944-3241
『この街にはわたしたちがいます!』
ゆめタウン蔵王すぐそば
LIFUKU福山店へお任せください!
LIFUKU福山店は、シングルからファミリー向け物件、新築、ペット可物件など約1500件をお取り扱いしております。
お客様の貴重なお時間を大切に、お客様のご希望を1つでも多く叶えるためにも、ご来店の際は事前にご連絡をお待ちしております。
お待たせすることなく迅速、丁寧に対応して参ります。
安心と信頼の創業40年、LIFUKU福山店 中国バス不動産㈱にお任せください!
【掲載物件情報について】
・SUUMOは「自ら居住するための住宅」をお探しの方に向けたポータルサイトです。契約者以外の方が使用する(例:第三者に宿泊させる等)ことを目的としたお問合せはご遠慮ください
・SUUMOではユーザーの皆様に最も信頼されるサイトを目指して、物件情報の精度向上に努めております。SUUMOに掲載されている物件情報について「事実と異なる点や誤解を招く表現がある」「成約済の物件が掲載されている」などにお気づきになりましたら、以下のページからご連絡ください
|
4.6万円/2LDK
|
5.3万円/1LDK
|
3.9万円/1K
|
|
4.5万円/2DK
|
4.2万円/2DK
|
5.2万円/1LDK
|
|
7.9万円/2LDK
|
7.2万円/2LDK
|
3万円/1K
|
|
4.3万円/1DK
|
4.8万円/3DK
|
5.9万円/2LDK
|
|
4.5万円/2DK
|
3.8万円/1K
|
4.25万円/1LDK
|
|
4.3万円/ワンルーム
|
5.35万円/2LDK
|
5.3万円/1LDK
|
|
4.7万円/1K
|
4.7万円/3DK
|
4.7万円/2DK
|
|
4.1万円/2LDK
|
8.2万円/1LDK
|
4.8万円/1LDK
|
|
6.2万円/2LDK
|
4万円/1K
|
3.9万円/2DK
|
|
7.5万円/1LDK
|
7.6万円/2LDK
|
3万円/1K
|
お気に入りに追加しました。 |