"20260414200352:H:0" "20260414200352:H:0" "20260414200352:H:0"

ザ・パークハビオ日本橋茅場町 1005号室 - 三菱地所ハウスネット(株)リーシング部が提供する賃貸物件情報

部屋の特徴・設備

  • バストイレ別、バルコニー、エアコン、ガスコンロ対応、フローリング、TVインターホン、浴室乾燥機、オートロック、室内洗濯置、追焚機能浴室、温水洗浄便座、エレベーター、2口コンロ、光ファイバー、即入居可、礼金不要、最上階、防犯カメラ、ペット相談、築2年以内、楽器相談、2駅利用可、3沿線以上利用可、駅徒歩5分以内、駅徒歩10分以内、敷地内ごみ置き場、南西向き、LGBTフレンドリー

物件概要

情報の見方

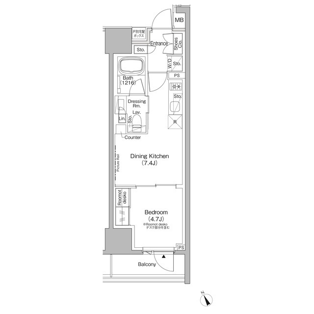
間取り詳細 洋4.7 DK7.4 構造 鉄筋コン
階建 10階/10階建 築年月 2026年1月
エネルギー
消費性能
- 断熱性能 -
目安光熱費
  • -
損保 駐車場 敷地内77000円
入居 取引態様 貸主
条件 ペット相談/楽器相談/ルームシェア不可 取り扱い店舗
物件コード
30828398
SUUMO
物件コード
100489010941 総戸数 81戸
情報更新日 2026/04/13 次回更新予定日 2026/04/28
バルコニー面積
  • 3.96m2
契約期間
  • 定期借家 2年
仲介手数料
  • 不要
保証会社
  • 保証会社利用必 ジェイリース・ウェルオンソリューションズ 初年度保証料:賃料等合計額の50% 毎月:330円 2年目
備考
  • 礼金無(1年未満解約時、賃料1か月分の違約金有) 引越日は引越幹事会社へ要相談 ダイニングへのエアコン設置不可 駆付けサポート24借主加入 保証会社未使用時敷金2か月 ペット・楽器相談(諸条件弊社募集図面要確認) SOHO使用応相談(敷金1か月積増/保証料要確認) 民泊不可 退去時:室内清掃・エアコン洗浄費借主負担 付属施設空状況要確認
 
周辺情報
  • まいばすけっと茅場町3丁目店(スーパー)まで160m
  • 成城石井日本橋一丁目店(スーパー)まで490m
  • KINOKUNIYA entre(スーパー)まで600m
  • セブンイレブン日本橋茅場町2丁目(コンビニ)まで170m
  • ローソン日本橋茅場町店(コンビニ)まで330m
  • ファミリーマート日本橋茅場町店(コンビニ)まで250m

周辺環境を見る

携帯用QRコード
このQRコードを読み取ることで、
ケータイでも物件情報を見ることができます。

物件情報をメールに送る

この物件にお問い合わせ
お問い合わせの内容を選択してください
03-6908-9997
三菱地所ハウスネット(株)リーシング部
営業時間:午前10時~午後5時 / 定休日:毎週水日曜日

取り扱い店舗

三菱地所ハウスネット(株)リーシング部

TEL:03-6908-9997

  • 住所: 東京都新宿区北新宿2-21-1 新宿フロントタワー32階
  • 営業時間: 午前10時~午後5時
  • 定休日: 毎週水日曜日
  • 免許番号: 国土交通大臣(6)第6019号 / (一社)不動産流通経営協会会員 / (公社)首都圏不動産公正取引協議会加盟
  • 取引態様: 貸主
  • 部屋情報
  • 地図・周辺環境
  • エリアの口コミ

【掲載物件情報について】

・SUUMOは「自ら居住するための住宅」をお探しの方に向けたポータルサイトです。契約者以外の方が使用する(例:第三者に宿泊させる等)ことを目的としたお問合せはご遠慮ください


・SUUMOではユーザーの皆様に最も信頼されるサイトを目指して、物件情報の精度向上に努めております。SUUMOに掲載されている物件情報について「事実と異なる点や誤解を招く表現がある」「成約済の物件が掲載されている」などにお気づきになりましたら、以下のページからご連絡ください

その他の情報

最寄駅から探す

最寄駅の沿線から探す

関連エリアから不動産情報を探す

ページトップへ戻る

お気に入りに追加しました。