ファミール光町 - (株)シティホーム広島駅南口センターが提供する賃貸物件情報/広島県広島市東区光町1/広島駅の賃貸物件情報 - SUUMO(スーモ)賃貸
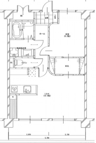
| 間取り詳細 | 洋7.5 LDK9.0 | 構造 | 鉄筋コン |
|---|---|---|---|
| 階建 | 2階/7階建 | 築年月 | 1989年3月 |
| エネルギー 消費性能 |
- | 断熱性能 | - |
| 目安光熱費 |
|
||
| 損保 | 2万円2年 | 駐車場 | 近隣160m22000円 |
| 入居 | 相談 | 取引態様 | 仲介 |
| 条件 | - | 取り扱い店舗 物件コード |
- |
| SUUMO 物件コード |
100486361269 | 総戸数 | 17戸 |
| 情報更新日 | 2026/01/31 | 次回更新予定日 | 2026/02/08 |
| 保証会社 |
|
||
| 備考 |
|
||
| 周辺情報 |
|
携帯用QRコード | |

TEL:082-568-2220
★★★ 広島駅周辺はもちろん、市内全域のお部屋探しに対応!女性スタッフ複数在籍のお店です。
★★★シティホーム広島駅南口センターは、JR広島駅南口から郵便局JPビル方面へ徒歩2分
◆お客様用無料駐車場を完備 ◆広島駅南口センターは、広島市内全域・安芸区・安芸郡全域をカバーする豊富な物件量!経験豊かなスタッフがしっかりとお部屋探しをサポートさせていただきます。 ◆お得な初期費用プランをご用意しています。 ◆クレジット決済対応しています ◆ご予約無しのご来店も大歓迎!お気軽にお越しください。 ◆ご希望のお客様にはチャイルドシート・ジュニアシートをご準備しておりますので、事前にお申しつけください。 ご来店お待ち致しております!
【掲載物件情報について】
・SUUMOは「自ら居住するための住宅」をお探しの方に向けたポータルサイトです。契約者以外の方が使用する(例:第三者に宿泊させる等)ことを目的としたお問合せはご遠慮ください
・SUUMOではユーザーの皆様に最も信頼されるサイトを目指して、物件情報の精度向上に努めております。SUUMOに掲載されている物件情報について「事実と異なる点や誤解を招く表現がある」「成約済の物件が掲載されている」などにお気づきになりましたら、以下のページからご連絡ください
|
4.5万円/1DK
|
8万円/2LDK
|
5.3万円/1DK
|
|
6.1万円/1K
|
5.2万円/1K
|
13.8万円/2LDK
|
|
10万円/3LDK
|
5万円/1K
|
9.2万円/3LDK
|
|
6.7万円/1K
|
14.9万円/2LDK
|
10万円/3LDK
|
|
11万円/2LDK
|
5.2万円/1DK
|
5.2万円/1K
|
|
2.8万円/1K
|
2.8万円/1K
|
4.7万円/1K
|
|
6.4万円/1K
|
6.5万円/ワンルーム
|
21万円/3LDK
|
|
4.6万円/ワンルーム
|
5万円/3DK
|
8.25万円/2LDK
|
|
4.8万円/ワンルーム
|
8.3万円/3LDK
|
2.5万円/1K
|
|
8.7万円/2LDK
|
9万円/2LDK
|
5万円/ワンルーム
|
お気に入りに追加しました。 |