レジディア笹塚II - (株)アブレイズ・コーポレーション渋谷駅前支店が提供する賃貸物件情報/東京都渋谷区笹塚2/笹塚駅の賃貸物件情報 - SUUMO(スーモ)賃貸
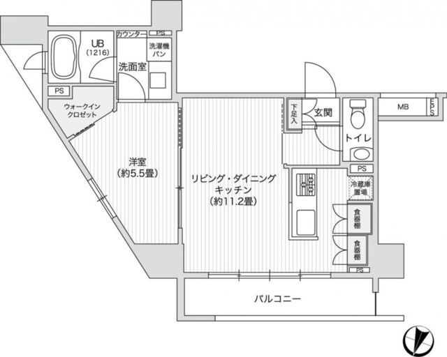
| 間取り詳細 | 洋5.5 LDK11.2 | 構造 | 鉄筋コン |
|---|---|---|---|
| 階建 | 8階/15階建 | 築年月 | 2011年2月 |
| エネルギー 消費性能 |
- | 断熱性能 | - |
| 目安光熱費 |
|
||
| 損保 | 2.15万円2年 | 駐車場 | - |
| 入居 | '26年2月上旬 | 取引態様 | 仲介 |
| 条件 | 二人入居可 | 取り扱い店舗 物件コード |
091-8448-A-091 |
| SUUMO 物件コード |
100485360650 | 総戸数 | - |
| 情報更新日 | 2026/02/08 | 次回更新予定日 | 2026/02/16 |
| 契約期間 |
|
||
| 仲介手数料 |
|
||
| 保証会社 |
|
||
| ほか初期費用 |
|
||
| ほか諸費用 |
|
||
| 備考 |
|
||
| 周辺情報 |
|
携帯用QRコード | |

TEL:03-3400-2088
★渋谷ヒカリエからすぐの都市型賃貸専門店です★駅徒歩3分!★圧倒的なコスパと物件数でお部屋探しをお手伝いします!
◆仲介手数料無料~半額以下で最大限のコスパを実現!◆
☆総合仲介であらゆる物件の紹介が可能です!
☆弊社掲載物件以外でも、仲介手数料は半額~無料でご紹介!
☆ご相談~ご内見~ご契約までオンライン対応が可能です♪
☆賃料や初期費用のご相談もお気軽にご相談下さい!
☆初期費用のお支払いはクレジットカードがご利用できます♪
☆お見積りは無料です!お気軽にご用命下さい♪
アブレイズ・コーポレーション渋谷駅前支店では、お客様のご覧になってるネット掲載外の物件もご提案させていただいて『必ずご満足いただけるお部屋探し』をお約束させていただきます!
【掲載物件情報について】
・SUUMOは「自ら居住するための住宅」をお探しの方に向けたポータルサイトです。契約者以外の方が使用する(例:第三者に宿泊させる等)ことを目的としたお問合せはご遠慮ください
・SUUMOではユーザーの皆様に最も信頼されるサイトを目指して、物件情報の精度向上に努めております。SUUMOに掲載されている物件情報について「事実と異なる点や誤解を招く表現がある」「成約済の物件が掲載されている」などにお気づきになりましたら、以下のページからご連絡ください
|
12.5万円/ワンルーム
|
15.2万円/1LDK
|
10.5万円/1DK
|
|
19.1万円/1LDK
|
17.5万円/1LDK
|
16.2万円/1LDK
|
|
20.9万円/1LDK
|
18.1万円/1LDK
|
11.8万円/1K
|
|
12.8万円/1DK
|
15.6万円/1LDK
|
24.5万円/1LDK
|
|
19.5万円/2LDK
|
16.7万円/1LDK
|
15.2万円/1LDK
|
|
19.4万円/1LDK
|
25.8万円/2LDK
|
19.9万円/1LDK
|
|
15.6万円/1DK
|
13.7万円/1DK
|
14.5万円/1LDK
|
|
13万円/1LDK
|
15.7万円/1DK
|
11万円/ワンルーム
|
|
18.8万円/2LDK
|
12.8万円/1LDK
|
25万円/2LDK
|
|
13.8万円/1DK
|
21.6万円/1SLDK
|
8.5万円/1K
|
お気に入りに追加しました。 |