MFPR目黒タワー 1806号室 - いい部屋ネット大東建託リーシング(株)亀戸店が提供する賃貸物件情報/東京都目黒区目黒1/目黒駅の賃貸物件情報 - SUUMO(スーモ)賃貸
パノラマ
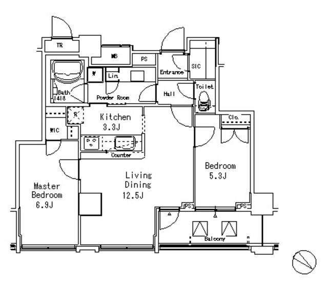
| 間取り詳細 | - | 構造 | 鉄筋コン |
|---|---|---|---|
| 階建 | 18階/25階建 | 築年月 | 2008年2月 |
| エネルギー 消費性能 |
- | 断熱性能 | - |
| 目安光熱費 |
|
||
| 損保 | 要 | 駐車場 | - |
| 入居 | 即 | 取引態様 | 仲介 |
| 条件 | 二人入居可/ペット相談/事務所利用不可 | 取り扱い店舗 物件コード |
312-4101894 |
| SUUMO 物件コード |
100473923879 | 総戸数 | - |
| 情報更新日 | 2026/02/09 | 次回更新予定日 | 2026/02/17 |
| バルコニー面積 |
|
||
| 保証会社 |
|
||
| ほか初期費用 |
|
||
| ほか諸費用 |
|
||
| 備考 |
|
||
| 周辺情報 |
|
携帯用QRコード | |

TEL:03-3682-0701
“いいへや探すならいい部屋ネット” お部屋探しは「いい部屋ネット亀戸店」にお任せください。
“いいへや探すならいい部屋ネット”
江東区・墨田区・江戸川区・台東区・葛飾区・中央区、その他23区内のお部屋探しは「いい部屋ネット亀戸店」にお任せください。初めての一人暮らし・進学・就職・転勤等、お部屋探しには様々なライフスタイルの変化が伴い不安も多いかと思います。皆様お一人お一人にとっての「いい部屋」をご提案させて頂きます!※オーナー様からの募集依頼も承ります。
【掲載物件情報について】
・SUUMOは「自ら居住するための住宅」をお探しの方に向けたポータルサイトです。契約者以外の方が使用する(例:第三者に宿泊させる等)ことを目的としたお問合せはご遠慮ください
・SUUMOではユーザーの皆様に最も信頼されるサイトを目指して、物件情報の精度向上に努めております。SUUMOに掲載されている物件情報について「事実と異なる点や誤解を招く表現がある」「成約済の物件が掲載されている」などにお気づきになりましたら、以下のページからご連絡ください
|
12.2万円/2LDK
|
13万円/1K
|
9.8万円/1DK
|
|
11.6万円/1K
|
22.6万円/1LDK
|
8.4万円/ワンルーム
|
|
21.4万円/1LDK
|
19.8万円/1SLDK
|
23万円/1SLDK
|
|
16.3万円/1DK
|
18.8万円/1LDK
|
23万円/3LDK
|
|
10.2万円/3LDK
|
15.8万円/1DK
|
19.9万円/2SLDK
|
|
45万円/3LDK
|
18.1万円/1LDK
|
28.5万円/2LDK
|
|
14.1万円/ワンルーム
|
24万円/3LDK
|
16.5万円/1DK
|
|
16.6万円/1LDK
|
14.7万円/1DK
|
19.6万円/3LDK
|
|
14.8万円/2K
|
17万円/1LDK
|
19.8万円/1K
|
|
25.2万円/2LDK
|
41万円/2LDK
|
100万円/4LDK
|
お気に入りに追加しました。 |