京阪鴨東線 出町柳駅 3階建 築9年 - (株)京都ライフ西大路店が提供する賃貸物件情報/京都府京都市左京区下鴨泉川町/出町柳駅の賃貸物件情報 - SUUMO(スーモ)賃貸
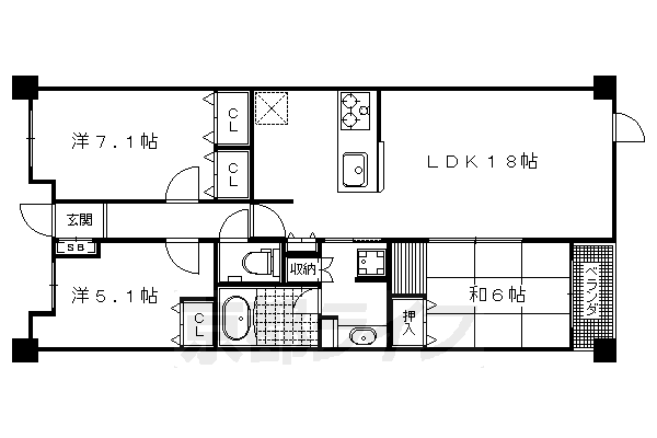
| 間取り詳細 | 和6 洋7.1 洋5.1 LDK18 | 構造 | 鉄筋コン |
|---|---|---|---|
| 階建 | 1階/3階建 | 築年月 | 2017年6月 |
| エネルギー 消費性能 |
- | 断熱性能 | - |
| 目安光熱費 |
|
||
| 損保 | 1.2万円1年 | 駐車場 | 敷地内29000円 |
| 入居 | 即 | 取引態様 | 仲介 |
| 条件 | 二人入居可/子供可 | 取り扱い店舗 物件コード |
K62845-137 |
| SUUMO 物件コード |
100470878699 | 総戸数 | 99戸 |
| 情報更新日 | 2026/04/13 | 次回更新予定日 | 2026/04/21 |
| 契約期間 |
|
||
| 備考 |
|
||
| 周辺情報 |
|
携帯用QRコード | |

TEL:075-585-6501
JR西大路駅から東に徒歩1分!小さなことでもお気軽にご相談ください。
アクセスはJR「西大路駅」から徒歩1分。西大路駅の改札を出て左手方向に店舗がございます。
住まいに関することでしたら、どんなことでもお気軽にご相談ください。
店内はおしゃれなカフェをイメージした北欧風ナチュラルデザイン。リラックスした空間でお部屋探しを進めていただけるよう心がけます。
西大路駅周辺、吉祥院エリア、唐橋エリアのお部屋探しは京都ライフ西大路店へお任せ下さい。スタッフ一同、ご来店をお待ちしております。
【掲載物件情報について】
・SUUMOは「自ら居住するための住宅」をお探しの方に向けたポータルサイトです。契約者以外の方が使用する(例:第三者に宿泊させる等)ことを目的としたお問合せはご遠慮ください
・SUUMOではユーザーの皆様に最も信頼されるサイトを目指して、物件情報の精度向上に努めております。SUUMOに掲載されている物件情報について「事実と異なる点や誤解を招く表現がある」「成約済の物件が掲載されている」などにお気づきになりましたら、以下のページからご連絡ください
|
3.5万円/ワンルーム
|
17万円/1LDK
|
5.5万円/1DK
|
|
10.7万円/2LDK
|
7.8万円/ワンルーム
|
11万円/2LDK
|
|
8.8万円/2K
|
12.8万円/2LDK
|
11万円/1LDK
|
|
2.9万円/1K
|
3.4万円/1K
|
4.9万円/1K
|
|
20万円/1SLDK
|
22万円/6SLDK
|
5.3万円/1K
|
|
7.8万円/1LDK
|
8.2万円/2DK
|
15.5万円/2LDK
|
|
3.6万円/1K
|
15.5万円/1LDK
|
6.9万円/1LDK
|
|
2.8万円/1K
|
17万円/2LDK
|
6.5万円/2LDK
|
|
8.1万円/1LDK
|
8.23万円/1DK
|
5.2万円/3DK
|
|
4.85万円/1K
|
10.4万円/1LDK
|
9万円/2LDK
|
お気に入りに追加しました。 |