"20251209014202:H:0" "20251209014202:H:0" "20251209014202:H:0"
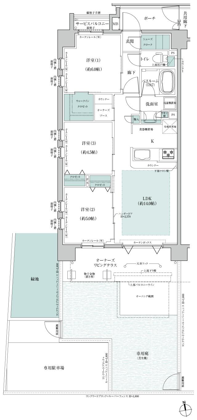
ブリシア川口カームコート/エアーコート (間取り図 A-Eg)

ブリシア川口カームコート/エアーコート (間取り図 A-Eg)

4400万円台~6900万円台/予定  (エアーコート 第2期1次)
2LDK+S(納戸)~3LDK+S(納戸) | 56.7m2~75.6m2 | JR京浜東北線「川口」歩15分~17分
SUUMO(スーモ)新築マンションのブリシア川口カームコート/エアーコートの間取り(A-Eg)詳細情報です。
A-Eg
  • 所在地 埼玉県川口市仲町83番1外(地番)/カームコート、埼玉県川口市南町2丁目299番 他5筆(地番)/エアーコート
  • 交通 JR京浜東北線「川口」歩15分~17分
間取りの概要/特徴
価格

未定(エアーコート 第2期1次)

間取り
  • 3LDK+WIC+SC+O
専有面積
  • 65.4m2
その他
  • 専用庭面積:22.47m2
  • サービスバルコニー面積:1.6m2、ポーチ面積:4.49m2、オーナーズリビングテラス面積:15.6m2
特徴
キッチン
  • 浄水器or活水器
立地・配置
  • 角部屋
設備・構造
  • 床暖房
  • 角住戸
  • 専用庭あり

※O=オーナーズブース

【この物件広告についての注釈】

※価格は物件の代金総額を表示しています。消費税が課税される場合は税込み価格を表示しており、10000円未満を切り上げている場合があります。

※住戸別の価格(帯)表記については、そのタイプに含まれるすべての住戸の情報を掲載していない場合があります。住戸タイプと各住戸の価格帯表記について、単位(1000万円・100万円・10万円)が異なる場合があります。

※「モデルルーム」とは、間取りや仕様・設備などを知ることができる施設全般を指し、それらの一部のみ展示している「サンプルルーム」や「ギャラリー」、「インフォメーションセンター」なども含みます。

※完成予想図はいずれも外構、植栽、外観等実際のものとは多少異なることがあります。

※CG合成の画像の場合、実際とは多少異なる場合があります。

※完成後1年以上を経過した未入居物件が掲載される場合があります。ご了承ください。

※掲載の省エネ性能ラベル内の物件・住棟・号室名称については最新のものに変更されている場合があります。

※概要のエネルギー消費性能、断熱性能、目安光熱費については、表示している省エネ性能ラベルによってデータの内容が異なります。販売戸数が複数の住棟ラベル、または住戸ラベルの場合は、原則建築確認が下りている物件全体の最小~最大を、販売戸数1戸の住戸ラベルの場合はその住戸のデータを表示しています。

ブリシア川口カームコート/エアーコート 物件概要 エアーコート 第2期1次

所在地
埼玉県川口市仲町83番1外(地番)/カームコート、埼玉県川口市南町2丁目299番 他5筆(地番)/エアーコート
地図を見る
交通 JR京浜東北線「川口」歩15分~17分 総戸数 32戸(他管理室1戸/カームコート)、56戸(他管理室1戸/エアーコート)
間取り 2LDK+S(納戸)~3LDK+S(納戸) 専有面積 56.7m2~75.6m2
予定価格帯
4400万円台~6900万円台
引渡可能時期 2027年3月下旬予定
販売スケジュール 販売開始予定 2025年12月下旬

情報更新日:2025/12/3

お問い合わせ先

ブリシアマンションシリーズ総合プレゼンテーションルーム

0120-222-049 無料

お問合せの際は『SUUMO(スーモ)を見て』とお伝えいただくとスムーズです。

営業時間:平日11:00~19:00 土日祝 10:00~19:00

定休日:水・木曜(祝日は営業いたします)

見学予約スケジュール

見学をご希望される日程をお選びください。

12/9
12/10
12/11
12/12
12/13
12/14
12/15
12/16
12/17
12/18
12/19
12/20
12/21
12/22
12/23
12/24
12/25
12/26
12/27
12/28
12/29
12/30
12/31
1/1
1/2
1/3
1/4
1/5
1/6
1/7
1/8
1/9
1/10
1/11
1/12

見学予約メニュー

  • 【モデルルームのご見学は初めて】という方にお勧めのコースです(所要時間:120分)(所要時間:120分)

    ★★開催時間:10:00~ 13:00~ 16:00~★★

  • 【モデルルームのご見学は初めて】という方にお勧めのコースです(所要時間120分)(所要時間:120分)

    ★★開催時間:10:00~ 13:00~ 16:00~★★

  • 【新婚・カップルの方向け】新しいお住まい探しのサポートコース(所要時間120分)(所要時間:120分)

    ご夫婦、カップルでお住まい探しされている方にお勧めなコースです!

【67732171】ブリシア川口カームコート/エアーコート
他の物件も見てみる!

あなたにオススメの物件

PR

条件を変更して物件を探す

ページトップへ戻る
簡単!約2分で完了
以前、資料請求した物件です
簡単!約2分で完了 まずは気軽に見学予約をしてみよう!
以前にもチェックした物件です
簡単!約2分で完了 まずは気軽に見学予約や資料請求をしてみよう!

モデルルーム見学は予約優先でのご案内になります。

ぜひ、お早めにご予約ください。