【6号地】※こちらは同間取り写真です。
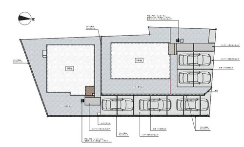
【外観パース・区画図・間取り図】
【現地写真】着工しました!来年5月完成予定です♪
※写真に誤り・問題がある場合はこちら
注目の物件ピックアップ
特徴ピックアップ
購入サポート制度
サポート1
| サポート概要 | 定期点検 | ||
|---|---|---|---|
| サポートの詳細説明 | お引渡し後3か月・1年目・2年目・5年目・10年目・15年目・20年目・25年目・30年目で無償で定期点検を実施します。 | ||
| 料金発生有無 | なし | ||
| サポートを受けられる期間 | お引渡し後30年目まで実施 | ||
| サポートを受ける場合の注意点・制約事項 | ■点検対象箇所 水回りの状態 建具の建て付け サッシの建て付け等のチェックを行います。 |
||
サポート2
| サポート概要 | 設備保証 | ||
|---|---|---|---|
| サポートの詳細説明 | お引渡し後10年以内に発生した対象設備の故障について、無料で修理・交換対応します。 | ||
| 料金発生有無 | なし | ||
| サポートを受けられる期間 | お引渡し後10年間 | ||
| サポートを受ける場合の注意点・制約事項 | ■保証対象設備 ・水回り システムキッチン システムバス トイレ ビルトイン食洗機 洗面化粧台 ・その他 給湯器 インターホン ■その他制限事項 保証対象外となる事例もございます(自然劣化、消耗品など)詳しくはスタッフへお訊ねください。 |
||
サポート3
| サポート概要 | 24時間駆けつけ対応 | ||
|---|---|---|---|
| サポートの詳細説明 | 対象設備におけるトラブルが発生した場合、弊社提携の専門スタッフがご自宅へ駆付け補修対応します。 | ||
| 料金発生有無 | なし | ||
| サポートを受けられる期間 | ー |
||
| サポートを受ける場合の注意点・制約事項 | ■サポート対象設備 水まわりのトラブルサービス(キッチン・お風呂・トイレ等のつまり、水漏れ等) 窓ガラスのトラブルサービス 鍵のトラブルサービス ■その他制限事項 水まわり・窓ガラスのトラブルサービスは駆け付け・※一次対応は無料です。水まわりは年2回まで無料。窓ガラスは年1回まで無料。 鍵のトラブルサービスは有償となります。 ※一次対応とは・・・専門スタッフ1名による特殊工具・特殊部品を必要としない、30分以内の作業のことをいいます。 ■サービス提供会社 日本リビング保証株式会社の提携メンテナンス会社が提供しております。 |
||
イベント情報
モデルハウス(事前に必ずお問い合わせください)
日程/公開中
時間/10:00~19:00
【WEB予約来店特典】
新春サイコロ運試し!「住まいと暮らしのONE STOP」サイトからご予約後のご来場で、クオ・カードペイ最大30000円分プレゼント!
また、先着100組様限定で、サイコロを振ってゾロ目が出たらお米10キロプレゼント!ゾロ目が出なくてもお米2キロを進呈!
※新春サイコロ運試しは、5000円×サイコロの出た目のクオ・カードペイをプレゼントとなります。
※特典の対象は、真剣に住宅購入をご検討中の方で、初めて大英産業の店舗・物件へご来場いただく方のみとさせていただきます。
※ご来店予定日の前日までにご予約いただいた20歳以上の方で、アンケートへのご回答および1件以上の物件見学が必要となります。
※複数店舗にご来場いただいた場合でも、特典のお渡しは1家族様1回限りとなります。
※ご本人様確認のため、身分証明書をご提示いただける方に限ります。(外国籍の方は在留カードもしくは永住権をお持ちの方に限ります。)
※他のイベントおよびその他のWEBページからの予約特典とは併用できません。
※クオ・カードペイのお渡しは後日となります。
※特典は後日のお渡しとなる可能性がございます。
※第三者の方のためにご見学をご希望の方は対象外となります。
※予約状況により、ご予約日時を調整いただく場合がございます。
詳しくは「住まいと暮らしのONE STOP」サイトをご確認ください。(2026年1月25日のご来場まで)
プレゼント情報
100万円キャッシュバック
※2026年1月25日まで
物件詳細情報
|
物件名
|
【洗練された間取り×長期保証で安心】サンコート 佐賀市大和町尼寺 | ||
|---|---|---|---|
|
価格
|
2999万円・3399万円 [ □支払シミュレーション ] |
間取り
|
4LDK |
|
販売戸数
|
2戸 |
総戸数
|
2戸 |
|
土地面積
|
169.41m2・189.21m2(51.24坪・57.23坪) |
建物面積
|
101.44m2・109.1m2(30.68坪・33.00坪) |
|
私道負担・道路
|
道路幅:6.3m~6.4m、アスファルト舗装 |
完成時期(築年月)
|
2026年5月予定 |
| 住所 |
佐賀県佐賀市大和町大字尼寺 [ ■周辺環境 ] |
交通 |
JR長崎本線「佐賀」歩69分
市営バス「尼寺東停」歩3分
|
| 関連リンク |
【この会社の関連サイト】
|
||
| 担当者より |
担当者 宅建
自身の購入経験を活かし、不安を一つずつ解消します。メリットもデメリットも丁寧にお伝えします。
|
【この物件について】
【売主グループ会社の安心】大英不動産販売だからこそ、この土地を仕入れた理由、建築過程やそのお写真、物件のこだわりまで詳細にお伝えできます!ぜひ一度、私たちにご相談ください♪
【得意エリア】
佐賀県全域
|
|
| お問い合せ先 |
TEL:0120-356-316 「SUUMO(スーモ)を見た」と問い合わせください |
免許番号:福岡県知事(1)第019858号 取引態様:<仲介> 営業時間:10:00~17:00 / 定休日:水曜日、年末年始:12/22~1/3 |
|
周辺環境
-
幼稚園・保育園千布幼稚園:徒歩25分(2000m)
-
幼稚園・保育園春日保育園:徒歩7分(550m)
-
小学校春日小学校:徒歩2分(160m)
-
中学校大和中学校:徒歩17分(1300m)
-
スーパーマックスバリュ尼寺店:徒歩4分(300m)
-
コンビニセブンイレブン 佐賀大和尼寺店:徒歩9分(650m)
-
駅JR佐賀駅:徒歩69分(5500m)
-
その他環境市営バス 尼寺東停:徒歩3分(230m)
周辺施設
※地図の更新タイミングの関係で、物件情報が実際のものとは異なる場合や最新情報に更新されていない場合がございます。
※以下の南西諸島及び離島においては、表示される物件の位置が実際のものとは数百メートル程度ずれる場合がございます。
東京都:硫黄島・青ヶ島、沖縄県: 北大東島・南大東島・多良間島・水納島・与那国島・宮古諸島・石垣島・竹富島
カーナビご利用の方
見学可能な日程
日程/公開中
時間/10:00~19:00
【WEB予約来店特典】
新春サイコロ運試し!「住まいと暮らしのONE STOP」サイトからご予約後のご来場で、クオ・カードペイ最大30000円分プレゼント!
また、先着100組様限定で、サイコロを振ってゾロ目が出たらお米10キロプレゼント!ゾロ目が出なくてもお米2キロを進呈!
※新春サイコロ運試しは、5000円×サイコロの出た目のクオ・カードペイをプレゼントとなります。
※特典の対象は、真剣に住宅購入をご検討中の方で、初めて大英産業の店舗・物件へご来場いただく方のみとさせていただきます。
※ご来店予定日の前日までにご予約いただいた20歳以上の方で、アンケートへのご回答および1件以上の物件見学が必要となります。
※複数店舗にご来場いただいた場合でも、特典のお渡しは1家族様1回限りとなります。
※ご本人様確認のため、身分証明書をご提示いただける方に限ります。(外国籍の方は在留カードもしくは永住権をお持ちの方に限ります。)
※他のイベントおよびその他のWEBページからの予約特典とは併用できません。
※クオ・カードペイのお渡しは後日となります。
※特典は後日のお渡しとなる可能性がございます。
※第三者の方のためにご見学をご希望の方は対象外となります。
※予約状況により、ご予約日時を調整いただく場合がございます。
詳しくは「住まいと暮らしのONE STOP」サイトをご確認ください。(2026年1月25日のご来場まで)
設備仕様
|
【使いやすい&家事ラクキッチン】
|
【お手入れしやすいバスルーム】
|
【いつもキレイが続くレストルーム】
|
||
|
【1階防犯シャッター】
|
【キーレス玄関ドア】
|
【Low-e複層ガラス】
|
||
構造の特徴
|
【均一な品質性能の2×4工法】
|
【ファイヤーストップ構造体】
|
【天井高2.7m&サッシ高】
|
||
【洗練された間取り×長期保証で安心】サンコート 佐賀市大和町尼寺 【一戸建て】
販売スケジュール |
- | イベント情報 |
モデルハウス(事前に必ずお問い合わせください) 日程/公開中 時間/10:00~19:00 【WEB予約来店特典】 新春サイコロ運試し!「住まいと暮らしのONE STOP」サイトからご予約後のご来場で、クオ・カードペイ最大30000円分プレゼント! また、先着100組様限定で、サイコロを振ってゾロ目が出たらお米10キロプレゼント!ゾロ目が出なくてもお米2キロを進呈! ※新春サイコロ運試しは、5000円×サイコロの出た目のクオ・カードペイをプレゼントとなります。 ※特典の対象は、真剣に住宅購入をご検討中の方で、初めて大英産業の店舗・物件へご来場いただく方のみとさせていただきます。 ※ご来店予定日の前日までにご予約いただいた20歳以上の方で、アンケートへのご回答および1件以上の物件見学が必要となります。 ※複数店舗にご来場いただいた場合でも、特典のお渡しは1家族様1回限りとなります。 ※ご本人様確認のため、身分証明書をご提示いただける方に限ります。(外国籍の方は在留カードもしくは永住権をお持ちの方に限ります。) ※他のイベントおよびその他のWEBページからの予約特典とは併用できません。 ※クオ・カードペイのお渡しは後日となります。 ※特典は後日のお渡しとなる可能性がございます。 ※第三者の方のためにご見学をご希望の方は対象外となります。 ※予約状況により、ご予約日時を調整いただく場合がございます。 詳しくは「住まいと暮らしのONE STOP」サイトをご確認ください。(2026年1月25日のご来場まで) |
|---|---|---|---|
所在地 |
佐賀県佐賀市大和町大字尼寺 | 交通 |
JR長崎本線「佐賀」歩69分 |
販売戸数 |
2戸 | 総戸数 |
2戸 |
価格 |
2999万円・3399万円
[ □支払シミュレーション ] |
最多価格帯 |
- |
私道負担・道路 |
道路幅:6.3m~6.4m、アスファルト舗装 | 諸費用 |
- |
間取り |
4LDK | 建物面積 |
101.44m2・109.1m2(30.68坪・33.00坪) |
土地面積 |
169.41m2・189.21m2(51.24坪・57.23坪) | 建ぺい率・容積率 |
建ぺい率:60% 容積率:200% |
完成時期(築年月) |
2026年5月予定 | 引渡可能時期 |
2026年5月予定 |
土地の権利形態 |
所有権 | 構造・工法 |
木造2階建(2×4工法) |
エネルギー消費性能 |
- | 断熱性能 |
- |
目安光熱費 |
- | 施工 |
- |
リフォーム |
- | 用途地域 |
1種住居 |
地目 |
- | その他制限事項 |
指定なし |
その他概要・特記事項 |
担当者:桐野 雅斗、設備:公営水道、本下水、オール電化、建築確認番号:第12505550号・第12505560号 | ||
物件の特徴
毎月(年12回)76,542円 ボーナス時加算無し
価格2999万円、頭金0円、借入額2999万円
年利1.05% 変動金利(ガン団信) 返済期間40年
- 家賃並みのお支払いで一戸建てが持てます♪
・紹介金融機関/福岡銀行
・販売価格に対する融資限度の割合/100%以内
・年齢制限/申込時年齢が満18歳以上71歳未満で、完済時年齢が85歳以下の方
・返済期間/1年~50年
・利率/年利1.05%(変動金利/ガン団信)
・保証料/審査結果による
・事務手数料/借入額×2.2%
※審査の結果によっては金利が異なる場合があります。
※ローンは一定要件該当者が対象です。適用される金利は融資実行時のものとなり、表記されている金利・返済額と異なる場合があります。
会社情報
| 会社概要 | <仲介> |
||
|---|---|---|---|
| 問い合わせ先 |
TEL:0120-356-316
「SUUMO(スーモ)を見た」と問い合わせください
|
||
情報提供日・更新日
| 情報提供日 | 2025年12月22日 | 次回更新日 | 情報提供より8日以内に更新 |
|---|---|---|---|
| 取引条件有効期限 | 2026年1月26日 | ||
78868483
資料請求・お問い合わせ
- 【1】入力
- 【2】確認
- 【3】完了
- ※価格は物件の代金総額を表示しており、消費税が課税される場合は税込み価格です。 (1000円未満は切り上げ。)
- ※写真に写っている、またはパース(絵)や間取り図に描かれている家具や車などは、特にコメントがない場合、販売価格に含まれません。
- ※敷地権利が定期借地権のものは価格に権利金を含みます。
- ※建築条件付き土地価格には、建物価格は含まれません。
- ※物件情報は、原則として情報提供日の2日前に最終確認した情報です。
- ※完成予想図はいずれも外構、植栽、外観等実際のものとは多少異なることがあります。
- ※モデルルーム・モデルハウス・展示場・ショールームの画像の場合、今回販売の物件と異なる場合があります。
- ※CG合成の画像の場合、実際とは多少異なる場合があります。
- ※物件特徴:販売戸数が複数の物件は、全ての住戸に該当しない項目もあります。
- ※完成後1年以上を経過した未入居物件が掲載される場合があります。ご了承ください。
- ※新着:物件情報が「SUUMO」に掲載された日から1週間表示されます。
- ※価格更新:物件価格が変更された日から1週間表示されます。
- ※販売予定物件はすべて、販売開始するまで契約または予約の申込みはできません。
- ※購入の前には物件内容や契約条件についてご自身で十分な確認をしていただくようにお願いいたします。
- ※建築条件土地の情報内に掲載されている、建物プラン例は、土地購入者の設計プランの参考の一例であって、プランの採用可否は任意です。
- ※土地(建築条件なし)で「建物プラン例」が表記してある時、そのプラン例は特定の建築請負会社によるもので、当該建築請負会社以外で建てた場合、同様のものが同価格で建てられるとは限りません。また建築請負会社を特定するものではありません。
- ※建築条件付き土地とは、その土地に建築する建物の建築請負契約が、一定期間内に成立することを条件として売買される土地のことをいいます。建築請負契約成立に向けて設計プランを協議するため、土地購入者が自己の希望する建物の設計協議をするために必要な相当の期間の交渉期間が設定され、その期間内で希望を満たすプランが実現できたかどうかにより結論を出します。なお、この期間は概ね3ヶ月程度とされています。納得のいくプランが出来ず、建築請負契約が成立しない場合、土地売買契約は白紙に戻り、土地契約にかかった代金(土地代金、手付金など)は名目のいかんに関わらず、全て返却されます。
- ※課税対象物件の「価格」や「費用等」は消費税込みの「総額表示」で統一しています。
- ※「本体価格」とは、課税対象物件においては「消費税を除いた建物価格」と「土地価格」の合計額を指します。
- ※課税対象物件は消費税込みの総額表示のため、不動産広告の販売価格には本体価格の金額は表示されておりません。
- ※不動産売買の媒介(仲介)・代理の際に不動産会社が受領できる報酬額には各々上限が定められています。
- ※売買物件の仲介手数料の法定上限額は「本体価格」を基準に算出します。
- ※取引にかかる費用:物件の契約手続き、決済、引き渡し時にかかる費用を表示しています。不動産会社によって表記有無が異なるため、ご自身で十分な確認をしていただくようにお願いいたします。
- ※掲載の省エネ性能ラベル内の物件・住棟・号室名称については最新のものに変更されている場合があります。
































