【12月8日更新】\200万円プライスダウン!/太陽光パネル付き平屋
【大英CODATEのHIRAYA】
・キッチンが真ん中にある間取りで短い生活動線を実現
・18帖LDK×2.7m天井高で開放感あふれる快適空間
・食洗器、浴室乾燥機、タッチレス水栓など便利な設備充実
・広々としたお庭があり、のびのびとした生活に
・アフターサポート充実で人生100年時代に合った住宅です
≪ご見学予約はWEBからが便利!≫
見学予約の空き状況が一目で分かる予約機能に対応!
お好きな日時を選べるため、面倒なスタッフとの日程調整のやりとりが不要です♪
プライスダウンいたしました!
3398万→3198万
旧価格公示日:2025年5月16日
新価格公示日:2025年11月21日
\土地85坪!のびのびとした平屋住宅です/
\安心の売主グループにお問合せください/
\限定1棟ついに完成しました^^♪/
-
ご家族が集まるリビングは、開放感のある天井高2.7m。
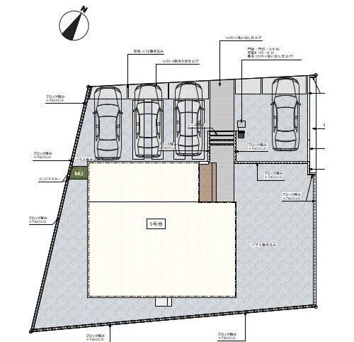
5号地
現地(2025年9月30日)撮影 -
リビングのサッシの高さは2.2m。採光や風通しを良くし、ゆとりと開放感のある心地よい空間を作ります。
5号地
現地(2025年9月30日)撮影 -
リビングの隣の居室は、小さなお子様のためのキッズスペースや、急なご来客をお通しするお部屋としても大活躍。ご家族に合った、幅広い使用用途に対応できます。
5号地
現地(2025年9月30日)撮影 -
リビング全体を見渡せるキッチンなので、ダイニングで宿題をするお子様と会話をしながら、お食事の準備やお片づけなどいかがですか?ご家族が近くに感じられる間取りです。
5号地
現地(2025年9月30日)撮影
※写真に誤り・問題がある場合はこちら
第一種低層住居専用地域
特徴ピックアップ
購入サポート制度
サポート1
| サポート概要 | 住宅ローン事前審査一括申込 | ||
|---|---|---|---|
| サポートの詳細説明 | 住宅ローン事前審査一括申込サービスを活用し、一度の入力で複数行に申込ができます。 | ||
| 料金発生有無 | なし | ||
| サポートを受けられる期間 | - | ||
| サポートを受ける場合の注意点・制約事項 | 銀行さんもそれぞれ得意・不得意がありますので、お客様のご年収や借入状況、勤続状況等ふまえて合っている銀行さんを軒並みご提案させて頂きます。 銀行さんとのやり取り等お手続きは全てこちらで引き受けますので、極力お手は煩わせません。 勿論秘密厳守で行いますので、特殊な事情がおありの方も個別でご相談ください! |
||
サポート2
| サポート概要 | オンライン接客・内見 | ||
|---|---|---|---|
| サポートの詳細説明 | 店舗へ行くことなく、パソコンやスマートフォン上でビデオ通話で資料や映像を見ながら営業担当者に相談することができます。 | ||
| 料金発生有無 | なし | ||
| サポートを受けられる期間 | ー | ||
| サポートを受ける場合の注意点・制約事項 | お家の内部を私達が撮影しながらビデオ通話することも可能です! 内見の際は中立的な立場でお家の良い所、懸念点をしっかりとお伝えしております。 リスクの部分もきちんとご理解頂いた上で比較していきましょう! 物件が建築中でも、似たような間取りを探してご案内することも可能です!遠慮なくお申し付けください♪ |
||
イベント情報
現地見学会(事前に必ず予約してください)
日程/公開中
≪WEBで見学予約が即時確定!≫
見学予約の空き状況が一目で分かる予約機能に対応!
お好きな日時を選べるため、面倒なスタッフとの日程調整のやりとりが不要です♪
赤い【見学予約(無料)】のボタンからお進みください♪
物件やお家探しについてのご質問は
黄色い【資料請求(無料)】が便利です!
その他要望の欄に質問内容をご記入ください
担当スタッフからメールやお電話にてご案内いたします♪
【WEB予約来店特典】
大英CODATEサイトからご予約後のご来場で、クオ・カードペイ10000円分プレゼント!
※特典の対象は、真剣に住宅購入をご検討中の方で、初めて大英産業の店舗・物件へご来場いただく方のみとさせていただきます。
※ご来店予定日の前日までにご予約いただいた20歳以上の方で、アンケートへのご回答および1件以上の物件見学が必要となります。
※複数店舗にご来場いただいた場合でも、特典のお渡しは1家族様1回限りとなります。
※ご本人様確認のため、身分証明書をご提示いただける方に限ります。(外国籍の方は在留カードもしくは永住権をお持ちの方に限ります。)
※他のイベントおよびその他のWEBページからの予約特典とは併用できません。
※クオ・カードペイのお渡しは後日となります。
※第三者の方のためにご見学をご希望の方は対象外となります。
※予約状況により、ご予約日時を調整いただく場合がございます。
詳しくは大英CODATEサイトをご確認ください。(2025年12月21日のご来場まで)
物件詳細情報
|
物件名
|
【太陽光パネル11.88kw搭載】大英CODATE 中間市扇ヶ浦2丁目 | ||
|---|---|---|---|
|
価格
|
3198万円 [ □支払シミュレーション ] |
間取り
|
4LDK |
|
販売戸数
|
1戸 |
総戸数
|
1戸 |
|
土地面積
|
282.41m2(85.42坪) |
建物面積
|
84.18m2(25.46坪) |
|
私道負担・道路
|
道路幅:4.6m、アスファルト舗装 |
完成時期(築年月)
|
2025年9月中旬 |
| 住所 |
福岡県中間市扇ヶ浦2 [ ■周辺環境 ] |
交通 |
筑豊電気鉄道「東中間」歩7分
西鉄バス「小田ヶ浦停」歩5分
|
| 関連リンク |
【この会社の関連サイト】
|
||
| 担当者より |
担当者 宅建
お客様にご納得のいくお家を提供できるよう努めております。不動産に携わって10年以上の経験を活かし、デメリットも含めたご提案を心掛けています!お家探しの力添えが出来れば幸いですのでお気軽に相談下さい!
|
【この物件について】
北九州での豊富な実績で幅広くご提案させていただきます^^些細なことでもお気軽にご相談ください!
【得意エリア】
八幡西区・八幡東区・若松区・中間・遠賀郡
|
|
| お問い合せ先 |
TEL:0120-356-316 「SUUMO(スーモ)を見た」と問い合わせください |
免許番号:福岡県知事(1)第019858号 取引態様:<仲介> 営業時間:10:00~17:00 / 定休日:水曜日 SUUMO(スーモ)だけではわからない物件の詳細な情報や、最新の物件情報がもらえます! こんなパンフレットが届きます |
|
区画図
|
|
街並み完成予想図 |
間取り図
-
- 価格
- : 3198万円
- 間取り
- : 4LDK
- 土地面積
- : 282.41m2
- 建物面積
- : 84.18m2
周辺環境
-
幼稚園・保育園中間東幼稚園:徒歩2分(160m)
-
幼稚園・保育園中間ひがし小規模保育園:徒歩5分(350m)
-
小学校中間東小学校:徒歩7分(550m)
-
中学校中間東中学校:徒歩6分(450m)
-
スーパー西鉄ストア レガネット中間店:徒歩12分(900m)
-
コンビニセブンイレブン福岡中間店:徒歩7分(550m)
-
駅筑豊電鉄東中間駅:徒歩7分(500m)
-
その他環境西鉄バス 小田ヶ浦停:徒歩5分(400m)
周辺施設
※地図の更新タイミングの関係で、物件情報が実際のものとは異なる場合や最新情報に更新されていない場合がございます。
※以下の南西諸島及び離島においては、表示される物件の位置が実際のものとは数百メートル程度ずれる場合がございます。
東京都:硫黄島・青ヶ島、沖縄県: 北大東島・南大東島・多良間島・水納島・与那国島・宮古諸島・石垣島・竹富島
カーナビご利用の方
見学可能な日程
日程/公開中
≪WEBで見学予約が即時確定!≫
見学予約の空き状況が一目で分かる予約機能に対応!
お好きな日時を選べるため、面倒なスタッフとの日程調整のやりとりが不要です♪
赤い【見学予約(無料)】のボタンからお進みください♪
物件やお家探しについてのご質問は
黄色い【資料請求(無料)】が便利です!
その他要望の欄に質問内容をご記入ください
担当スタッフからメールやお電話にてご案内いたします♪
【WEB予約来店特典】
大英CODATEサイトからご予約後のご来場で、クオ・カードペイ10000円分プレゼント!
※特典の対象は、真剣に住宅購入をご検討中の方で、初めて大英産業の店舗・物件へご来場いただく方のみとさせていただきます。
※ご来店予定日の前日までにご予約いただいた20歳以上の方で、アンケートへのご回答および1件以上の物件見学が必要となります。
※複数店舗にご来場いただいた場合でも、特典のお渡しは1家族様1回限りとなります。
※ご本人様確認のため、身分証明書をご提示いただける方に限ります。(外国籍の方は在留カードもしくは永住権をお持ちの方に限ります。)
※他のイベントおよびその他のWEBページからの予約特典とは併用できません。
※クオ・カードペイのお渡しは後日となります。
※第三者の方のためにご見学をご希望の方は対象外となります。
※予約状況により、ご予約日時を調整いただく場合がございます。
詳しくは大英CODATEサイトをご確認ください。(2025年12月21日のご来場まで)
設備仕様
|
【太陽光発電パネル搭載】
|
【使いやすい&家事ラクキッチン】
|
【浄水器付きタッチレス水栓】
|
||
|
【お手入れしやすいバスルーム】
|
【宅配ボックス】
|
【断熱性能を高めるアルゴンガス入りLow-e複層ガラス】
|
||
構造の特徴
|
【均一な品質性能の2×4工法】
|
【ファイヤーストップ構造体】
|
【天井高2.7m&サッシ高】
|
||
|
【経年劣化を防ぐ外壁の金物止め施工】
|
【気密性を高める吹付け発泡ウレタンの断熱材】
|
【福岡県でたった2社しかできていない全5回検査】
|
||
【太陽光パネル11.88kw搭載】大英CODATE 中間市扇ヶ浦2丁目 【一戸建て】
販売スケジュール |
- | イベント情報 |
現地見学会(事前に必ず予約してください) 日程/公開中 ≪WEBで見学予約が即時確定!≫ 見学予約の空き状況が一目で分かる予約機能に対応! お好きな日時を選べるため、面倒なスタッフとの日程調整のやりとりが不要です♪ 赤い【見学予約(無料)】のボタンからお進みください♪ 物件やお家探しについてのご質問は 黄色い【資料請求(無料)】が便利です! その他要望の欄に質問内容をご記入ください 担当スタッフからメールやお電話にてご案内いたします♪ 【WEB予約来店特典】 大英CODATEサイトからご予約後のご来場で、クオ・カードペイ10000円分プレゼント! ※特典の対象は、真剣に住宅購入をご検討中の方で、初めて大英産業の店舗・物件へご来場いただく方のみとさせていただきます。 ※ご来店予定日の前日までにご予約いただいた20歳以上の方で、アンケートへのご回答および1件以上の物件見学が必要となります。 ※複数店舗にご来場いただいた場合でも、特典のお渡しは1家族様1回限りとなります。 ※ご本人様確認のため、身分証明書をご提示いただける方に限ります。(外国籍の方は在留カードもしくは永住権をお持ちの方に限ります。) ※他のイベントおよびその他のWEBページからの予約特典とは併用できません。 ※クオ・カードペイのお渡しは後日となります。 ※第三者の方のためにご見学をご希望の方は対象外となります。 ※予約状況により、ご予約日時を調整いただく場合がございます。 詳しくは大英CODATEサイトをご確認ください。(2025年12月21日のご来場まで) |
|---|---|---|---|
所在地 |
福岡県中間市扇ヶ浦2 | 交通 |
筑豊電気鉄道「東中間」歩7分 |
販売戸数 |
1戸 | 総戸数 |
1戸 |
価格 |
3198万円
[ □支払シミュレーション ] |
最多価格帯 |
- |
私道負担・道路 |
道路幅:4.6m、アスファルト舗装 | 諸費用 |
- |
間取り |
4LDK | 建物面積 |
84.18m2(25.46坪) |
土地面積 |
282.41m2(85.42坪) | 建ぺい率・容積率 |
建ペい率:50%、容積率:80% |
完成時期(築年月) |
2025年9月中旬 | 引渡可能時期 |
即引渡可 |
土地の権利形態 |
所有権 | 構造・工法 |
木造(2×4工法) |
エネルギー消費性能 |
- | 断熱性能 |
- |
目安光熱費 |
- | 施工 |
大英産業株式会社 |
リフォーム |
- | 用途地域 |
1種低層 |
地目 |
宅地 | その他制限事項 |
法第22条区域、最低敷地面積165m2、壁面後退距離1m、最高高さ制限10m |
その他概要・特記事項 |
担当者:田口海、設備:公営水道、本下水、オール電化、建築確認番号:第R07確認建築福住セ北00012号 | ||
会社情報
| 会社概要 | <仲介> |
||
|---|---|---|---|
| 問い合わせ先 |
TEL:0120-356-316
「SUUMO(スーモ)を見た」と問い合わせください
|
||
情報提供日・更新日
| 情報提供日 | 2025年12月8日 | 次回更新日 | 情報提供より8日以内に更新 |
|---|---|---|---|
| 取引条件有効期限 | 2025年12月22日 | ||
77467578
資料請求・お問い合わせ
- 【1】入力
- 【2】確認
- 【3】完了
- ※価格は物件の代金総額を表示しており、消費税が課税される場合は税込み価格です。 (1000円未満は切り上げ。)
- ※写真に写っている、またはパース(絵)や間取り図に描かれている家具や車などは、特にコメントがない場合、販売価格に含まれません。
- ※敷地権利が定期借地権のものは価格に権利金を含みます。
- ※建築条件付き土地価格には、建物価格は含まれません。
- ※物件情報は、原則として情報提供日の2日前に最終確認した情報です。
- ※完成予想図はいずれも外構、植栽、外観等実際のものとは多少異なることがあります。
- ※モデルルーム・モデルハウス・展示場・ショールームの画像の場合、今回販売の物件と異なる場合があります。
- ※CG合成の画像の場合、実際とは多少異なる場合があります。
- ※物件特徴:販売戸数が複数の物件は、全ての住戸に該当しない項目もあります。
- ※完成後1年以上を経過した未入居物件が掲載される場合があります。ご了承ください。
- ※新着:物件情報が「SUUMO」に掲載された日から1週間表示されます。
- ※価格更新:物件価格が変更された日から1週間表示されます。
- ※販売予定物件はすべて、販売開始するまで契約または予約の申込みはできません。
- ※購入の前には物件内容や契約条件についてご自身で十分な確認をしていただくようにお願いいたします。
- ※建築条件土地の情報内に掲載されている、建物プラン例は、土地購入者の設計プランの参考の一例であって、プランの採用可否は任意です。
- ※土地(建築条件なし)で「建物プラン例」が表記してある時、そのプラン例は特定の建築請負会社によるもので、当該建築請負会社以外で建てた場合、同様のものが同価格で建てられるとは限りません。また建築請負会社を特定するものではありません。
- ※建築条件付き土地とは、その土地に建築する建物の建築請負契約が、一定期間内に成立することを条件として売買される土地のことをいいます。建築請負契約成立に向けて設計プランを協議するため、土地購入者が自己の希望する建物の設計協議をするために必要な相当の期間の交渉期間が設定され、その期間内で希望を満たすプランが実現できたかどうかにより結論を出します。なお、この期間は概ね3ヶ月程度とされています。納得のいくプランが出来ず、建築請負契約が成立しない場合、土地売買契約は白紙に戻り、土地契約にかかった代金(土地代金、手付金など)は名目のいかんに関わらず、全て返却されます。
- ※課税対象物件の「価格」や「費用等」は消費税込みの「総額表示」で統一しています。
- ※「本体価格」とは、課税対象物件においては「消費税を除いた建物価格」と「土地価格」の合計額を指します。
- ※課税対象物件は消費税込みの総額表示のため、不動産広告の販売価格には本体価格の金額は表示されておりません。
- ※不動産売買の媒介(仲介)・代理の際に不動産会社が受領できる報酬額には各々上限が定められています。
- ※売買物件の仲介手数料の法定上限額は「本体価格」を基準に算出します。
- ※取引にかかる費用:物件の契約手続き、決済、引き渡し時にかかる費用を表示しています。不動産会社によって表記有無が異なるため、ご自身で十分な確認をしていただくようにお願いいたします。
- ※掲載の省エネ性能ラベル内の物件・住棟・号室名称については最新のものに変更されている場合があります。







































