いえとち本舗

いえとち本舗

【山口】家も土地も、まとめてお任せ!ローコスト住宅はいえとち本舗のイエテラス
お気に入りに追加する
山口県山口市小郡  Mさん
【1000万円台/山口市/4LDK/35坪】収納も家族とのつながりも充実の家、間取り図有り
いえとち本舗 【1000万円台/山口市/4LDK/35坪】収納も家族とのつながりも充実の家、間取り図有りの建築実例画像1
  • 本体価格
    1,800万円1,899万円
    50.5万円53.3万円/坪
  • 延床面積
    117.99m2 (35.6坪)
    敷地面積
    194.65m2 (58.8坪)
    家族構成
    夫(30代)+妻+子ども2人
  • 竣工年月
    -
    工法
    木造軸組
この会社をもっと知りたくなったら
無料でお届け!まずはカタログ請求

施主Mさんのこだわり

収納力も家族とのスペースもどちらも大切にした充実の間取り。

Mさんが家づくりで最もこだわったのは、収納が充実した家を建てること。特にキッチンの後ろにあるパントリーはこだわったポイントの一つ。毎日の動線考えて、扉はなくしているが、お客様が来られても中は見えにくい間取りにしている。洗面脱衣室を広くとることで日々の家事を行う上で動きやすい家事導線もお気に入り。それ以外にもリビングの隣を和室にして、子どもが安心して遊べたり、両親が泊まりに来た時などの様々な使い方のできる空間を取り入れる、など満足のいく住まいに仕上がった。

Mさんが家づくりで最もこだわったのは、収納が充実した家を建てること。特にキッチンの後ろにあるパントリーはこだわったポイントの一つ。毎日の動線考えて、扉はなくしているが、お客様が来られても中は見えにくい間取りにしている。洗面脱衣室を広くとることで日々の家事を行う上で動きやすい家事導線もお気に入り。それ以外にもリビングの隣を和室にして、子どもが安心して遊べたり、両親が泊まりに来た時などの様々な使い方のできる空間を取り入れる、など満足のいく住まいに仕上がった。

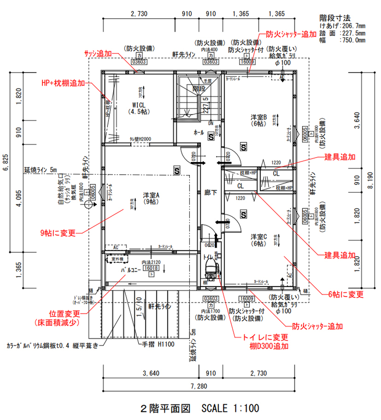
間取り図(4LDK)

1階
いえとち本舗 【1000万円台/山口市/4LDK/35坪】収納も家族とのつながりも充実の家、間取り図有りの間取り図(4LDK)1階
2階
いえとち本舗 【1000万円台/山口市/4LDK/35坪】収納も家族とのつながりも充実の家、間取り図有りの間取り図(4LDK)2階
この会社をもっと知りたくなったら
無料でお届け!まずはカタログ請求

内外観ギャラリー

この会社をもっと知りたくなったら
無料でお届け!まずはカタログ請求

この会社の他の建築実例を見る

この建築実例が気になった方へおすすめ

この建築実例の詳細情報

この建築実例を建てた店舗情報

住所 山口県山口市大内長野825-1
問い合わせ
083-902-7881
  • ※営業時間内の対応となります。

  • ※お問い合わせの際は「SUUMO(スーモ)を見て」とお伝え下さい。

ホームページ この会社のホームページへ

いえとち本舗のコンテンツ一覧

お問い合わせ

カタログをもらう
商品別カタログ
いえとち本舗のカタログ(IETERRACE(イエテラス)コンセプトブック)
IETERRACE(イエテラス)コンセプトブック
問合コード:1540670001
お問い合わせ先
083-902-7881
  • ※営業時間内の対応となります。

  • ※お問い合わせの際は「SUUMO(スーモ)を見て」とお伝え下さい。

  • 山口県山口市大内長野825-1

  • 定休日:水・木曜日

この会社のホームページへ

この会社が気になったら

カタログをもらう
商品別カタログ
いえとち本舗のカタログ(IETERRACE(イエテラス)コンセプトブック)
IETERRACE(イエテラス)コンセプトブック
問合コード:1540670001

関連キーワード

この建築実例のその他の特徴
ページトップへ戻る