まるるのおうち

まるるのおうち

「お客様満足度ナンバー1を目指す」山口県のローコスト住宅専門店
お気に入りに追加する
山口県光市  Mさん
【間取り図あり/1700万円台】シンプルデザインに和を取り入れた、洗い出しの土間がある家
まるるのおうち 【間取り図あり/1700万円台】シンプルデザインに和を取り入れた、洗い出しの土間がある家の建築実例画像1
  • 本体価格
    1,700万円1,799万円
    42.5万円44.9万円/坪
  • 延床面積
    132.48m2 (40.0坪)
    敷地面積
    293.01m2 (88.6坪)
    家族構成
    ご夫婦様、お子様1人
  • 竣工年月
    令和2年6月
    工法
    木造軸組
この会社をもっと知りたくなったら
無料でお届け!まずはカタログ請求

施主Mさんのこだわり

シンプルの中に和を取り入れたオリジナル性の高い住まい

マイホームを持ちたいと思い夫婦で色々と相談されていたMさん。まるるのおうちとの出会いで自分たちの理想とローコストの融合で予算的にも苦しくなく和にこだわるデザインも実現できました!工事担当者さまにしっかりと話を聞いていただき理想に近い家ができました!【機能・デザイン・コスト】全てにおいて納得で快適に住めています。まるるのおうちさんとの出会いは最高の出会いとなりました。土地探しをお手伝いしていただき、最後まで親身になって接していただき感謝しかありません!ローコ… 続きを読む

マイホームを持ちたいと思い夫婦で色々と相談されていたMさん。まるるのおうちとの出会いで自分たちの理想とローコストの融合で予算的にも苦しくなく和にこだわるデザインも実現できました!工事担当者さまにしっかりと話を聞いていただき理想に近い家ができました!【機能・デザイン・コスト】全てにおいて納得で快適に住めています。まるるのおうちさんとの出会いは最高の出会いとなりました。土地探しをお手伝いしていただき、最後まで親身になって接していただき感謝しかありません!ローコストのシンプルデザインに和を加えたオリジナル性あふれるM様邸。高気密・高断熱のウレタン遮熱工法を加えた高性能な住宅です。

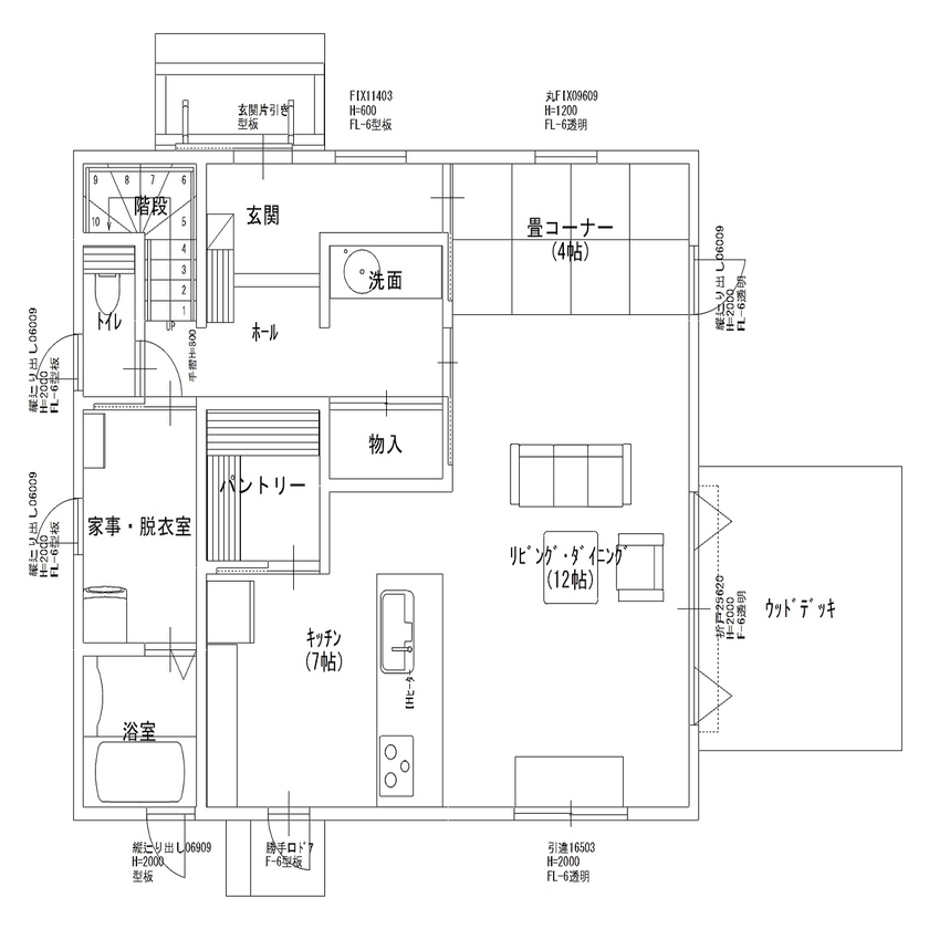
間取り図(4LDK)

1階
まるるのおうち 【間取り図あり/1700万円台】シンプルデザインに和を取り入れた、洗い出しの土間がある家の間取り図(4LDK)1階
2階
まるるのおうち 【間取り図あり/1700万円台】シンプルデザインに和を取り入れた、洗い出しの土間がある家の間取り図(4LDK)2階
この会社をもっと知りたくなったら
無料でお届け!まずはカタログ請求

内外観ギャラリー

この会社をもっと知りたくなったら
無料でお届け!まずはカタログ請求

この会社の他の建築実例を見る

この建築実例が気になった方へおすすめ

  • この建築実例のカタログをもらう

    まるるのおうちのカタログ画像
    総合カタログ
    まるるのおうちカタログ
    会社概要、考え方、ローコストの秘密をご紹介いたします。

この建築実例の詳細情報

この建築実例を建てた店舗情報

住所 山口県周南市大字栗屋277-1
問い合わせ
0834-34-3855
  • ※営業時間内の対応となります。

  • ※お問い合わせの際は「SUUMO(スーモ)を見て」とお伝え下さい。

ホームページ この会社のホームページへ

まるるのおうちのコンテンツ一覧

お問い合わせ

カタログをもらう
総合カタログ
まるるのおうちのカタログ(まるるのおうちカタログ)
まるるのおうちカタログ
問合コード:1763960001
お問い合わせ先
0834-34-3855
  • ※営業時間内の対応となります。

  • ※お問い合わせの際は「SUUMO(スーモ)を見て」とお伝え下さい。

  • 山口県周南市大字栗屋277-1

  • 定休日:予約が入っていない日曜、祝日

この会社のホームページへ

この会社が気になったら

カタログをもらう
総合カタログ
まるるのおうちのカタログ(まるるのおうちカタログ)
まるるのおうちカタログ
問合コード:1763960001

関連キーワード

この建築実例のその他の特徴
ページトップへ戻る