ジューケン

ジューケン

LIXIL賞10回受賞を誇るデザイン力で、夢をカタチに
お気に入りに追加する
広島県広島市佐伯区  Hさん
【ランドマークになる家】36坪の直角三角形の変形地を隅々まで生かして機能的に暮らす
ジューケン 【ランドマークになる家】36坪の直角三角形の変形地を隅々まで生かして機能的に暮らすの建築実例画像1
  • 本体価格
    3,500万円3,999万円
    91.5万円104.5万円/坪
  • 延床面積
    126.55m2 (38.2坪)
    敷地面積
    119.30m2 (36.0坪)
    家族構成
    夫婦+こども2人
  • 竣工年月
    2022/2
    工法
    木造軸組
この会社をもっと知りたくなったら
無料でお届け!まずはカタログ請求

施主Hさんのこだわり

外は要塞、内は光と風と緑の癒しの家

要塞のような重厚感のある外観とは裏腹に、一歩室内に入ると光と風が降り注ぎ、緑にあふれる開放的な空間が広がる。高い外壁に守られたプライベート空間は、中庭や高窓を通して外と緑が眺められ、リゾートそのものだ。「三角形の土地に四角い家の設計案が多く、デザイン的にも広さ的にも希望が叶わず、諦めかけていた」というご夫婦。ネットで見つけたジューケンに相談して描いてもらった図面は「見たことのない外観に心を奪われ、CGで中を見て、魅せられた」と夫。奇抜な家が苦手だった妻も「… 続きを読む

要塞のような重厚感のある外観とは裏腹に、一歩室内に入ると光と風が降り注ぎ、緑にあふれる開放的な空間が広がる。高い外壁に守られたプライベート空間は、中庭や高窓を通して外と緑が眺められ、リゾートそのものだ。「三角形の土地に四角い家の設計案が多く、デザイン的にも広さ的にも希望が叶わず、諦めかけていた」というご夫婦。ネットで見つけたジューケンに相談して描いてもらった図面は「見たことのない外観に心を奪われ、CGで中を見て、魅せられた」と夫。奇抜な家が苦手だった妻も「住み心地が想像でき、住みたいと思った」と夫婦の意見が一致し即決。「朝起きるのが楽しみ。緑を眺めながらコーヒーを飲む時間は最高!」と微笑む。

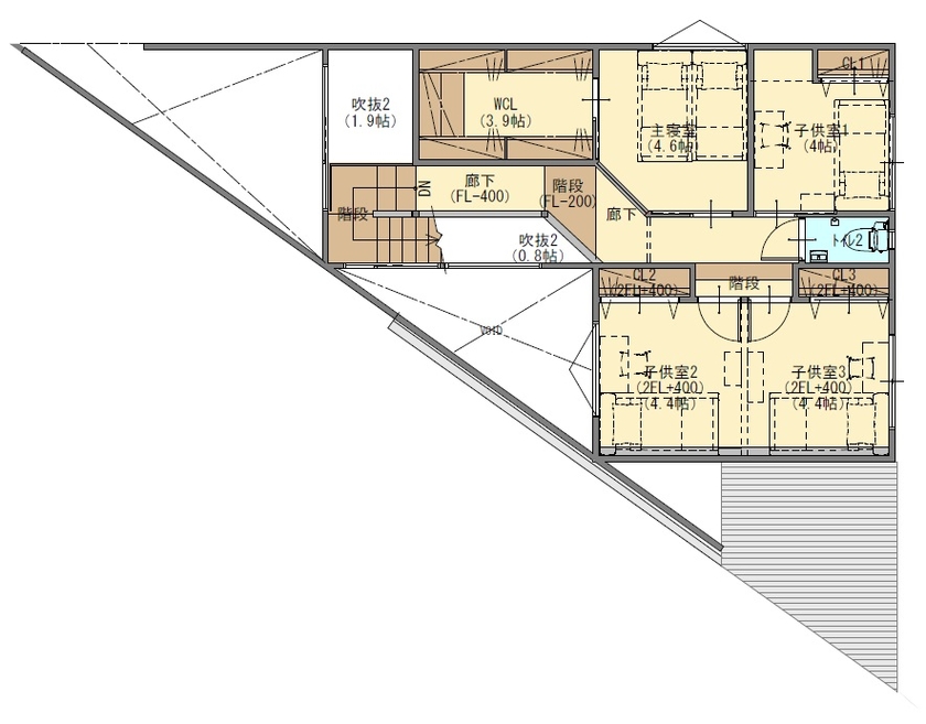
間取り図(3LDK)

1階
ジューケン 【ランドマークになる家】36坪の直角三角形の変形地を隅々まで生かして機能的に暮らすの間取り図(3LDK)1階
2階
ジューケン 【ランドマークになる家】36坪の直角三角形の変形地を隅々まで生かして機能的に暮らすの間取り図(3LDK)2階
この会社をもっと知りたくなったら
無料でお届け!まずはカタログ請求

内外観ギャラリー

この会社をもっと知りたくなったら
無料でお届け!まずはカタログ請求

この建築実例の担当者

ジューケンの担当者画像
代表取締役
吉川富志夫
得意分野
“らしさ”を素敵に表現することに拘った設計

この会社の他の建築実例を見る

この建築実例が気になった方へおすすめ

  • この建築実例のカタログをもらう

    ジューケンのカタログ画像
    総合カタログ
    JUKEN GUIDE BOOK
    ジューケンの家づくりを紹介する冊子とDVDです

この建築実例の詳細情報

この建築実例を建てた店舗情報

住所 広島県広島市中区光南4丁目4-27
問い合わせ
082-246-3741
  • ※営業時間内の対応となります。

  • ※お問い合わせの際は「SUUMO(スーモ)を見て」とお伝え下さい。

ホームページ この会社のホームページへ

ジューケンのコンテンツ一覧

お問い合わせ

カタログをもらう
総合カタログ
ジューケンのカタログ(JUKEN GUIDE BOOK)
JUKEN GUIDE BOOK
問合コード:1225400001
お問い合わせ先
082-246-3741
  • ※営業時間内の対応となります。

  • ※お問い合わせの際は「SUUMO(スーモ)を見て」とお伝え下さい。

  • 広島県広島市中区光南4丁目4-27

  • 定休日:水曜日

この会社のホームページへ

この会社が気になったら

カタログをもらう
総合カタログ
ジューケンのカタログ(JUKEN GUIDE BOOK)
JUKEN GUIDE BOOK
問合コード:1225400001

関連キーワード

この建築実例のその他の特徴
ページトップへ戻る