negla設計室

negla設計室

設計士が初回接客からアフターまで一貫対応 一緒につくりあげる塒(ねぐら)
お気に入りに追加する
宮城県仙台市青葉区  Sさん
【2300万円・37坪】モルタル外壁と大地に根を張るような大屋根が重厚感を感じさせる住まい
negla設計室 【2300万円・37坪】モルタル外壁と大地に根を張るような大屋根が重厚感を感じさせる住まいの建築実例画像1
  • 本体価格
    2,300万円
    61.7万円/坪
  • 延床面積
    123.38m2 (37.3坪)
    敷地面積
    917.01m2 (277.3坪)
    家族構成
    夫婦+子ども1人
  • 竣工年月
    2020年7月
    工法
    木造軸組
この会社をもっと知りたくなったら
無料でお届け!まずはカタログ請求

施主Sさんのこだわり

建物一体型のガレージと自然を眺める開放的な庭を持つ「森と暮らしをつなぐ家」

重厚感のある大屋根の外観とは対照的に、しなやかで柔軟性のある室内を持つ住まい。建物は道路と並行するように配置する事で駐車スペースとプライベートな広い庭を確保。玄関を入るとリビングダイニングルームが広がる。南面に設置した大きな掃き出し窓を開け放てば外と内とが一体となるアウトドアリビング空間に。暖房には炎の揺らめきが心を癒してくれる薪ストーブを採用しており、一台で暖かい空気が家全体に行き渡る設計になっている。その他落ち着きを感じさせる小上がり畳スペースや広々ウ… 続きを読む

重厚感のある大屋根の外観とは対照的に、しなやかで柔軟性のある室内を持つ住まい。建物は道路と並行するように配置する事で駐車スペースとプライベートな広い庭を確保。玄関を入るとリビングダイニングルームが広がる。南面に設置した大きな掃き出し窓を開け放てば外と内とが一体となるアウトドアリビング空間に。暖房には炎の揺らめきが心を癒してくれる薪ストーブを採用しており、一台で暖かい空気が家全体に行き渡る設計になっている。その他落ち着きを感じさせる小上がり畳スペースや広々ウォークインクローゼットなど、暮らしを豊かにするアイデアがたくさん詰まった住まいになっている。

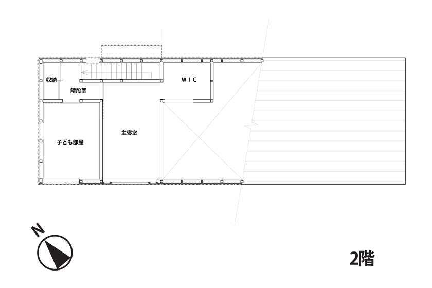
間取り図(3LDK)

1階
negla設計室 【2300万円・37坪】モルタル外壁と大地に根を張るような大屋根が重厚感を感じさせる住まいの間取り図(3LDK)1階
2階
negla設計室 【2300万円・37坪】モルタル外壁と大地に根を張るような大屋根が重厚感を感じさせる住まいの間取り図(3LDK)2階
この会社をもっと知りたくなったら
無料でお届け!まずはカタログ請求

内外観ギャラリー

この会社をもっと知りたくなったら
無料でお届け!まずはカタログ請求

この会社の他の建築実例を見る

この建築実例が気になった方へおすすめ

  • この建築実例のカタログをもらう

    negla設計室のカタログ画像
    総合カタログ
    <実例集>地に時を刻む暮らしづくり For The Future
    negla設計室の総合カタログです

この建築実例の詳細情報

この建築実例を建てた店舗情報

住所 宮城県仙台市泉区市名坂字町100-3 wisteria市名坂4F
問い合わせ
022-725-6082
  • ※営業時間内の対応となります。

  • ※お問い合わせの際は「SUUMO(スーモ)を見て」とお伝え下さい。

ホームページ この会社のホームページへ

negla設計室のコンテンツ一覧

お問い合わせ

カタログをもらう
総合カタログ
negla設計室のカタログ(<実例集>地に時を刻む暮らしづくり For The Future)
<実例集>地に時を刻む暮らしづくり For The Future
問合コード:1580390001
お問い合わせ先
022-725-6082
  • ※営業時間内の対応となります。

  • ※お問い合わせの際は「SUUMO(スーモ)を見て」とお伝え下さい。

  • 宮城県仙台市泉区市名坂字町100-3 wisteria市名坂4F

  • 定休日:毎週水曜日

この会社のホームページへ

この会社が気になったら

カタログをもらう
総合カタログ
negla設計室のカタログ(<実例集>地に時を刻む暮らしづくり For The Future)
<実例集>地に時を刻む暮らしづくり For The Future
問合コード:1580390001

関連キーワード

この建築実例のその他の特徴
ページトップへ戻る