ネクストハウスデザイン

ネクストハウスデザイン

時を超えた、新しいスタンダート。
お気に入りに追加する
栃木県  Uさん
里山の風景に溶け込む大らかな平屋暮らし
ネクストハウスデザイン 里山の風景に溶け込む大らかな平屋暮らしの建築実例画像1
  • 本体価格
    2,200万円2,299万円
    75.8万円79.2万円/坪
  • 延床面積
    96.05m2 (29.0坪)
    敷地面積
    877.60m2 (265.4坪)
    家族構成
    夫婦
  • 竣工年月
    -
    工法
    木造軸組
この会社をもっと知りたくなったら
無料でお届け!まずはカタログ請求

施主Uさんのこだわり

ウチとソトの隔たりがない暮らし

「土地を探すにあたり、大前提として、自然豊かな景色のいい場所が条件でした。あとは陶芸が趣味なので、そのための工房もつくりたくて、広い敷地も希望していました。」と語るUさん夫人。もともと古民家が建っていて、母屋のほかに納屋などがあり、その納屋を工房として利用するという点で、土地の購入を決めたそう。「ここは田舎なので、土地の価格も理想的でしたね。」とUさん。休日の朝は、ウッドデッキに座って自然に身を任せ、心をゆっくりゆるめることから始める。ウグイスの声が聞こえ… 続きを読む

「土地を探すにあたり、大前提として、自然豊かな景色のいい場所が条件でした。あとは陶芸が趣味なので、そのための工房もつくりたくて、広い敷地も希望していました。」と語るUさん夫人。もともと古民家が建っていて、母屋のほかに納屋などがあり、その納屋を工房として利用するという点で、土地の購入を決めたそう。「ここは田舎なので、土地の価格も理想的でしたね。」とUさん。休日の朝は、ウッドデッキに座って自然に身を任せ、心をゆっくりゆるめることから始める。ウグイスの声が聞こえてくると春が来たな、と。双眼鏡でバードウォッチングをすることも。トンビやカワセミを見かけたこともあるそう。「それから近所のおいしいパン屋さんへ行き、焼きたてのパンを買って、デッキでブランチをするのが日課です。」とUさん夫人。ウッドデッキのテーブルと椅子は基本的に出しっぱなしで、もうひとつのリビングのように使用。ブランチをとったら、ハンモックで寝たり、ギターを弾いたり、遊びに来る猫と遊んだり…。「ここにいると、休みだからといって特別どこかに行く必要も感じないんですよ。」とUさん。最近は造園も趣味に。「この家の庭には四季折々の花が咲きます。それを活かしながら、小庭をつくったり、芝生を張ったり…。植物も暮らしも、この里山に根付くよう、自分たちの手でゆっくり育てていきたいです。」と語る。今後の暮らしも自然で彩られていくのだろう。

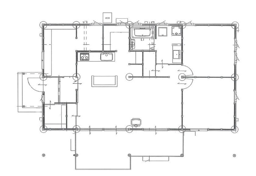
間取り図(3LDK)

1階
ネクストハウスデザイン 里山の風景に溶け込む大らかな平屋暮らしの間取り図(3LDK)1階
この会社をもっと知りたくなったら
無料でお届け!まずはカタログ請求

内外観ギャラリー

この会社をもっと知りたくなったら
無料でお届け!まずはカタログ請求

この会社の他の建築実例を見る

この建築実例が気になった方へおすすめ

この建築実例の詳細情報

この建築実例を建てた店舗情報

住所 栃木県宇都宮市東宿郷3-2-7
問い合わせ
028-680-5131
  • ※営業時間内の対応となります。

  • ※お問い合わせの際は「SUUMO(スーモ)を見て」とお伝え下さい。

ホームページ この会社のホームページへ

ネクストハウスデザインのコンテンツ一覧

お問い合わせ

カタログをもらう
総合カタログ
ネクストハウスデザインのカタログ(ネクストハウスデザイン カタログ)
ネクストハウスデザイン カタログ
問合コード:1148530001
イベントに参加する
お問い合わせ先
028-680-5131
  • ※営業時間内の対応となります。

  • ※お問い合わせの際は「SUUMO(スーモ)を見て」とお伝え下さい。

  • 栃木県宇都宮市東宿郷3-2-7

  • 定休日:水曜日、GW、お盆、年末年始

この会社のホームページへ

この会社が気になったら

カタログをもらう
総合カタログ
ネクストハウスデザインのカタログ(ネクストハウスデザイン カタログ)
ネクストハウスデザイン カタログ
問合コード:1148530001
イベントに参加する

関連キーワード

この建築実例のその他の特徴
ページトップへ戻る