BinO太田 中村住宅工業

BinO太田 中村住宅工業

自分らしい暮らしとは?想像を膨らませるとワクワクする、そんな家づくりを
お気に入りに追加する
群馬県太田市  Oさん
【BOOOTS #吹抜け #セカンドリビング】こだわりのリビング階段と薪ストーブ 自然と人が集まるLDK
BinO太田 中村住宅工業 【BOOOTS #吹抜け #セカンドリビング】こだわりのリビング階段と薪ストーブ 自然と人が集まるLDKの建築実例画像1
  • 本体価格
    1,720万円
    53.3万円/坪
  • 延床面積
    106.81m2 (32.3坪)
    敷地面積
    389.41m2 (117.7坪)
    家族構成
    夫婦+子ども1人
  • 竣工年月
    2024年4月
    工法
    木造軸組
この会社をもっと知りたくなったら
無料でお届け!まずはカタログ請求

施主Oさんのこだわり

四連窓で四季を満喫できる土間リビング 吹抜けに笑い声が響く暮らし

吹抜けの土間リビングに足を踏み入れると、こだわりのリビング階段と薪ストーブが目に飛び込んでくる。家づくりを考え始めた頃から憧れていたものが、毎日視界に入る暮らし。吹抜けのLDKは2階の洋室ともちょうどいい距離感でつながり、四連窓から見える景色は まるで四季で掛け替える絵画のようだ。土間リビングに鎮座する薪ストーブは、家族だけでなく来訪したみんなにも人気者。冬の存在感は圧倒的で、自然と人が集まる場所になる。2階のホールはセカンドリビングとしても良いスペースで… 続きを読む

吹抜けの土間リビングに足を踏み入れると、こだわりのリビング階段と薪ストーブが目に飛び込んでくる。家づくりを考え始めた頃から憧れていたものが、毎日視界に入る暮らし。吹抜けのLDKは2階の洋室ともちょうどいい距離感でつながり、四連窓から見える景色は まるで四季で掛け替える絵画のようだ。土間リビングに鎮座する薪ストーブは、家族だけでなく来訪したみんなにも人気者。冬の存在感は圧倒的で、自然と人が集まる場所になる。2階のホールはセカンドリビングとしても良いスペースである。吹抜けでLDKとの一体感もありながら姿が丸見えにならない、気配だけの関係性が心地よい。大きな壁をスクリーンにして映画鑑賞をしたり、掃出し窓から出入りするバルコニーは部屋の延長かのように使い勝手が良い。室内がこんなに充実した空間だということを匂わせてしまうのが、かっこいい外観だ。ピクチャーウインドウと薪ストーブの煙突は「どんな住まいなんだろう」と想像力を刺激する。休日は庭で子供と遊びながら、ふと顔を上げて見えた我が家にニンマリする

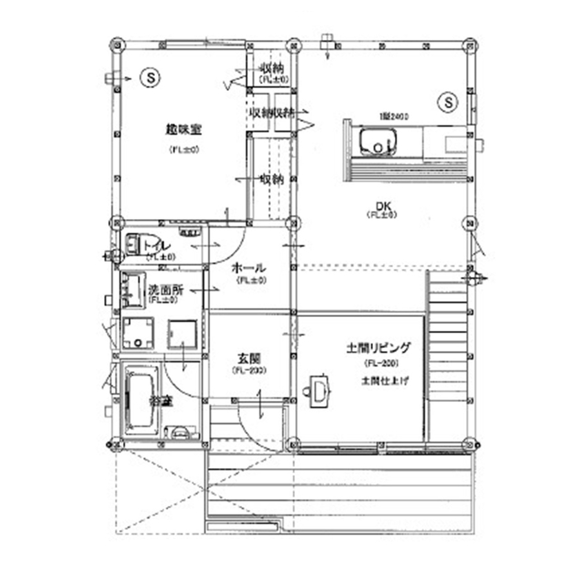
間取り図(3LDK+2階ホール)

1階
BinO太田 中村住宅工業 【BOOOTS #吹抜け #セカンドリビング】こだわりのリビング階段と薪ストーブ 自然と人が集まるLDKの間取り図(3LDK+2階ホール)1階
2階
BinO太田 中村住宅工業 【BOOOTS #吹抜け #セカンドリビング】こだわりのリビング階段と薪ストーブ 自然と人が集まるLDKの間取り図(3LDK+2階ホール)2階
この会社をもっと知りたくなったら
無料でお届け!まずはカタログ請求

内外観ギャラリー

この会社をもっと知りたくなったら
無料でお届け!まずはカタログ請求

この会社の他の建築実例を見る

この建築実例が気になった方へおすすめ

この建築実例の詳細情報

この建築実例を建てた店舗情報

住所 群馬県太田市龍舞町1803-1
問い合わせ
0276-45-0555
  • ※営業時間内の対応となります。

  • ※お問い合わせの際は「SUUMO(スーモ)を見て」とお伝え下さい。

ホームページ この会社のホームページへ

BinO太田 中村住宅工業のコンテンツ一覧

お問い合わせ

カタログをもらう
施工実例集
BinO太田 中村住宅工業のカタログ(【写真・間取り2邸!施工事例集】 BinOのLIFE STYLE MAGAZINE )
【写真・間取り2邸!施工事例集】 BinOのLIFE STYLE MAGAZINE
問合コード:1164120001
お問い合わせ先
0276-45-0555
  • ※営業時間内の対応となります。

  • ※お問い合わせの際は「SUUMO(スーモ)を見て」とお伝え下さい。

  • 群馬県太田市龍舞町1803-1

  • 定休日:【本社】日曜・祝日【展示場】火曜・水曜

この会社のホームページへ

この会社が気になったら

カタログをもらう
施工実例集
BinO太田 中村住宅工業のカタログ(【写真・間取り2邸!施工事例集】 BinOのLIFE STYLE MAGAZINE )
【写真・間取り2邸!施工事例集】 BinOのLIFE STYLE MAGAZINE
問合コード:1164120001

関連キーワード

この建築実例のその他の特徴
ページトップへ戻る