NOA HOME

NOA HOME

培ってきたデザインセンスと素材が創り出す自分スタイルの一邸
お気に入りに追加する
栃木県宇都宮市  Kさん
1からこだわりを叶えた、無垢材の温もり感じる北欧風33坪の住まい
NOA HOME 1からこだわりを叶えた、無垢材の温もり感じる北欧風33坪の住まいの建築実例画像1
  • 本体価格
    2,000万円2,499万円
    60.2万円75.2万円/坪
  • 延床面積
    110.00m2 (33.2坪)
    敷地面積
    232.00m2 (70.1坪)
    家族構成
    夫婦+犬1匹
  • 竣工年月
    2020年8月
    工法
    木造軸組
この会社をもっと知りたくなったら
無料でお届け!まずはカタログ請求

施主Kさんのこだわり

好みを汲み取る提案に大満足!夫婦それぞれの「好き」を愉しむ暮らし

ノアホームの住まいを見学し、とことんこだわりを叶えた家づくりができることに惹かれたというKさん。「北欧風の温かみのある住まい」をテーマにした家づくりを行った。無垢材の味わい深い表情に、寒色のカラーコーディネートが映えるLDKは、ヴィンテージのインテリアがマッチした統一感のある空間。「ざっくりとイメージを伝えただけで、好みに合った提案をしてくれました。わたしたちの要望をしっかりと汲み取ってくれたおかげで、ファーストプランからほぼ変わらずに今のカタチになりまし… 続きを読む

ノアホームの住まいを見学し、とことんこだわりを叶えた家づくりができることに惹かれたというKさん。「北欧風の温かみのある住まい」をテーマにした家づくりを行った。無垢材の味わい深い表情に、寒色のカラーコーディネートが映えるLDKは、ヴィンテージのインテリアがマッチした統一感のある空間。「ざっくりとイメージを伝えただけで、好みに合った提案をしてくれました。わたしたちの要望をしっかりと汲み取ってくれたおかげで、ファーストプランからほぼ変わらずに今のカタチになりましたね」と同社の提案力に大満足の様子。キッチンは夫人こだわりのL字型を採用。どこか海外のような雰囲気を感じられ、大好きな料理の時間がもっと楽しくなる、そんなキッチンを叶えた。一方でリビングはTVの背面にレンガ調のクロスを採用し、落ち着いた印象に。Kさんの趣味である映画鑑賞をより楽しめるシアタールームのような空間を実現。Kさん夫婦が「好き」も「楽しい」も感じられる暮らしに。LDKのすぐ隣に設けた水回りが一直線上でつながる動線など、暮らしやすさも追求。デザインのみならず、入居後の暮らしを考えた提案が嬉しい。1からこだわりを叶えられた家づくりにKさん夫婦は大満足だ。

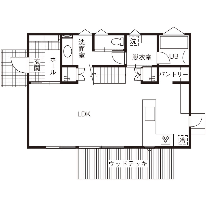
間取り図(3LDK)

1階
NOA HOME 1からこだわりを叶えた、無垢材の温もり感じる北欧風33坪の住まいの間取り図(3LDK)1階
2階
NOA HOME 1からこだわりを叶えた、無垢材の温もり感じる北欧風33坪の住まいの間取り図(3LDK)2階
この会社をもっと知りたくなったら
無料でお届け!まずはカタログ請求

内外観ギャラリー

この会社をもっと知りたくなったら
無料でお届け!まずはカタログ請求

この会社の他の建築実例を見る

この建築実例が気になった方へおすすめ

この建築実例の詳細情報

この建築実例を建てた店舗情報

住所 栃木県宇都宮市細谷町733‐1
問い合わせ
028-650-5855
  • ※営業時間内の対応となります。

  • ※お問い合わせの際は「SUUMO(スーモ)を見て」とお伝え下さい。

ホームページ この会社のホームページへ

NOA HOMEのコンテンツ一覧

お問い合わせ

カタログをもらう
総合カタログ
NOA HOMEのカタログ(ノアホーム コンセプトブック)
ノアホーム コンセプトブック
問合コード:1302400002
イベントに参加する
お問い合わせ先
028-650-5855
  • ※営業時間内の対応となります。

  • ※お問い合わせの際は「SUUMO(スーモ)を見て」とお伝え下さい。

  • 栃木県宇都宮市細谷町733‐1

  • 定休日:水曜日

この会社のホームページへ

この会社が気になったら

カタログをもらう
総合カタログ
NOA HOMEのカタログ(ノアホーム コンセプトブック)
ノアホーム コンセプトブック
問合コード:1302400002
イベントに参加する

関連キーワード

ページトップへ戻る