むぎくら

むぎくら

【土地探し×ローコスト×デザイン性】2000世帯以上への貢献実績
お気に入りに追加する
栃木県  Fさん
【2002万円/43.5坪/間取り図有】家事動線◎・収納豊富なシンプルモダンな間取り。
むぎくら 【2002万円/43.5坪/間取り図有】家事動線◎・収納豊富なシンプルモダンな間取り。の建築実例画像1
  • 本体価格
    2,002万円
    46.0万円/坪
  • 延床面積
    144.08m2 (43.5坪)
    敷地面積
    -
    家族構成
    -
  • 竣工年月
    -
    工法
    木造軸組
この会社をもっと知りたくなったら
無料でお届け!まずはカタログ請求

施主Fさんのこだわり

「住み始めてから一度も不便に思ったことはないです」

賃貸物件に住んでいたFさん。毎月出ていく家賃をただ払い続けていくのも、もったいないと感じていたそう。子どもが大きくなったこの機会に、思い切って家づくりの検討を始めたFさん。タイミングよく土地にも縁があり、一気に家づくりが進んだ。同社の建てた住まいを体感する機会があり、その建物の質の良さに驚き、すっかりファンに!暮らしを想像しやすいリアルサイズの建物は、イメージがしやすく家づくりの参考になったそう。担当さんはじっくりとFさんに寄り添い、せかすことなく自分たち… 続きを読む

賃貸物件に住んでいたFさん。毎月出ていく家賃をただ払い続けていくのも、もったいないと感じていたそう。子どもが大きくなったこの機会に、思い切って家づくりの検討を始めたFさん。タイミングよく土地にも縁があり、一気に家づくりが進んだ。同社の建てた住まいを体感する機会があり、その建物の質の良さに驚き、すっかりファンに!暮らしを想像しやすいリアルサイズの建物は、イメージがしやすく家づくりの参考になったそう。担当さんはじっくりとFさんに寄り添い、せかすことなく自分たちのペースで考えさせてくれ、いい家づくりができたとにこやかに語ってくれた。

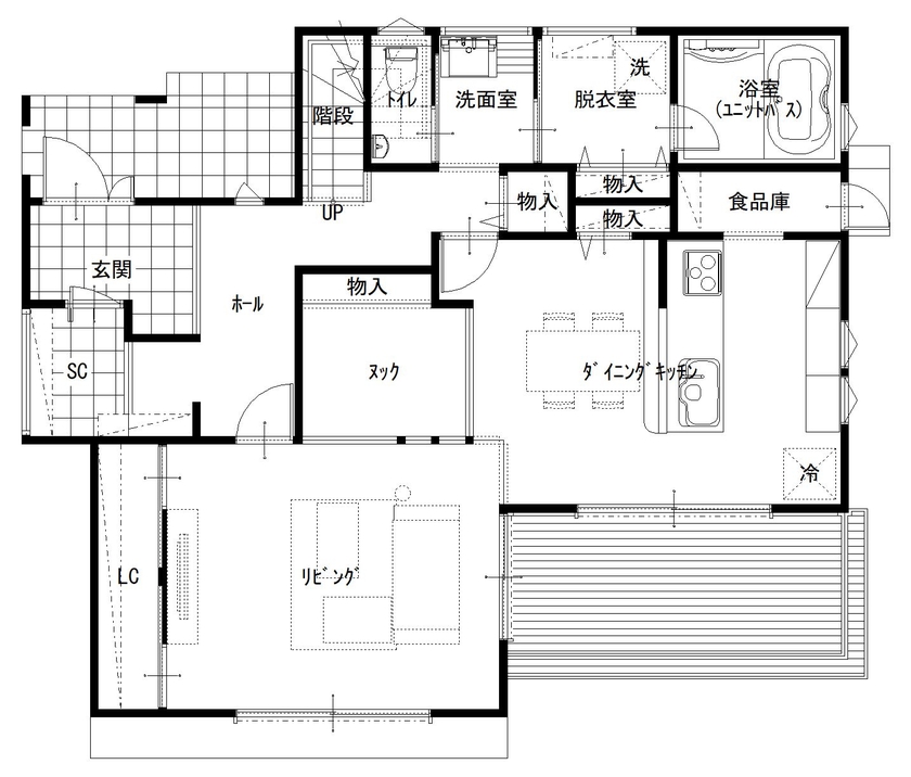
間取り図(3LDK+書斎)

1階
むぎくら 【2002万円/43.5坪/間取り図有】家事動線◎・収納豊富なシンプルモダンな間取り。の間取り図(3LDK+書斎)1階
2階
むぎくら 【2002万円/43.5坪/間取り図有】家事動線◎・収納豊富なシンプルモダンな間取り。の間取り図(3LDK+書斎)2階
この会社をもっと知りたくなったら
無料でお届け!まずはカタログ請求

内外観ギャラリー

この会社をもっと知りたくなったら
無料でお届け!まずはカタログ請求

この会社の他の建築実例を見る

この建築実例が気になった方へおすすめ

この建築実例の詳細情報

この建築実例を建てた店舗情報

住所 栃木県宇都宮市上戸祭町3007-22
問い合わせ
028-643-2331
  • ※営業時間内の対応となります。

  • ※お問い合わせの際は「SUUMO(スーモ)を見て」とお伝え下さい。

ホームページ この会社のホームページへ

むぎくらのコンテンツ一覧

お問い合わせ

カタログをもらう
総合カタログ
むぎくらのカタログ(むぎくら カタログ)
むぎくら カタログ
問合コード:1141640002
お問い合わせ先
028-643-2331
  • ※営業時間内の対応となります。

  • ※お問い合わせの際は「SUUMO(スーモ)を見て」とお伝え下さい。

  • 栃木県宇都宮市上戸祭町3007-22

  • 定休日:-

この会社のホームページへ

この会社が気になったら

カタログをもらう
総合カタログ
むぎくらのカタログ(むぎくら カタログ)
むぎくら カタログ
問合コード:1141640002

関連キーワード

この建築実例のその他の特徴
ページトップへ戻る