遊友建築工房

遊友建築工房

プロ集団と一緒につくる「自分らしいデザイン×心地よい自然素材の家」
お気に入りに追加する
兵庫県尼崎市  Nさん
【尼崎市/1000万円台/20坪台/間取り図有】心地いい無垢床、漆喰壁。北欧インテリアの似合う狭小の家
遊友建築工房 【尼崎市/1000万円台/20坪台/間取り図有】心地いい無垢床、漆喰壁。北欧インテリアの似合う狭小の家の建築実例画像1
  • 本体価格
    1,500万円1,999万円
    50.3万円67.0万円/坪
  • 延床面積
    98.74m2 (29.8坪)
    敷地面積
    89.54m2 (27.0坪)
    家族構成
    夫婦
  • 竣工年月
    2014年3月
    工法
    木造軸組
この会社をもっと知りたくなったら
無料でお届け!まずはカタログ請求

施主Nさんのこだわり

27坪のコンパクトな敷地を活かし切り、自然素材をふんだんに使った心地よい住まい

「建てるなら、絶対自然素材の住まい!」、そんな思いから家づくりを考え始めたNさん。予算の懸念は大きかったが、遊友建築工房と出会い、その夢を実現した。漆喰塗りの外壁は輝くような白さで、室内の天井・壁も同じく漆喰塗り。足元は無添加住宅(R)オリジナルのシンゴンの無垢フロアで、玄関をくぐった瞬間、清々しい空気に癒される。住宅が密集する敷地だが、抜け感のあるストリップ階段を中心に光と風が行き渡る設計に。自然素材をふんだんに使いながら、キッチンや洗面などには既製品を… 続きを読む

「建てるなら、絶対自然素材の住まい!」、そんな思いから家づくりを考え始めたNさん。予算の懸念は大きかったが、遊友建築工房と出会い、その夢を実現した。漆喰塗りの外壁は輝くような白さで、室内の天井・壁も同じく漆喰塗り。足元は無添加住宅(R)オリジナルのシンゴンの無垢フロアで、玄関をくぐった瞬間、清々しい空気に癒される。住宅が密集する敷地だが、抜け感のあるストリップ階段を中心に光と風が行き渡る設計に。自然素材をふんだんに使いながら、キッチンや洗面などには既製品を活用して予算内で叶えることができた。明るく軽やかな空気感に包まれて暮らしている(設計:遊友建築工房 設計部)。

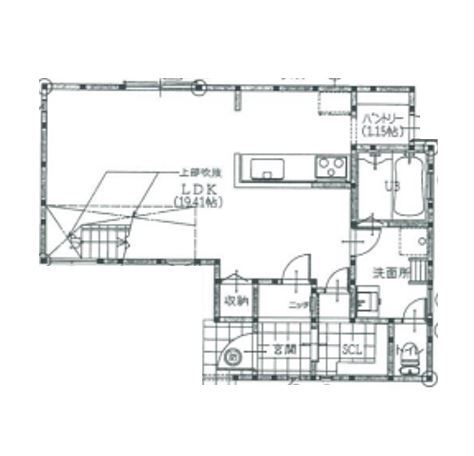
間取り図(2SLDK)

1階
遊友建築工房 【尼崎市/1000万円台/20坪台/間取り図有】心地いい無垢床、漆喰壁。北欧インテリアの似合う狭小の家の間取り図(2SLDK)1階
2階
遊友建築工房 【尼崎市/1000万円台/20坪台/間取り図有】心地いい無垢床、漆喰壁。北欧インテリアの似合う狭小の家の間取り図(2SLDK)2階
この会社をもっと知りたくなったら
無料でお届け!まずはカタログ請求

内外観ギャラリー

この会社をもっと知りたくなったら
無料でお届け!まずはカタログ請求

この会社の他の建築実例を見る

この建築実例が気になった方へおすすめ

この建築実例の詳細情報

この建築実例を建てた店舗情報

住所 兵庫県尼崎市武庫之荘1-20-13 YUYU PARK 3F
問い合わせ
0120-11-8072
  • ※営業時間内の対応となります。

  • ※お問い合わせの際は「SUUMO(スーモ)を見て」とお伝え下さい。

ホームページ この会社のホームページへ

遊友建築工房のコンテンツ一覧

お問い合わせ

カタログをもらう
総合カタログ
遊友建築工房のカタログ(【USMORE】YU-YU STYLE 総合カタログ)
【USMORE】YU-YU STYLE 総合カタログ
問合コード:1660640001
お問い合わせ先
0120-11-8072
  • ※営業時間内の対応となります。

  • ※お問い合わせの際は「SUUMO(スーモ)を見て」とお伝え下さい。

  • 兵庫県尼崎市武庫之荘1-20-13 YUYU PARK 3F

  • 定休日:なし(年末年始・夏期休暇あり)

この会社のホームページへ

この会社が気になったら

カタログをもらう
総合カタログ
遊友建築工房のカタログ(【USMORE】YU-YU STYLE 総合カタログ)
【USMORE】YU-YU STYLE 総合カタログ
問合コード:1660640001

関連キーワード

この建築実例のその他の特徴
ページトップへ戻る