KADeL

KADeL

受賞実績豊富な設計のプロが手掛けるデザイン住宅が「30坪・2000万円台」から
お気に入りに追加する
兵庫県川西市  Hさん
【3000万円台/兵庫県/間取り図有】「囲む家」中庭を囲み開放感とプライバシーを両立 外に閉じて内に開く家
  • 本体価格
    3,780万円
    129.8万円/坪
  • 延床面積
    96.28m2 (29.1坪)
    敷地面積
    138.37m2 (41.8坪)
    家族構成
    夫婦+子供1人
    竣工年月
    2019年7月
    工法
    木造軸組(高耐震・高制震ハイブリッド木造軸組工法)
  • 特徴
    耐震・免震・制震  |  2階建て  |  省エネ・創エネ・エコ(eco)  |  家事がラク  |  高耐久  |  高気密・高断熱  |  シンプルモダン  |  …
この会社をもっと知りたくなったら
無料でお届け!まずはカタログ請求

施主Hさんのこだわり

外観は建築的な美しさを追求 家の中に小さな外がある住まい

ご自身で設計のお仕事をされているHさん。限られた予算の中で、KADeLの担当者がHさんと最も近い感覚でコストバランスを考えながら一緒に考えてくれそうと感じたことが、KADeLと契約した決め手でした。設計するうえで、一番こだわったのは庭です。家のどこにいても自然を感じられるように、5つの庭を設けました。前庭と中庭と、テラス庭。畑ができる庭もあって、ルーフテラスもあります。家の中にいても、どの部屋からでも緑が見えて、解放感もあり、とても落ち着きます。昼間は照明… 続きを読む

ご自身で設計のお仕事をされているHさん。限られた予算の中で、KADeLの担当者がHさんと最も近い感覚でコストバランスを考えながら一緒に考えてくれそうと感じたことが、KADeLと契約した決め手でした。設計するうえで、一番こだわったのは庭です。家のどこにいても自然を感じられるように、5つの庭を設けました。前庭と中庭と、テラス庭。畑ができる庭もあって、ルーフテラスもあります。家の中にいても、どの部屋からでも緑が見えて、解放感もあり、とても落ち着きます。昼間は照明をつけなくても十分明るく、窓の配置にもこだわったので、心地よい自然の風が通ります。家の中に居場所がたくさんあり、もし、テレワークをするとしても、2階の寝室でも、ダイニングでも、庭を眺めながら仕事ができます。中庭カフェみたいにリラックスして過ごすこともできます。中庭をライトアップしながら、晩酌をするのがお気に入りです。庭の木々が風で揺れているのを眺めるのが、いい感じです。

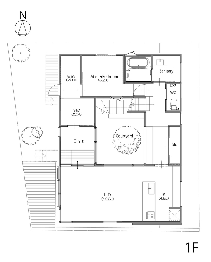
間取り図(3LDK)

1階
KADeL 【3000万円台/兵庫県/間取り図有】「囲む家」中庭を囲み開放感とプライバシーを両立 外に閉じて内に開く家の間取り図(3LDK)1階

シューズクロークを備えた広い玄関に吹き抜け&勾配天井のLDK、シンボルツリーを眺めながら作業ができる家事室にゆったりと身支度ができる洗面スペース、そして、併設するウォークインクロゼットからシューズクロークを抜けると直接玄関へと繋がる寝室、それらすべての部屋が中庭を囲むように配置されており、閉鎖的な外… 続きを読む

シューズクロークを備えた広い玄関に吹き抜け&勾配天井のLDK、シンボルツリーを眺めながら作業ができる家事室にゆったりと身支度ができる洗面スペース、そして、併設するウォークインクロゼットからシューズクロークを抜けると直接玄関へと繋がる寝室、それらすべての部屋が中庭を囲むように配置されており、閉鎖的な外観からは想像できないほど明るく開放的な空間が広がっている。

2階
KADeL 【3000万円台/兵庫県/間取り図有】「囲む家」中庭を囲み開放感とプライバシーを両立 外に閉じて内に開く家の間取り図(3LDK)2階

2階は、子ども室とバーベキューなどもできる4.7畳の広いテラスで構成されたシンプルな造り。子ども室には出入り口とクロゼットを2つずつ設置。将来は間仕切りを入れて2つの個室として使用することができる。

2階は、子ども室とバーベキューなどもできる4.7畳の広いテラスで構成されたシンプルな造り。子ども室には出入り口とクロゼットを2つずつ設置。将来は間仕切りを入れて2つの個室として使用することができる。

この会社をもっと知りたくなったら
無料でお届け!まずはカタログ請求

内外観ギャラリー

この会社をもっと知りたくなったら
無料でお届け!まずはカタログ請求

施主Hさんがこの会社に決めた理由

決め手は「お話ししていてわくわくできたから」。検討を重ね、後悔のない家づくりに

自身も設計の仕事に従事するHさん。同じ感覚で一緒に楽しんでくれる会社にお願いしたいと依頼先探しをはじめ、見つけたのがKADeLだった。「お話ししていてわくわくできたのが決め手ですね。素材や色など『こっちかな、あっちかな』といろいろ検討させていただけたので、後悔のない満足のいく家づくりになりました。お願いして本当によかったです」。

自身も設計の仕事に従事するHさん。同じ感覚で一緒に楽しんでくれる会社にお願いしたいと依頼先探しをはじめ、見つけたのがKADeLだった。「お話ししていてわくわくできたのが決め手ですね。素材や色など『こっちかな、あっちかな』といろいろ検討させていただけたので、後悔のない満足のいく家づくりになりました。お願いして本当によかったです」。

この建築実例の担当者より

たくさんお話をして一緒に作り上げたお住まい。わくわくする空間構成になっています

設計のお仕事をされているということで、本当にたくさんお話をしながら一緒に作り上げていったお住まいです。迫り出した2階部分の下をくぐり、外部階段を上がって玄関のある中庭へと続くアプローチなど、敷地の高低差を活かしたわくわくする空間構成になっています。後悔のないお家づくりになったとご満足いただいており、私たちもとても嬉しいですね。

設計のお仕事をされているということで、本当にたくさんお話をしながら一緒に作り上げていったお住まいです。迫り出した2階部分の下をくぐり、外部階段を上がって玄関のある中庭へと続くアプローチなど、敷地の高低差を活かしたわくわくする空間構成になっています。後悔のないお家づくりになったとご満足いただいており、私たちもとても嬉しいですね。

KADeLの担当者画像
本社 所長
西尾真一
得意分野
建築設計
実績
100棟

この会社の他の建築実例を見る

この建築実例が気になった方へおすすめ

  • この建築実例のカタログをもらう

    KADeLのカタログ画像
    施工実例集
    KADeL-建築実例集-
    1邸1邸丁寧に創るKADeLの住宅。KADeLの創る環境共生住宅を体感する事ができます。
  • モデルハウスを見学する

    KADeLのモデルハウス画像1
    KADeLのモデルハウス画像2
    • 延床面積
      142.32m243.0坪)
    • 所在地
      大阪府羽曳野市野々上2-30-1 ※本社へ来訪いただいた後、現地へご案内
    • 営業時間
      9:00~18:00 ※18:00以降は応相談(定休日:毎週火・水曜日)
    • ナチュラル
    • 建築家
    • 家事ラク
    • 快適
  • イベントに参加する

    KADeLのイベント画像
    【個別プラン相談会/@心斎橋・本社・オンライン可】受賞歴多数の住宅作家が個別にご対応!同時間帯一組様限定でじっくりプロにご相談 【コンセプトハウスも見学可能】
    • 設計・資金相談会
    • 入居者宅見学会
    • モデルハウス見学会
    • 土地相談会
    開催日
    お問い合わせいただき次第、随時開催いたします。
    開催場所
    大阪府大阪市中央区南船場4-5-8 RASTER ON SHINSAIBASHI 5F
    参加特典
    コインパーキングの3時間割引券をプレゼント!
    お子さま連れのご家族にはお菓子セットをプレゼント!

この建築実例の詳細情報

この建築実例を建てた店舗情報

店舗名 心斎橋店
住所 大阪府大阪市中央区南船場4丁目5-8 RASTER ON SHINSAIBASHI 5F
問い合わせ
0120-259-118
  • ※営業時間内の対応となります。

  • ※お問い合わせの際は「SUUMO(スーモ)を見て」とお伝え下さい。

ホームページ この会社のホームページへ

KADeLのコンテンツ一覧

お問い合わせ

カタログをもらう
カタログ一覧

この会社が気になったら

カタログをもらう

関連キーワード

この建築実例のその他の特徴
ページトップへ戻る