運船建設

運船建設

倉敷で創業60年超 厳選した自然素材×外断熱で四季を通じて年中快適な住まいを提案 
お気に入りに追加する
岡山県都窪郡  Mさん
思い出の家具が彩る、夫婦のちょうど良い暮らし
運船建設 思い出の家具が彩る、夫婦のちょうど良い暮らしの建築実例画像1
  • 本体価格
    -
  • 延床面積
    103.51m2 (31.3坪)
    敷地面積
    231.42m2 (70.0坪)
    家族構成
    夫婦
  • 竣工年月
    2020/8/1
    工法
    木造軸組
この会社をもっと知りたくなったら
無料でお届け!まずはカタログ請求

施主Mさんのこだわり

思い出の家具が彩る、夫婦のちょうど良い暮らし

以前は岡山県北にログハウスを構え、自然に囲まれながら悠々とした別荘暮らしを楽しんでいたMさまご夫婦が、新たな住処に求めたのは、2人暮らしにちょうど良い広さと暮らしやすさ。手の届く距離で思い思いに過ごせる個室と一体感のあるLDKで使い勝手の良い間取りの中に、ログハウスの面影を残すような設計を希望されていました。リビングはシーリングファンを設置できる天井高に設定し、平屋ながらのびやかな空間を実現。ご主人の大切にしている西ドイツ製の薪ストーブがおける暖炉も設置し… 続きを読む

以前は岡山県北にログハウスを構え、自然に囲まれながら悠々とした別荘暮らしを楽しんでいたMさまご夫婦が、新たな住処に求めたのは、2人暮らしにちょうど良い広さと暮らしやすさ。手の届く距離で思い思いに過ごせる個室と一体感のあるLDKで使い勝手の良い間取りの中に、ログハウスの面影を残すような設計を希望されていました。リビングはシーリングファンを設置できる天井高に設定し、平屋ながらのびやかな空間を実現。ご主人の大切にしている西ドイツ製の薪ストーブがおける暖炉も設置した。洗面所につながるドアは、ログハウスで使っていた木製のデザイン扉を再利用し、家の機能性と愛着のある家具や素材の個性をうまくなじませています。

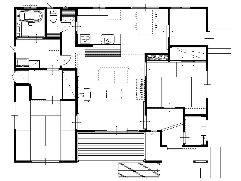
間取り図(2LDK)

1階
運船建設 思い出の家具が彩る、夫婦のちょうど良い暮らしの間取り図(2LDK)1階
この会社をもっと知りたくなったら
無料でお届け!まずはカタログ請求

内外観ギャラリー

この会社をもっと知りたくなったら
無料でお届け!まずはカタログ請求

この会社の他の建築実例を見る

この建築実例が気になった方へおすすめ

この建築実例の詳細情報

この建築実例を建てた店舗情報

住所 岡山県倉敷市日吉町492-6
問い合わせ
086-422-1143
  • ※営業時間内の対応となります。

  • ※お問い合わせの際は「SUUMO(スーモ)を見て」とお伝え下さい。

ホームページ この会社のホームページへ

運船建設のコンテンツ一覧

お問い合わせ

カタログをもらう
施工実例集
運船建設のカタログ(UNSEN STYLE)
UNSEN STYLE
問合コード:1071910001
お問い合わせ先
086-422-1143
  • ※営業時間内の対応となります。

  • ※お問い合わせの際は「SUUMO(スーモ)を見て」とお伝え下さい。

  • 岡山県倉敷市日吉町492-6

  • 定休日:毎週水曜日

この会社のホームページへ

この会社が気になったら

カタログをもらう
施工実例集
運船建設のカタログ(UNSEN STYLE)
UNSEN STYLE
問合コード:1071910001

関連キーワード

この建築実例のその他の特徴
2人暮らし  |  レトロ  |  アンティーク  |  クラシック  |  おしゃれ  |  開放感  |  重厚感  |  落ち着き  |  かっこいい  |  クール  |  ハイセンス  |  男前  |  テラス  |  ウッドデッキ  |  車庫
ページトップへ戻る