アサヒアレックス

アサヒアレックス

お客様の暮らしのすべてを心でささえ、「心あたたまる幸せな暮らし」をご提供
お気に入りに追加する
【本体価格2000~2500万円】本物の素材でアンティーク感のあるインダストリアルデザイン
アサヒアレックス 【本体価格2000~2500万円】本物の素材でアンティーク感のあるインダストリアルデザインの建築実例画像1
  • 本体価格
    2,430万円
    66.5万円/坪
  • 延床面積
    120.88m2 (36.5坪)
    敷地面積
    171.04m2 (51.7坪)
    家族構成
    -
  • 竣工年月
    2018年3月
    工法
    木造軸組
この会社をもっと知りたくなったら
無料でお届け!まずはカタログ請求

施主Tさんのこだわり

ウッド×レンガ×アイアン 多彩な融合でアンティーク調な住まい

コンクリートやアイアンなどの金属素材を使ったアンティーク調を感じさせるインダストリアルデザインのTさん邸。ダウンフロアに続く大開口からのウッドデッキで広々とした開放感を感じられるリビング。木製キッチンや造作棚、アルミセードの照明など細かい部分までアンティークな演出の一つになっているこだわりようだ。家全体に多彩な質感の本物の素材を感じながら生活の出来る住まいが出来上がった。また、内外ダブル断熱や床下冷暖房システムなど工法性能の高さも魅力の一つ

コンクリートやアイアンなどの金属素材を使ったアンティーク調を感じさせるインダストリアルデザインのTさん邸。ダウンフロアに続く大開口からのウッドデッキで広々とした開放感を感じられるリビング。木製キッチンや造作棚、アルミセードの照明など細かい部分までアンティークな演出の一つになっているこだわりようだ。家全体に多彩な質感の本物の素材を感じながら生活の出来る住まいが出来上がった。また、内外ダブル断熱や床下冷暖房システムなど工法性能の高さも魅力の一つ

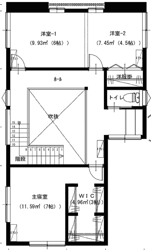
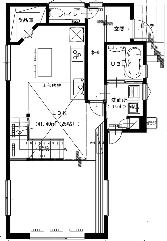
間取り図(3LDK)

1階
アサヒアレックス 【本体価格2000~2500万円】本物の素材でアンティーク感のあるインダストリアルデザインの間取り図(3LDK)1階
2階
アサヒアレックス 【本体価格2000~2500万円】本物の素材でアンティーク感のあるインダストリアルデザインの間取り図(3LDK)2階
この会社をもっと知りたくなったら
無料でお届け!まずはカタログ請求

内外観ギャラリー

この会社をもっと知りたくなったら
無料でお届け!まずはカタログ請求

この会社の他の建築実例を見る

この建築実例が気になった方へおすすめ

この建築実例の詳細情報

この建築実例を建てた店舗情報

住所 新潟県新潟市中央区美咲町1-9-48
問い合わせ
025-285-1112
  • ※営業時間内の対応となります。

  • ※お問い合わせの際は「SUUMO(スーモ)を見て」とお伝え下さい。

ホームページ この会社のホームページへ

アサヒアレックスのコンテンツ一覧

お問い合わせ

カタログをもらう
総合カタログ
アサヒアレックスのカタログ(アサヒアレックス プロミスブック)
アサヒアレックス プロミスブック
問合コード:1050670002
お問い合わせ先
025-285-1112
  • ※営業時間内の対応となります。

  • ※お問い合わせの際は「SUUMO(スーモ)を見て」とお伝え下さい。

  • 新潟県新潟市中央区美咲町1-9-48

  • 定休日:水曜・木曜

この会社のホームページへ

この会社が気になったら

カタログをもらう
総合カタログ
アサヒアレックスのカタログ(アサヒアレックス プロミスブック)
アサヒアレックス プロミスブック
問合コード:1050670002

関連キーワード

この建築実例のその他の特徴
ページトップへ戻る