アサヒアレックス

アサヒアレックス

お客様の暮らしのすべてを心でささえ、「心あたたまる幸せな暮らし」をご提供
お気に入りに追加する
宮城県仙台市若林区  Sさん
人があつまり、いつでも笑い声のあふれる家
アサヒアレックス 人があつまり、いつでも笑い声のあふれる家の建築実例画像1
  • 本体価格
    1,930万円
    61.2万円/坪
  • 延床面積
    104.34m2 (31.5坪)
    敷地面積
    174.11m2 (52.6坪)
    家族構成
    -
  • 竣工年月
    2019年1月
    工法
    木造軸組
この会社をもっと知りたくなったら
無料でお届け!まずはカタログ請求

施主Sさんのこだわり

スケルトン階段を中心に広がるLDK

天然木と白を基調にした明るい家を希望。人が集まれる広々としたリビングとモデルハウスで気に入った中央に階段があるプランを採用。空間を穏やかに仕切り、それぞれ雰囲気の違うデザインでまとめた。

天然木と白を基調にした明るい家を希望。人が集まれる広々としたリビングとモデルハウスで気に入った中央に階段があるプランを採用。空間を穏やかに仕切り、それぞれ雰囲気の違うデザインでまとめた。

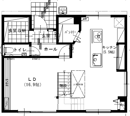
間取り図(2LDK)

1階
アサヒアレックス 人があつまり、いつでも笑い声のあふれる家の間取り図(2LDK)1階
2階
アサヒアレックス 人があつまり、いつでも笑い声のあふれる家の間取り図(2LDK)2階
この会社をもっと知りたくなったら
無料でお届け!まずはカタログ請求

内外観ギャラリー

この会社をもっと知りたくなったら
無料でお届け!まずはカタログ請求

この会社の他の建築実例を見る

この建築実例が気になった方へおすすめ

この建築実例の詳細情報

この建築実例を建てた店舗情報

住所 新潟県新潟市中央区美咲町1-9-48
問い合わせ
025-285-1112
  • ※営業時間内の対応となります。

  • ※お問い合わせの際は「SUUMO(スーモ)を見て」とお伝え下さい。

ホームページ この会社のホームページへ

アサヒアレックスのコンテンツ一覧

お問い合わせ

カタログをもらう
総合カタログ
アサヒアレックスのカタログ(アサヒアレックス プロミスブック)
アサヒアレックス プロミスブック
問合コード:1050670002
お問い合わせ先
025-285-1112
  • ※営業時間内の対応となります。

  • ※お問い合わせの際は「SUUMO(スーモ)を見て」とお伝え下さい。

  • 新潟県新潟市中央区美咲町1-9-48

  • 定休日:水曜・木曜

この会社のホームページへ

この会社が気になったら

カタログをもらう
総合カタログ
アサヒアレックスのカタログ(アサヒアレックス プロミスブック)
アサヒアレックス プロミスブック
問合コード:1050670002

関連キーワード

この建築実例のその他の特徴
ページトップへ戻る