アンドクリエイト

アンドクリエイト

あなたの夢+αの住まいづくりをご提案いたします
お気に入りに追加する
和モダンと北欧スタイルが絶妙に融合。美しいデザインに満たされた住まい
アンドクリエイト 和モダンと北欧スタイルが絶妙に融合。美しいデザインに満たされた住まいの建築実例画像1
  • 本体価格
    -
  • 延床面積
    155.68m2 (47.0坪)
    敷地面積
    157.47m2 (47.6坪)
    家族構成
    -
  • 竣工年月
    2019年9月
    工法
    木造軸組
この会社をもっと知りたくなったら
無料でお届け!まずはカタログ請求

施主Sさんのこだわり

全体に洗練感と上質感をもたらす、細部までのこだわり

好みのスタイルは人によってさまざま。そんな多様なニーズに応えてくれるのがアンドクリエイトだ。S氏邸は、「空とつながる」をコンセプトにした、洗練感と上質感あふれる和モダンと北欧スタイルがミックスしたようなデザインが個性的な2階LDKのお宅だ。2階に配したリビングとダイニングキッチンは、あえて間に畳コーナーを挟んでいるのが特徴。リビングはフローリングと天井に木を張り、和の趣を感じる壁紙にして落ち着きのあるデザインに。ローテーブルを置いて座卓スタイルでゆっくりと… 続きを読む

好みのスタイルは人によってさまざま。そんな多様なニーズに応えてくれるのがアンドクリエイトだ。S氏邸は、「空とつながる」をコンセプトにした、洗練感と上質感あふれる和モダンと北欧スタイルがミックスしたようなデザインが個性的な2階LDKのお宅だ。2階に配したリビングとダイニングキッチンは、あえて間に畳コーナーを挟んでいるのが特徴。リビングはフローリングと天井に木を張り、和の趣を感じる壁紙にして落ち着きのあるデザインに。ローテーブルを置いて座卓スタイルでゆっくりとくつろげる空間に仕上げている。一方でダイニングキッチンにはルイスポールセンのPH5ライトや上質な家具を置いた北欧スタイルに。無駄のないスッキリとしたインテリアが空間にマッチした洗練感あふれるデザインに仕上がっている。さらに玄関ホールの壁に天然石を張ったり、間接照明がホテルライクな空間を演出する洗面など、ワンランク上のあしらいやデザインが随所に。高級感あふれる上質なデザイン住宅となった。

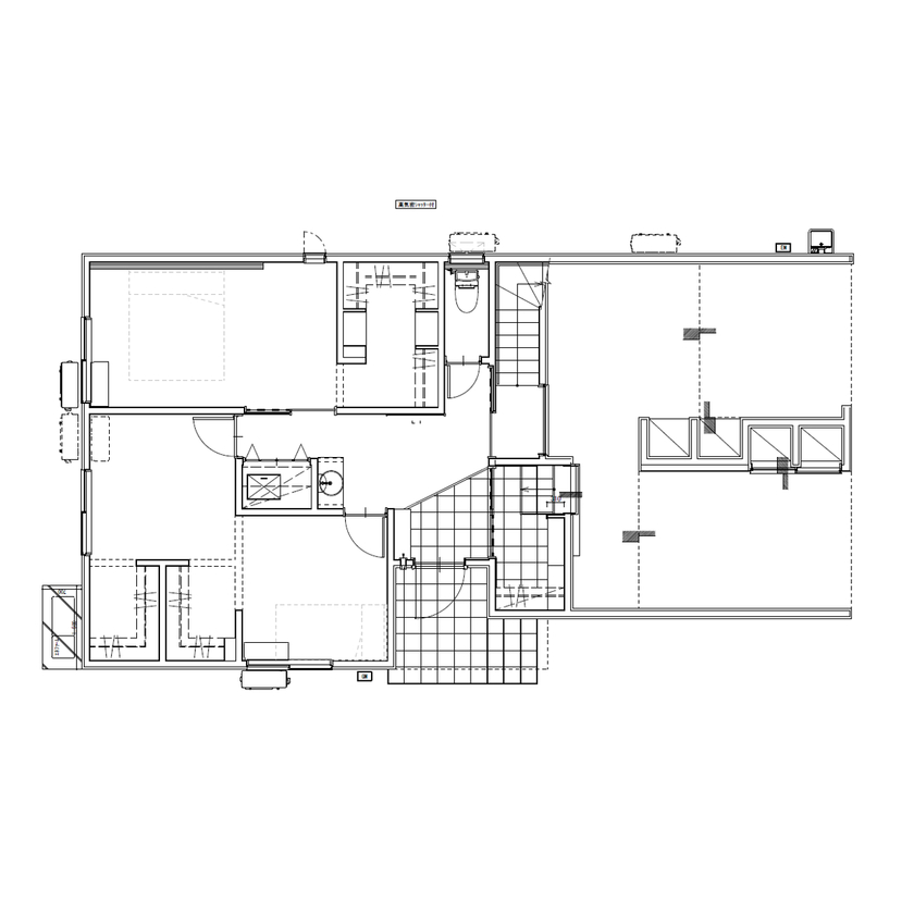
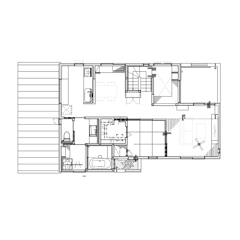
間取り図(4LDK)

1階
アンドクリエイト 和モダンと北欧スタイルが絶妙に融合。美しいデザインに満たされた住まいの間取り図(4LDK)1階
2階
アンドクリエイト 和モダンと北欧スタイルが絶妙に融合。美しいデザインに満たされた住まいの間取り図(4LDK)2階
この会社をもっと知りたくなったら
無料でお届け!まずはカタログ請求

内外観ギャラリー

この会社をもっと知りたくなったら
無料でお届け!まずはカタログ請求

この会社の他の建築実例を見る

この建築実例が気になった方へおすすめ

この建築実例の詳細情報

この建築実例を建てた店舗情報

住所 新潟県新潟市中央区湖南5-4
問い合わせ
0800-800-7070
  • ※営業時間内の対応となります。

  • ※お問い合わせの際は「SUUMO(スーモ)を見て」とお伝え下さい。

ホームページ この会社のホームページへ

アンドクリエイトのコンテンツ一覧

お問い合わせ

カタログをもらう
総合カタログ
アンドクリエイトのカタログ(アンドクリエイト総合カタログ)
アンドクリエイト総合カタログ
問合コード:1548090001
お問い合わせ先
0800-800-7070
  • ※営業時間内の対応となります。

  • ※お問い合わせの際は「SUUMO(スーモ)を見て」とお伝え下さい。

  • 新潟県新潟市中央区湖南5-4

この会社のホームページへ

この会社が気になったら

カタログをもらう
総合カタログ
アンドクリエイトのカタログ(アンドクリエイト総合カタログ)
アンドクリエイト総合カタログ
問合コード:1548090001

関連キーワード

この建築実例のその他の特徴
ページトップへ戻る