【3LDK・コの字型キッチン・薪ストーブ】陰影を楽しむ、Barのような住まい
施主Kさんのこだわり
信州へ来て数年、仕事も落ち着き、家づくりを考え始めたK様。元々自然素材の家を希望しており、いくつかモデルハウスを見て回る中で工房信州の家がイメージにピッタリだと感じた。長野県産赤松の無垢床材の質感が決め手になったという。K様邸の最大の特徴は「陰影」。心が休まる空間をつくりたいという思いからBarのような落ち着きを持つ家を目指した。色合いや色温度まで、担当のインテリアコーディネーターと一緒に妥協せずこだわった照明計画。板張りの範囲も極力多くしつつ、視線が遠く…
続きを読む
信州へ来て数年、仕事も落ち着き、家づくりを考え始めたK様。元々自然素材の家を希望しており、いくつかモデルハウスを見て回る中で工房信州の家がイメージにピッタリだと感じた。長野県産赤松の無垢床材の質感が決め手になったという。K様邸の最大の特徴は「陰影」。心が休まる空間をつくりたいという思いからBarのような落ち着きを持つ家を目指した。色合いや色温度まで、担当のインテリアコーディネーターと一緒に妥協せずこだわった照明計画。板張りの範囲も極力多くしつつ、視線が遠くまで抜けるような間取りを意識したり、珪藻土壁とのバランスを取ることで、板張りメインの空間も圧迫感を感じない。キッチンは、WOODONEのII型フレームキッチンをベースに、コの字型になるようカウンターを計画。まさにBarのような雰囲気でありながら、実用的で使いやすい。こだわり抜いたライティングが生み出す陰影が、家族にとってほっとする空間をつくっている。
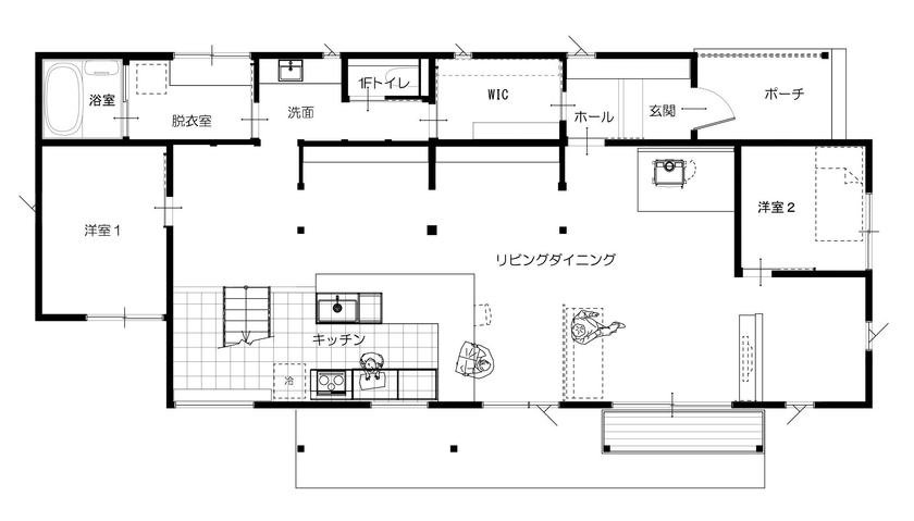
間取り図(3LDK+フリースペース)
内外観ギャラリー
-
ゆるやかな勾配の片流れ屋根。下屋の掛け方や窓サイズ・位置のバランスにこだわった。
ゆるやかな勾配の片流れ屋根。下屋の掛け方や窓サイズ・位置のバランスにこだわった。
-
1階部分の外壁仕上げは杉の板張り。オリーブ色の塗装でナチュラルな印象に。外構も自然なものにこだわり、周辺の景色…
続きを読む
1階部分の外壁仕上げは杉の板張り。オリーブ色の塗装でナチュラルな印象に。外構も自然なものにこだわり、周辺の景色・景観を邪魔しないデザインとした。
-
キッチン本体はWOODONEのFRAME KITCHEN。栗材の造作カウンターと合わせコの字型とした。デザイン…
続きを読む
キッチン本体はWOODONEのFRAME KITCHEN。栗材の造作カウンターと合わせコの字型とした。デザインも使いやすさも妥協せずつくった、家族お気に入りの場。床・壁・天井を板張りにしながらも落ち着きを感じる。
-
リビングとダイニングは一体空間でありながら、縦格子でほどよく区切る。吹き抜けは大きくないが、視線が抜けることで…
続きを読む
リビングとダイニングは一体空間でありながら、縦格子でほどよく区切る。吹き抜けは大きくないが、視線が抜けることで圧迫感はない。
-
空間全体をあえて暗くし、Barのような雰囲気のキッチン。カウンターに座る人と目線が合うようキッチンは一段下がり…
続きを読む
空間全体をあえて暗くし、Barのような雰囲気のキッチン。カウンターに座る人と目線が合うようキッチンは一段下がりとした。
-
キッチンに立ち、正面は珪藻土の白壁に。床・壁・天井、四方を板張りとせず一面だけ白壁とすることで上質な印象となる…
続きを読む
キッチンに立ち、正面は珪藻土の白壁に。床・壁・天井、四方を板張りとせず一面だけ白壁とすることで上質な印象となる。収納には間接照明を計画。ライティングで陰影を楽しむことができる。
-
リビングに据えた薪ストーブ。炉台は鉄板、炉壁は珪藻土塗でスタイリッシュな印象。スポットライトが壁面を照らし陰影…
続きを読む
リビングに据えた薪ストーブ。炉台は鉄板、炉壁は珪藻土塗でスタイリッシュな印象。スポットライトが壁面を照らし陰影が生まれる。
-
階段手摺はブラックのアイアン、笠木はナラ材。階段下に本棚を設け、落ち着きのある読書スペースとなった。キッチンか…
続きを読む
階段手摺はブラックのアイアン、笠木はナラ材。階段下に本棚を設け、落ち着きのある読書スペースとなった。キッチンから続く床材はタイル仕上げ。
-
2階のカウンタースペースから、正面の吹き抜け窓越しに北アルプスの山並みを楽しむ。
2階のカウンタースペースから、正面の吹き抜け窓越しに北アルプスの山並みを楽しむ。
-
寝室も壁で区切ることはせず、縦格子に。完成させない、フリーな空間もこだわりのひとつ。間接照明が照らす京壁の陰影…
続きを読む
寝室も壁で区切ることはせず、縦格子に。完成させない、フリーな空間もこだわりのひとつ。間接照明が照らす京壁の陰影が美しい。
この会社の他の建築実例を見る
-
-
-
【無料・ほぼ毎日開催】長野県への移住・オンライン相談
開催日
ほぼ毎日開催(火・水定休)ご予約時に希望日時をお伝えください。
この建築実例の詳細情報
|
商品名
|
工房信州の家
|
|
部材・設備
|
-
|
|
延床面積
|
159.24m2
(48.1坪)
|
|
敷地面積
|
480.27m2
(145.2坪)
|
|
工法
|
木造軸組(エアパス工法)
|
|
本体価格
|
-
|
|
竣工年月
|
2022年10月
|
この建築実例を建てた店舗情報
|
店舗名
|
軽井沢支店
|
|
住所
|
長野県北佐久郡軽井沢町大字長倉南ヶ丘647-4
|
|
問い合わせ
|
|
|
ホームページ
|
この会社のホームページへ
|
工房信州の家/フォレストコーポレーションのコンテンツ一覧