【3LDK・別荘・土間・薪ストーブ】最高の空間で非日常を楽しむ旧軽井沢の家
施主Kさんのこだわり
都心から近く家族が集える物件を軽井沢に、と3年間探してようやく出会った旧軽井沢の家。ゲストを出迎え、もてなす空間としてツーフロアに土間サロンを設けた。2階のインナーテラスサロンから見える新緑の森、木々の紅葉、真っ白な世界。四季を通して楽しめる景色はまさに非日常の世界。立地環境に加え、遊び心のあるデザインでありつつ、軽井沢らしい落ち着いた木のぬくもりを感じられる上質な質感がK様のお気に入りポイント。庭のデザインにもこだわり、良い物件に巡り合えたとご家族皆様大…
続きを読む
都心から近く家族が集える物件を軽井沢に、と3年間探してようやく出会った旧軽井沢の家。ゲストを出迎え、もてなす空間としてツーフロアに土間サロンを設けた。2階のインナーテラスサロンから見える新緑の森、木々の紅葉、真っ白な世界。四季を通して楽しめる景色はまさに非日常の世界。立地環境に加え、遊び心のあるデザインでありつつ、軽井沢らしい落ち着いた木のぬくもりを感じられる上質な質感がK様のお気に入りポイント。庭のデザインにもこだわり、良い物件に巡り合えたとご家族皆様大満足。一番心配だった信州軽井沢の寒さと湿気も、エアパスソーラー工法の効果が抜群で「とても良いね!」と満足されている。
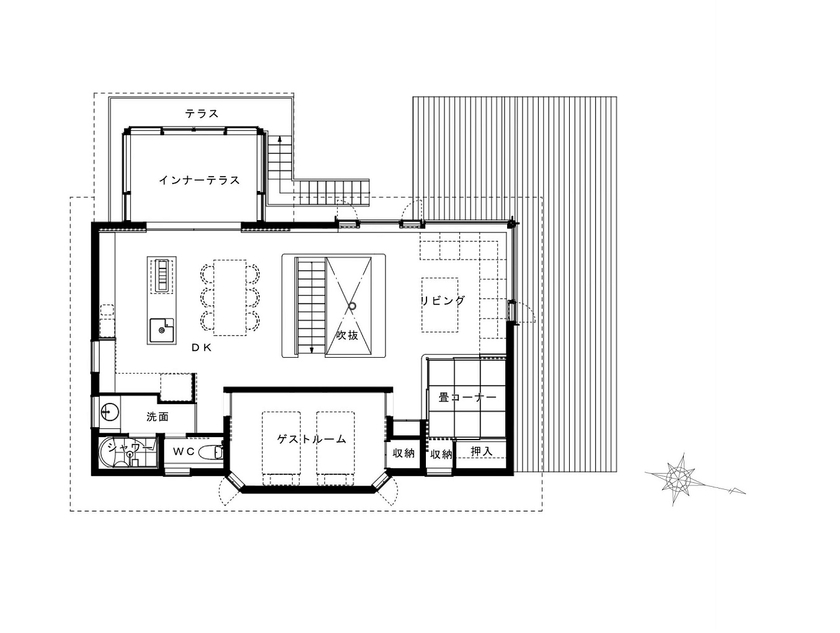
間取り図(3LDK+土間サロン)
内外観ギャラリー
-
片流れとガレージ屋根の水平ラインを組み合わせたシンプルなファサード。ダーク色の塗り壁を全面に施し、落ち着きのあ…
続きを読む
片流れとガレージ屋根の水平ラインを組み合わせたシンプルなファサード。ダーク色の塗り壁を全面に施し、落ち着きのある風合いと独特な質感、天然木の美しいコントラストが目を引く。2階リビングに設けた大きなコーナー出窓が外観のアクセントに。
-
2台分のインナーガレージ。デザインされたアプローチと庭がゲストを迎える。
2台分のインナーガレージ。デザインされたアプローチと庭がゲストを迎える。
-
温かな灯りがいつでもオーナーを出迎えてくれる。塗り壁と板張りによる陰影が昼間とは違った情景を演出し、旧軽井沢の…
続きを読む
温かな灯りがいつでもオーナーを出迎えてくれる。塗り壁と板張りによる陰影が昼間とは違った情景を演出し、旧軽井沢の邸宅の存在感を一層惹き立てている。
-
ゲストを迎える玄関兼土間サロン。会話が弾み、ついつい長居をしてしまうそう。
ゲストを迎える玄関兼土間サロン。会話が弾み、ついつい長居をしてしまうそう。
-
薪ストーブを囲みながら過ごす贅沢な時間。ここは時にギャラリーにもなる。
薪ストーブを囲みながら過ごす贅沢な時間。ここは時にギャラリーにもなる。
-
2階に配置したリビング。景色を切り取った大開口のコーナー窓の先には美しい自然が広がる。
2階に配置したリビング。景色を切り取った大開口のコーナー窓の先には美しい自然が広がる。
-
上質なくつろぎの空間。美しいアール天井。
上質なくつろぎの空間。美しいアール天井。
-
2階のテラスサロンからは、四季折々の森の美しさを眺める。
2階のテラスサロンからは、四季折々の森の美しさを眺める。
-
パーティーキッチンからテラスサロンへ。ゲストと一緒に食を楽しむ。
パーティーキッチンからテラスサロンへ。ゲストと一緒に食を楽しむ。
-
自然素材のぬくもりを感じるベッドルーム。ウォークインクローゼット、ワークスペースを設け、書斎にも隣接する。
自然素材のぬくもりを感じるベッドルーム。ウォークインクローゼット、ワークスペースを設け、書斎にも隣接する。
この会社の他の建築実例を見る
-
-
-
【無料・ほぼ毎日開催】長野県への移住・オンライン相談
開催日
ほぼ毎日開催(火・水定休)ご予約時に希望日時をお伝えください。
この建築実例の詳細情報
|
商品名
|
響 kyo
|
|
部材・設備
|
全館床暖房/薪ストーブ
|
|
商品名
|
響 kyo
|
|
部材・設備
|
全館床暖房/薪ストーブ
|
|
延床面積
|
189.98m2
(57.4坪)
|
|
敷地面積
|
430.36m2
(130.1坪)
|
|
工法
|
木造軸組(エアパスソーラー工法)
|
|
本体価格
|
-
|
|
竣工年月
|
2021年11月
|
この建築実例を建てた店舗情報
|
店舗名
|
軽井沢支店
|
|
住所
|
長野県北佐久郡軽井沢町大字長倉南ヶ丘647-4
|
|
問い合わせ
|
|
|
ホームページ
|
この会社のホームページへ
|
工房信州の家/フォレストコーポレーションのコンテンツ一覧