工房信州の家/フォレストコーポレーション

工房信州の家/フォレストコーポレーション

長野県産の天然木をふんだんに使った、「信州を楽しむ住まい」
お気に入りに追加する
長野県北佐久郡軽井沢町  Yさん
【3LDK・別荘・土間・薪ストーブ】美しい片流れ屋根の家
工房信州の家/フォレストコーポレーション 【3LDK・別荘・土間・薪ストーブ】美しい片流れ屋根の家の建築実例画像1
  • 本体価格
    -
  • 延床面積
    149.04m2 (45.0坪)
    敷地面積
    340.86m2 (103.1坪)
    家族構成
    夫婦+子ども2人
  • 竣工年月
    2022年2月
    工法
    木造軸組(エアパスソーラー工法)
この会社をもっと知りたくなったら
無料でお届け!まずはカタログ請求

施主Yさんのこだわり

軽井沢の自然と調和する美しい片流れ屋根の家

「子どもには自然豊かな環境の中でのびのびと成長して欲しい」との想いで移住したY様。次に住む家には土間が欲しいと思っており、当社の土間サロンのある家に興味を持ったのがきっかけ。実際に家を見てみると、土間サロンの良さはもちろんのこと、天井や壁、構造材にも自然素材を使いながらも和のテイストを抑えた絶妙なモダン空間に感銘を受け、「こんな家に住めたら!」と素直に思ったという。建築場所は、別荘地の雰囲気が感じられる借宿エリア。ゆるやかで美しい片流れ屋根と下屋のラインが… 続きを読む

「子どもには自然豊かな環境の中でのびのびと成長して欲しい」との想いで移住したY様。次に住む家には土間が欲しいと思っており、当社の土間サロンのある家に興味を持ったのがきっかけ。実際に家を見てみると、土間サロンの良さはもちろんのこと、天井や壁、構造材にも自然素材を使いながらも和のテイストを抑えた絶妙なモダン空間に感銘を受け、「こんな家に住めたら!」と素直に思ったという。建築場所は、別荘地の雰囲気が感じられる借宿エリア。ゆるやかで美しい片流れ屋根と下屋のラインが印象的なデザインの外観とした。ナチュラルテイストでまとめた内観は、天然木の木目の美しさを最大限に魅せる縦格子を要所に採用。また間接照明を使い、素材の質感と陰影の美しさをデザインした。キッチンに立つと、家全体や庭で遊ぶ子どもにもちゃんと目が届き、料理をしながらコミュニケーションがとれる理想的な空間となっている。

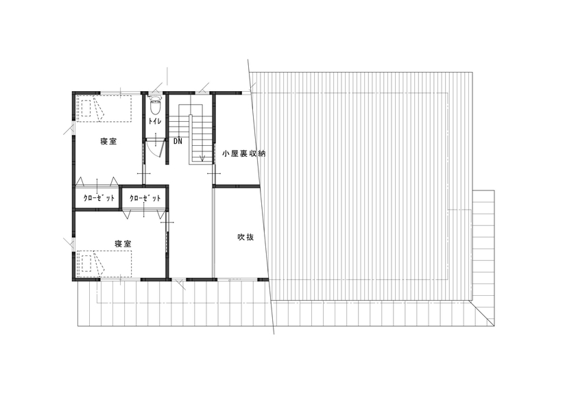
間取り図(3LDK+土間サロン)

1階
工房信州の家/フォレストコーポレーション 【3LDK・別荘・土間・薪ストーブ】美しい片流れ屋根の家の間取り図(3LDK+土間サロン)1階
2階
工房信州の家/フォレストコーポレーション 【3LDK・別荘・土間・薪ストーブ】美しい片流れ屋根の家の間取り図(3LDK+土間サロン)2階
この会社をもっと知りたくなったら
無料でお届け!まずはカタログ請求

内外観ギャラリー

この会社をもっと知りたくなったら
無料でお届け!まずはカタログ請求

この会社の他の建築実例を見る

この建築実例が気になった方へおすすめ

この建築実例の詳細情報

この建築実例を建てた店舗情報

店舗名 軽井沢支店
住所 長野県北佐久郡軽井沢町大字長倉南ヶ丘647-4
問い合わせ
0120-78-2333
  • ※営業時間内の対応となります。

  • ※お問い合わせの際は「SUUMO(スーモ)を見て」とお伝え下さい。

ホームページ この会社のホームページへ

工房信州の家/フォレストコーポレーションのコンテンツ一覧

お問い合わせ

カタログをもらう
総合カタログ
工房信州の家/フォレストコーポレーションのカタログ(工房信州の家カタログ【展示場案内】)
工房信州の家カタログ【展示場案内】
問合コード:1345830001
イベントに参加する
お問い合わせ先
0120-78-2333
  • ※営業時間内の対応となります。

  • ※お問い合わせの際は「SUUMO(スーモ)を見て」とお伝え下さい。

軽井沢支店
  • 長野県北佐久郡軽井沢町大字長倉南ヶ丘647-4

  • 定休日:火・水

この会社のホームページへ

この会社が気になったら

カタログをもらう
総合カタログ
工房信州の家/フォレストコーポレーションのカタログ(工房信州の家カタログ【展示場案内】)
工房信州の家カタログ【展示場案内】
問合コード:1345830001
イベントに参加する

関連キーワード

この建築実例のその他の特徴
ページトップへ戻る