アサヒアレックス

アサヒアレックス

スタイルのある美しいデザイン×魔法瓶のような構造で、家中どこでもくつろげる住まい
お気に入りに追加する
宮城県仙台市  Mさん
【35.9坪|3LDK】屋久島杉の映えるアメリカンヴィンテージな住まい
アサヒアレックス 【35.9坪|3LDK】屋久島杉の映えるアメリカンヴィンテージな住まいの建築実例画像1
  • 本体価格
    -
  • 延床面積
    118.82m2 (35.9坪)
    敷地面積
    178.71m2 (54.0坪)
    家族構成
    -
  • 竣工年月
    2021年6月
    工法
    木造軸組
この会社をもっと知りたくなったら
無料でお届け!まずはカタログ請求

施主Mさんのこだわり

無骨な味わいを楽しむ住空間。

アメリカンヴィンテージの住まいに憧れていたので、全体的に素材感を活かしながら落ち着きのあるトーンでまとめて頂きました。天井の羽目板や吹抜けはお気に入りです。リビングの大きな掃き出し窓をあけるとウッドデッキがLDKとつながり、BBQや子供がプールで遊んだりと、アウトドアリビングとして楽しめています。

アメリカンヴィンテージの住まいに憧れていたので、全体的に素材感を活かしながら落ち着きのあるトーンでまとめて頂きました。天井の羽目板や吹抜けはお気に入りです。リビングの大きな掃き出し窓をあけるとウッドデッキがLDKとつながり、BBQや子供がプールで遊んだりと、アウトドアリビングとして楽しめています。

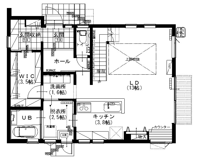
間取り図(3LDK+収納)

1階
アサヒアレックス 【35.9坪|3LDK】屋久島杉の映えるアメリカンヴィンテージな住まいの間取り図(3LDK+収納)1階
2階
アサヒアレックス 【35.9坪|3LDK】屋久島杉の映えるアメリカンヴィンテージな住まいの間取り図(3LDK+収納)2階
この会社をもっと知りたくなったら
無料でお届け!まずはカタログ請求

内外観ギャラリー

この会社をもっと知りたくなったら
無料でお届け!まずはカタログ請求

この会社の他の建築実例を見る

この建築実例が気になった方へおすすめ

  • この建築実例のカタログをもらう

    アサヒアレックスのカタログ画像
    総合カタログ
    【施工例集】DESIGN WORKS
    ひとりひとりのライフスタイルが溢れる家づくりのヒントがいっぱいです
  • イベントに参加する

    アサヒアレックスのイベント画像
    OPEN HOUSE ■若林区木ノ下 完成見学会 ~街なかでも陽だまりのある暮らし~
    • 完成見学会
    • 入居者宅見学会
    開催日
    2025/12/2(火)~2026/1/12(月)
    開催場所
    お問合せください

この建築実例の詳細情報

この建築実例を建てた店舗情報

住所 宮城県仙台市太白区長町南4-11-18 2F
問い合わせ
022-393-6438
  • ※営業時間内の対応となります。

  • ※お問い合わせの際は「SUUMO(スーモ)を見て」とお伝え下さい。

ホームページ この会社のホームページへ

アサヒアレックスのコンテンツ一覧

お問い合わせ

カタログをもらう
総合カタログ
アサヒアレックスのカタログ(【施工例集】DESIGN WORKS)
【施工例集】DESIGN WORKS
問合コード:1443500002
イベントに参加する
お問い合わせ先
022-393-6438
  • ※営業時間内の対応となります。

  • ※お問い合わせの際は「SUUMO(スーモ)を見て」とお伝え下さい。

  • 宮城県仙台市太白区長町南4-11-18 2F

  • 定休日:火・水曜日

この会社のホームページへ

この会社が気になったら

カタログをもらう
総合カタログ
アサヒアレックスのカタログ(【施工例集】DESIGN WORKS)
【施工例集】DESIGN WORKS
問合コード:1443500002
イベントに参加する

関連キーワード

この建築実例のその他の特徴
ページトップへ戻る