アサヒアレックス

アサヒアレックス

スタイルのある美しいデザイン×魔法瓶のような構造で、家中どこでもくつろげる住まい
お気に入りに追加する
宮城県仙台市若林区  Aさん
【2620万円】多彩な素材を活かした家。コントラストが美しく、リゾートで過ごすような安らぎを演出
アサヒアレックス 【2620万円】多彩な素材を活かした家。コントラストが美しく、リゾートで過ごすような安らぎを演出の建築実例画像1
  • 本体価格
    2,620万円
    68.6万円/坪
  • 延床面積
    126.28m2 (38.1坪)
    敷地面積
    187.77m2 (56.8坪)
    家族構成
    夫婦+子ども1人
  • 竣工年月
    2018年7月
    工法
    木造軸組
この会社をもっと知りたくなったら
無料でお届け!まずはカタログ請求

施主Aさんのこだわり

オーガニック素材でつくる上質な空間。時間ごと変化する表情が暮らしを豊かに

木や石、土、鉄など、多彩な本物の素材を使用した個性的な住まいが実現。リビング・ダイニングの内装は『家の中でリゾートの雰囲気を』というテーマでコーディネートしています。正面の壁材には天然木を貼り上げたウッドタイルを採用。天然木で立体感のある素材が木の幹のような背景となり、観葉植物や飾り棚のグリーンと相性良く自然のコントラストを生み出しています。無垢のフローリングにはアカシアを使用。足に触れた時のひんやりとした感触が少ないので、素足でもとても心地いいです。天井… 続きを読む

木や石、土、鉄など、多彩な本物の素材を使用した個性的な住まいが実現。リビング・ダイニングの内装は『家の中でリゾートの雰囲気を』というテーマでコーディネートしています。正面の壁材には天然木を貼り上げたウッドタイルを採用。天然木で立体感のある素材が木の幹のような背景となり、観葉植物や飾り棚のグリーンと相性良く自然のコントラストを生み出しています。無垢のフローリングにはアカシアを使用。足に触れた時のひんやりとした感触が少ないので、素足でもとても心地いいです。天井は武骨な防火ボードをむき出しにすることで少しアンティークな雰囲気に。真っ白な壁に、それぞれの素材が織りなすコントラストは非日常感を演出し、リゾートで過ごすような安らぎに包まれる空間になっています。

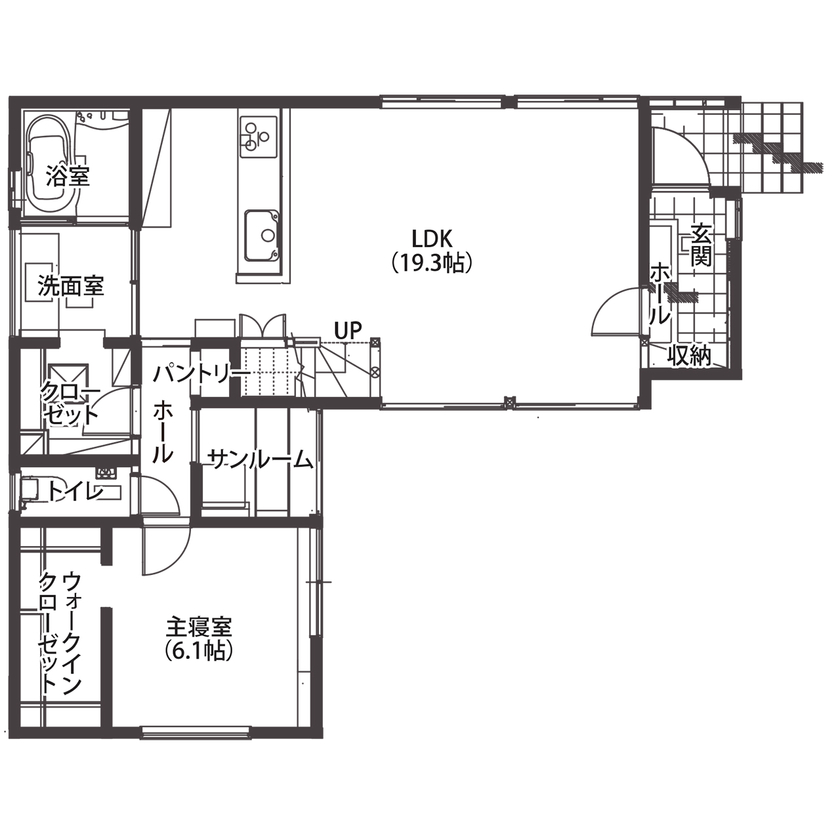
間取り図(3LDK)

1階
アサヒアレックス 【2620万円】多彩な素材を活かした家。コントラストが美しく、リゾートで過ごすような安らぎを演出の間取り図(3LDK)1階
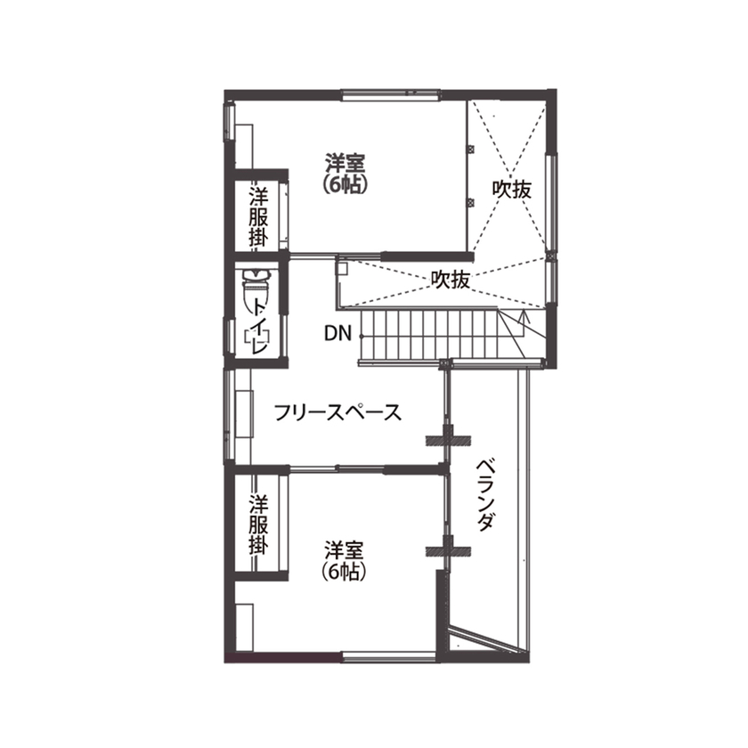
2階
アサヒアレックス 【2620万円】多彩な素材を活かした家。コントラストが美しく、リゾートで過ごすような安らぎを演出の間取り図(3LDK)2階
この会社をもっと知りたくなったら
無料でお届け!まずはカタログ請求

内外観ギャラリー

この会社をもっと知りたくなったら
無料でお届け!まずはカタログ請求

この会社の他の建築実例を見る

この建築実例が気になった方へおすすめ

  • この建築実例のカタログをもらう

    アサヒアレックスのカタログ画像
    総合カタログ
    【施工例集】DESIGN WORKS
    ひとりひとりのライフスタイルが溢れる家づくりのヒントがいっぱいです
  • イベントに参加する

    アサヒアレックスのイベント画像
    OPEN HOUSE ■若林区木ノ下 完成見学会 ~街なかでも陽だまりのある暮らし~
    • 完成見学会
    • 入居者宅見学会
    開催日
    2025/12/2(火)~2026/1/12(月)
    開催場所
    お問合せください

この建築実例の詳細情報

この建築実例を建てた店舗情報

住所 宮城県仙台市太白区長町南4-11-18 2F
問い合わせ
022-393-6438
  • ※営業時間内の対応となります。

  • ※お問い合わせの際は「SUUMO(スーモ)を見て」とお伝え下さい。

ホームページ この会社のホームページへ

アサヒアレックスのコンテンツ一覧

お問い合わせ

カタログをもらう
総合カタログ
アサヒアレックスのカタログ(【施工例集】DESIGN WORKS)
【施工例集】DESIGN WORKS
問合コード:1443500002
お問い合わせ先
022-393-6438
  • ※営業時間内の対応となります。

  • ※お問い合わせの際は「SUUMO(スーモ)を見て」とお伝え下さい。

  • 宮城県仙台市太白区長町南4-11-18 2F

  • 定休日:火・水曜日

この会社のホームページへ

この会社が気になったら

カタログをもらう
総合カタログ
アサヒアレックスのカタログ(【施工例集】DESIGN WORKS)
【施工例集】DESIGN WORKS
問合コード:1443500002

関連キーワード

この建築実例のその他の特徴
ページトップへ戻る