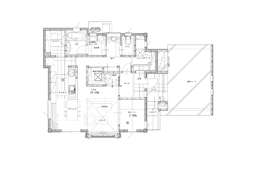
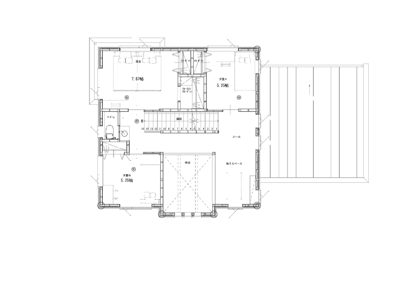
「カッコ良くて性能が良い家」が欲しいというお施主様のオーダーにお応えしました。まず何といっても特徴的なのは、雨の日も濡れずに玄関には入れるビルトインガレージ。まるで高級ホテルのロータリーのような空間には、濡れずに使える外物置や埋込みの宅配ボックスとポストもあってさらに快適です。室内も使いやすい回遊型の動線に、リビングには大きな吹き抜け、独立タイプの造作の洗面台、リビングの隣にはころんとくつろげる小上がりの畳コーナー、大き目のパントリー、お風呂も広々1.25… 続きを読む
「カッコ良くて性能が良い家」が欲しいというお施主様のオーダーにお応えしました。まず何といっても特徴的なのは、雨の日も濡れずに玄関には入れるビルトインガレージ。まるで高級ホテルのロータリーのような空間には、濡れずに使える外物置や埋込みの宅配ボックスとポストもあってさらに快適です。室内も使いやすい回遊型の動線に、リビングには大きな吹き抜け、独立タイプの造作の洗面台、リビングの隣にはころんとくつろげる小上がりの畳コーナー、大き目のパントリー、お風呂も広々1.25坪、2階にはランドリースペース、3階には収納力抜群のロフトなどなど…。さらに1階のフロアは無垢の床とタイル、天井には木製パネリング、壁にはウッドパネルやエコカラットなど素材にもこだわりました。そしてなんと断熱性能はUA値0.27!ご希望通りの「カッコ良くて性能も良い家」が完成しました。
ガレージには使いやすい外収納付き
ガレージには使いやすい外収納付き
吹き抜けと小上がりのある広いLDK
吹き抜けと小上がりのある広いLDK
吹き抜けのホールとランドリーコーナー
吹き抜けのホールとランドリーコーナー
3Fのロフトも広々!
3Fのロフトも広々!
夜の雰囲気のいい感じ
夜の雰囲気のいい感じ
| 商品名 | - |
| 部材・設備 | - |
| 商品名 | - |
| 部材・設備 | - |
| 延床面積 | 155.26m2 (46.9坪) |
| 敷地面積 | - |
| 工法 | 木造軸組 |
| 本体価格 | 3,800万円 |
| 竣工年月 | 2021/10 |
| 店舗名 | 菅原工務店 |
| 住所 | 宮城県大崎市古川旭1丁目10-24 |
| 問い合わせ | |
| ホームページ | この会社のホームページへ |
※営業時間内の対応となります。
※お問い合わせの際は「SUUMO(スーモ)を見て」とお伝え下さい。
宮城県大崎市古川旭1丁目10-24
定休日:水曜日、第1・3・5木曜日