大東住宅

大東住宅

国産材でつくる、人にも環境にも優しい地産地消の家づくり
お気に入りに追加する
宮城県仙台市宮城野区  Sさん
【3200万円/愛犬と暮らす/土地探しから/間取有】外断熱で実現した快適さ。小屋裏はご主人の秘密基地に!家
  • 本体価格
    3,200万円
    62.9万円/坪
  • 延床面積
    168.29m2 (50.9坪)
    敷地面積
    -
    家族構成
    夫婦(60代)
    竣工年月
    -
    工法
    木造軸組
  • 特徴
    耐震・免震・制震  |  2階建て  |  省エネ・創エネ・エコ(eco)  |  収納充実  |  家事がラク  |  高耐久  |  高気密・高断熱  |  …
この会社をもっと知りたくなったら
無料でお届け!まずはカタログ請求

施主Sさんのこだわり

ナチュラルオークのアクセントの外観と白の壁とのコントラストがかわいらしい

小さな子供も愛犬も、もちろん私たちも暑さと寒さに悩まずに快適に過ごせるお家に住めたらな!とお家造りを考え始めました。共働きでしたので特に家族と過ごせる時間は貴重で、常に家族を見守ることができる間取りにできたらいいなと考えていました。いろいろと展示場を見て回りましたが理想の土地もなかなかありませんし、どこのハウスメーカーさんにお願いしていいかわからなくなった時に大東住宅さんと知り合えて、実は友人も建てていたことがわかり、その友人宅は、いつ遊びに行っても快適な… 続きを読む

小さな子供も愛犬も、もちろん私たちも暑さと寒さに悩まずに快適に過ごせるお家に住めたらな!とお家造りを考え始めました。共働きでしたので特に家族と過ごせる時間は貴重で、常に家族を見守ることができる間取りにできたらいいなと考えていました。いろいろと展示場を見て回りましたが理想の土地もなかなかありませんし、どこのハウスメーカーさんにお願いしていいかわからなくなった時に大東住宅さんと知り合えて、実は友人も建てていたことがわかり、その友人宅は、いつ遊びに行っても快適な家のイメージしかなく「この工務店さんだ!」と直感で思いました。今までの習慣を変えることのない同町内に理想の土地も見つけていただき、キッチンを中心に和室で遊ぶ子供の姿も、階段下に設えたペットスペースもリビングで過ごす主人の姿も見渡すことができる間取りのイメージはしていたものの、より過ごしやすく快適に生活が出来る間取りを提案していただき外断熱ならではの小屋裏収納スペースも大きく作ることができました。住み始めてからも快適で家族みんなで安心して過ごすことができ収納もたくさんありますのでスッキリとした空間を楽に維持できます。小屋裏収納は主人の秘密基地になりました(笑)

間取り図(5K以上)

1階
大東住宅 【3200万円/愛犬と暮らす/土地探しから/間取有】外断熱で実現した快適さ。小屋裏はご主人の秘密基地に!家の間取り図(5K以上)1階

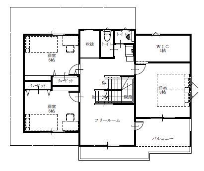
2階
大東住宅 【3200万円/愛犬と暮らす/土地探しから/間取有】外断熱で実現した快適さ。小屋裏はご主人の秘密基地に!家の間取り図(5K以上)2階

R階
大東住宅 【3200万円/愛犬と暮らす/土地探しから/間取有】外断熱で実現した快適さ。小屋裏はご主人の秘密基地に!家の間取り図(5K以上)R階

この会社をもっと知りたくなったら
無料でお届け!まずはカタログ請求

内外観ギャラリー

この会社をもっと知りたくなったら
無料でお届け!まずはカタログ請求

この会社の他の建築実例を見る

この建築実例が気になった方へおすすめ

この建築実例の詳細情報

この建築実例を建てた店舗情報

住所 宮城県仙台市宮城野区岩切三所南121-1
問い合わせ
0120-696-911
  • ※営業時間内の対応となります。

  • ※お問い合わせの際は「SUUMO(スーモ)を見て」とお伝え下さい。

ホームページ この会社のホームページへ

大東住宅のコンテンツ一覧

お問い合わせ

カタログをもらう
イベントに参加する
お問い合わせ先
0120-696-911
  • ※営業時間内の対応となります。

  • ※お問い合わせの際は「SUUMO(スーモ)を見て」とお伝え下さい。

  • 宮城県仙台市宮城野区岩切三所南121-1

  • 定休日:-

この会社のホームページへ
カタログ一覧
※1社で請求できるカタログは3冊までです。

この会社が気になったら

カタログをもらう
イベントに参加する

関連キーワード

この建築実例のその他の特徴
ページトップへ戻る