1. 不動産・住宅サイト SUUMO > 
  2. 注文住宅・ハウスメーカー > 
  3. 関西 > 
  4. 京都府 > 
  5. ルポハウス一級建築士事務所 > 
  6. 甲賀市宮の前モデルハウス|ルポハウス
ルポハウス一級建築士事務所
ルポハウス一級建築士事務所

設計士とつくるデザイナーズ住宅。草津・大津・水口・近江八幡・彦根のスタジオへ

お気に入りに
追加する
モデルハウス・イベント来場特典

甲賀市宮の前モデルハウス|ルポハウス

生活のそばにいつも自然の景色を引き寄せる開放的な設計。リビングにはウッドデッキ

テイスト
ナチュラル(自然素材など)、シンプルデザイン
ライフスタイル
収納充実・動線配慮で家事ラクな暮らし、子育て重視の暮らし
甲賀市宮の前モデルハウス|ルポハウス1
植栽を配したアプローチ。ウッドデッキまわりとポーチ上部は木張りに。塗壁も採用した表情豊かな外観
甲賀市宮の前モデルハウス|ルポハウス2
キッチンの横並びにダイニングをレイアウト。ぐるりと1周できる水まわりの動線により、家事ラクも実現
甲賀市宮の前モデルハウス|ルポハウス3
キッチンが我が家の中心的ポジション。料理をしながらリビングはもちろん、大きな窓越しに屋外まで見渡せる
甲賀市宮の前モデルハウス|ルポハウス4
カップボードを室内の雰囲気に合わせて造作。統一感あるナチュラルコーディネートによりスッキリ見える
甲賀市宮の前モデルハウス|ルポハウス5
家事の合間のちょっとしたスキマ時間に読書をしたり、ワークスペースとして重宝するカウンターを造作
甲賀市宮の前モデルハウス|ルポハウス6
道路や周囲からの程よい目隠し感により、人目を気にせずリラックス。ウッドデッキはアウトドアリビング感覚
甲賀市宮の前モデルハウス|ルポハウス7
広めの玄関は地窓を設けて足元を明るく。室内へは正面とウォークスルーのシューズクローゼットからの2動線
甲賀市宮の前モデルハウス|ルポハウス8
可愛らしい白いボウルを合わせた造作洗面台。座ってゆったりとメイクをしたり身だしなみが整えられる
甲賀市宮の前モデルハウス|ルポハウス9
バルコニーが付いた主寝室。室内は明るくナチュラルな雰囲気にまとめられ、日射しが部屋の奥まで行き届く
甲賀市宮の前モデルハウス|ルポハウス10
家事スペースに欠かせないサンルーム。浴室、脱衣室のそばにあり、ここで洗濯、手前には物干しスペースも
甲賀市宮の前モデルハウス|ルポハウス11
直接外へアクセスできるパントリー。奥はファミリークローゼットになっていて、ぐるりと水まわりを回遊可能
甲賀市宮の前モデルハウス|ルポハウス12
奥まり感をメリットに、長いアプローチから続くワクワク感が楽しい外構。アウトドアで過ごす家族時間も充実

ウッドデッキに出した軒が内と外との一体感を高め、より開放的で居心地のよいLDKに!

大きな窓からはたくさんの明るい日射し、ウッドデッキで日向ぼっこをしたり、子どもと遊んだり、内・外一体の開放感が存分に楽しめる設計。子育てファミリーにもぜひ参考にしてほしいモデルハウスだ。LDKは無垢フロアによるナチュラルな空間で、キッチンを中心に家族のコミュニケーションが広がる伸びやかな空間。リビングは勾配天井や間接照明を活かしたおしゃれな空間仕上げになっている。カウンターやカップボードを室内の雰囲気に合わせて造作するなど、シンプルでありながらセンスが光る。また、キッチンの隣にはパントリーを設け、料理の動線は短く。ファミリークローゼット、洗面室、浴室、脱衣室、サンルーム、物干しスペースまで集約し、回遊できる間取りに。玄関も正面とシューズクローゼット側の2方からホールへ出入りできる。2階は個室3部屋のレイアウト。家族で過ごす時間もプライベートも充実、家族が伸びやかに過ごし、成長できる間取りだ。

このモデルハウスの見どころ・特長

  • 甲賀市宮の前モデルハウス|ルポハウスの見どころ1
    敷地の中の外空間からたくさんの陽を呼び込み、ウッドデッキを通じて屋外へ直接アクセス。伸びやかなLDK

    大きな窓がある19.5帖のLDKを中心とした、家族がつながる居心地のよい住まい。昼間はウッドデッキを通じて屋外とのつながりや開放感、陽だまりの心地よさを満喫。夜は勾配天井に設けた柔らかい調光の間接照明が、団らんの時間をおしゃれに演出する。家族がともに過ごすひとときがぐんとステキになる提案が盛りだくさんだ。

  • 甲賀市宮の前モデルハウス|ルポハウスの見どころ2
    キッチンから広く見渡せる設計。水まわりは洗面、脱衣など動きに合わせた回遊動線をもち、家事を効率化

    造作カウンター&カップボードなどデザインだけでなく、家事ラク動線もきちんと考えて設計。キッチンからパントリーを通じてファミリークローゼット、洗面室、ホールへ。さらに洗面室、脱衣室、サンルーム、ホールへ。家事工程を見据えた動線で描かれた水回りに、技あり!「設計士とつくるデザイナーズ住宅」が実感できる。

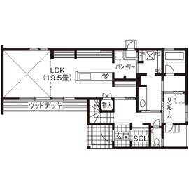
間取り図

  • 1階
    甲賀市宮の前モデルハウス|ルポハウスの間取り図(1階)
  • 2階
    甲賀市宮の前モデルハウス|ルポハウスの間取り図(2階)

モデルハウス詳細データ

所在地 滋賀県甲賀市水口町宮の前2-53
延床面積 112.62m2
間取り 3LDK
部材・設備 外壁:ガルバリウム鋼板、塗り壁、板張り/窓:YKKAP APW430/ユニットバス:LIXIL AX/システムキッチン:LIXIL ES/カップボード:造作家具/洗面化粧台:造作家具/トイレ:LIXIL/1階床:無垢フロア ナラ、2階床:突板フロア/TVボード造作
想定家族構成 夫婦+子ども2人
完成年月 2024年1月
予約締切 見学したい日の前日まで
電話番号
0120-960-110
  • ※営業時間内の対応となります。

  • ※お問い合わせの際は「SUUMO(スーモ)を見て」とお伝え下さい。

営業時間 10:00~20:00(最終受付18:00)
定休日 水曜日、第1・3・5木曜日
ホームページリンク この会社のホームページへ

2024年07月10日より掲載
問合コード:1521090003001

アクセス

滋賀県甲賀市水口町宮の前2-53
近江鉄道本線「水口石橋」駅徒歩5分

モデルハウス見学予約フォーム

※こちらのフォームに必要事項を入力し『「内容確認」へ進む』ボタンをクリックしてください。

  1. 【1】入力
  2. 【2】確認
  3. 【3】完了

必須は必須項目です。必ず入力ください。

お名前(全角)

必須

氏名

完了

ふりがな
※任意

ご連絡先

E-mailアドレス
(半角英数)

必須

※PCアドレス推奨

※確認のご連絡を差し上げる場合があります。

完了

電話番号
(半角数字)

必須

※確認のご連絡を差し上げる場合があります。

完了

ご希望の連絡時間帯
※任意

見学希望日

必須

定休日: 水曜日、第1・3・5木曜日

カレンダーから指定
  • 2025年 12月
  • 2026年 1月
  • 2026年 2月
  • 2026年 3月
  • 2026年 4月
  • 2026年 5月
  • 2026年 6月
  • 2026年 7月
  • 2026年 8月
  • 2026年 9月
  • 2026年 10月
  • 2026年 11月
30 1 2 3 4 5 6
7 8 9 10 11 12 13
14 15 16 17 18 19 20
21 22 23 24 25 26 27
28 29 30 31 1 2 3
28 29 30 31 1 2 3
4 5 6 7 8 9 10
11 12 13 14 15 16 17
18 19 20 21 22 23 24
25 26 27 28 29 30 31
1 2 3 4 5 6 7
8 9 10 11 12 13 14
15 16 17 18 19 20 21
22 23 24 25 26 27 28
1 2 3 4 5 6 7
8 9 10 11 12 13 14
15 16 17 18 19 20 21
22 23 24 25 26 27 28
29 30 31 1 2 3 4
29 30 31 1 2 3 4
5 6 7 8 9 10 11
12 13 14 15 16 17 18
19 20 21 22 23 24 25
26 27 28 29 30 1 2
26 27 28 29 30 1 2
3 4 5 6 7 8 9
10 11 12 13 14 15 16
17 18 19 20 21 22 23
24 25 26 27 28 29 30
31 1 2 3 4 5 6
31 1 2 3 4 5 6
7 8 9 10 11 12 13
14 15 16 17 18 19 20
21 22 23 24 25 26 27
28 29 30 1 2 3 4
28 29 30 1 2 3 4
5 6 7 8 9 10 11
12 13 14 15 16 17 18
19 20 21 22 23 24 25
26 27 28 29 30 31 1
26 27 28 29 30 31 1
2 3 4 5 6 7 8
9 10 11 12 13 14 15
16 17 18 19 20 21 22
23 24 25 26 27 28 29
30 31 1 2 3 4 5
30 31 1 2 3 4 5
6 7 8 9 10 11 12
13 14 15 16 17 18 19
20 21 22 23 24 25 26
27 28 29 30 1 2 3
27 28 29 30 1 2 3
4 5 6 7 8 9 10
11 12 13 14 15 16 17
18 19 20 21 22 23 24
25 26 27 28 29 30 31
1 2 3 4 5 6 7
8 9 10 11 12 13 14
15 16 17 18 19 20 21
22 23 24 25 26 27 28
29 30 1 2 3 4 5

完了

希望時間帯

必須

営業時間: 10:00~20:00(最終受付18:00)

完了

見学間近の予約のため、ご質問は直接お問い合わせ下さい。 お問い合わせ先:0120-960-110
※お問い合わせの際は「SUUMO(スーモ)注文住宅を見た」とお伝えになるとスムーズです。

SUUMOお役立ちメルマガ・アンケート
お役立ち情報の送付希望

※配信を希望しない場合は、「希望しない」にチェックを入れてください。

【ご注意】
1.ご予約いただきました内容に関して、施工会社の担当者よりご連絡させて頂く場合がございます。
集合場所、時間等に関してご質問がある場合は、恐れ入りますが直接お問い合わせください。
2.キャンセルや日程の変更があった場合、直接店舗へご連絡ください。
3.定休日・営業時間外のご予約は原則お受けできかねますので、予めご了承ください。

質問や建築のご予定など

※以下は必須の入力項目ではありませんが、ご入力いただくと今後の流れがスムーズに行えます。

現在のご住所

郵便番号
(半角数字)

ご住所
(全角)

※番地・建物名まで忘れずご記入ください

建築予定時期
建築予算(土地予算除く)
建築予定地

建築内容
年齢  

現在の状況






その他、ご要望があればご記入ください。

【ご注意】
1.ご予約いただきました内容に関して、施工会社の担当者よりご連絡させて頂く場合がございます。
集合場所、時間等に関してご質問がある場合は、恐れ入りますが直接お問い合わせください。
2.キャンセルや日程の変更があった場合、直接店舗へご連絡ください。
3.定休日・営業時間外のご予約は原則お受けできかねますので、予めご了承ください。
このモデルハウスと同じ所在地からハウスメーカー・工務店を探す
このモデルハウスと同じ所在地から展示場を探す

【モデルハウスの本体価格について】
掲載中のモデルハウスの中には一部参考本体価格の記載があるものがございます。価格は全て消費税相当金額を含みます。各社にお問い合わせください。また、モデルハウス情報の参考本体価格は施工当時のもので、現在の価格とは異なる場合があります。詳細は各社にお問い合わせください

お問い合わせ
  • お問い合わせ先
    0120-960-110
    • ※営業時間内の対応となります。

    • ※お問い合わせの際は「SUUMO(スーモ)を見て」とお伝え下さい。

    甲賀市宮の前モデルハウス|ルポハウス
    滋賀県甲賀市水口町宮の前2-53
    [定休日]水曜日、第1・3・5木曜日
カタログ一覧

ルポハウス一級建築士事務所のカタログ一覧です。無料で請求できます。1社で請求できるカタログ数は3件までです。

ページトップへ戻る