ジャストホーム

ジャストホーム

平屋も2階建ても、ローコストで快適に。熊本のセミオーダー注文住宅
お気に入りに追加する
熊本県熊本市西区  Mさん
【熊本市/2000万円台前半/間取り図】キャットステップや床暖房、日向ぼっこスポットなど猫も心地よい家
ジャストホーム 【熊本市/2000万円台前半/間取り図】キャットステップや床暖房、日向ぼっこスポットなど猫も心地よい家の建築実例画像1
  • 本体価格
    2,000万円2,499万円
    60.8万円75.9万円/坪
  • 延床面積
    108.87m2 (32.9坪)
    敷地面積
    261.13m2 (78.9坪)
    家族構成
    夫婦+猫2匹
  • 竣工年月
    2022年12月
    工法
    木造軸組
この会社をもっと知りたくなったら
無料でお届け!まずはカタログ請求

施主Mさんのこだわり

木のぬくもりあふれるLDK。玄関まわりの機能性やデザインにもこだわった

「夫婦も猫も、心地よく暮らせる家にしたい」という想いをカタチにしたM邸。落ち着いた色味のウォルナットを使ったLDKは19.3帖と広く、リラックス感あふれる空間に仕上がっている。猫が遊べるキャットステップをリビングの壁面全体に設置。このステップをつけるためにリビングを部分的に勾配天井にし、天井を高く取ったほどのこだわりよう。ステップの頂上には外の景色を眺められる窓をつけており、猫が外の様子を楽しめるようになっている。また、リビングの掃き出し窓から出入りできる… 続きを読む

「夫婦も猫も、心地よく暮らせる家にしたい」という想いをカタチにしたM邸。落ち着いた色味のウォルナットを使ったLDKは19.3帖と広く、リラックス感あふれる空間に仕上がっている。猫が遊べるキャットステップをリビングの壁面全体に設置。このステップをつけるためにリビングを部分的に勾配天井にし、天井を高く取ったほどのこだわりよう。ステップの頂上には外の景色を眺められる窓をつけており、猫が外の様子を楽しめるようになっている。また、リビングの掃き出し窓から出入りできるテラスは、猫の日向ぼっこスポット。猫の頭が通らない幅に施した木の格子は、脱走防止や周囲の視線を遮る役割を果たしている。ほかにも、猫のトイレを収納する専用スペースや室内を行き来できるトンネルといった設備仕様を叶えている。また、あえてガスを利用した床暖房を導入。温まりやすく、自然なぬくもりが猫にも人間にもやさしい。猫を中心に考えた家づくりだが、ゲスト用と家族用で使い分けができるシューズクロークのある2WAY玄関や、階段下のスペースを利用したおしゃれな独立型洗面といった夫婦の要望も実現。まさに、家族全員が満足する居心地のいいマイホームとなった。

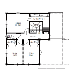
間取り図(3LDK)

1階
ジャストホーム 【熊本市/2000万円台前半/間取り図】キャットステップや床暖房、日向ぼっこスポットなど猫も心地よい家の間取り図(3LDK)1階
2階
ジャストホーム 【熊本市/2000万円台前半/間取り図】キャットステップや床暖房、日向ぼっこスポットなど猫も心地よい家の間取り図(3LDK)2階
この会社をもっと知りたくなったら
無料でお届け!まずはカタログ請求

内外観ギャラリー

この会社をもっと知りたくなったら
無料でお届け!まずはカタログ請求

この会社の他の建築実例を見る

この建築実例が気になった方へおすすめ

この建築実例の詳細情報

この建築実例を建てた店舗情報

住所 熊本県熊本市南区田迎町大字田井島726-1
問い合わせ
096-334-8410
  • ※営業時間内の対応となります。

  • ※お問い合わせの際は「SUUMO(スーモ)を見て」とお伝え下さい。

ホームページ この会社のホームページへ

ジャストホームのコンテンツ一覧

お問い合わせ

カタログをもらう
総合カタログ
ジャストホームのカタログ(ジャストホームコンセプトブック)
ジャストホームコンセプトブック
問合コード:1010480001
お問い合わせ先
096-334-8410
  • ※営業時間内の対応となります。

  • ※お問い合わせの際は「SUUMO(スーモ)を見て」とお伝え下さい。

  • 熊本県熊本市南区田迎町大字田井島726-1

  • 定休日:水曜日、夏季休暇・年末年始

この会社のホームページへ

この会社が気になったら

カタログをもらう
総合カタログ
ジャストホームのカタログ(ジャストホームコンセプトブック)
ジャストホームコンセプトブック
問合コード:1010480001

関連キーワード

この建築実例のその他の特徴
ページトップへ戻る