おいしいおうち

おいしいおうち

家族の人生の物語を紡ぐおうちを土地探しからトータルプロデュース
お気に入りに追加する
神奈川県海老名市  Eさん
【2500万円/高低差ある土地/間取り有】約25坪の敷地を有効活用。外との繋がりも楽しめる開放感ある3階建て
おいしいおうち 【2500万円/高低差ある土地/間取り有】約25坪の敷地を有効活用。外との繋がりも楽しめる開放感ある3階建ての建築実例画像1
  • 本体価格
    2,500万円
    71.9万円/坪
  • 延床面積
    115.01m2 (34.7坪)
    敷地面積
    85.37m2 (25.8坪)
    家族構成
    夫婦+子ども2人
  • 竣工年月
    2023年10月
    工法
    木造軸組
この会社をもっと知りたくなったら
無料でお届け!まずはカタログ請求

施主Eさんのこだわり

古家の解体から始まった家づくり。難しい土地条件を魅力に変える設計力が光る家

道路からの高低差があるうえ、再利用できない地下車庫の上に古い家が建っている土地。売り出された当初は、「ここにどんな家が建てられるんだろう?」となかなかイメージが湧かない土地だったからこそ、同社の手腕が存分に発揮されたのがこのE邸だ。地下車庫や家屋、既存擁壁の一部の解体工事からスタートした家づくり。「北側に道路があり、ほかの3方向も隣家との距離が近く外に開きにくい条件であるものの、外とのつながりを大切に設計しました」と担当者が語るように、巧みな設計によって明… 続きを読む

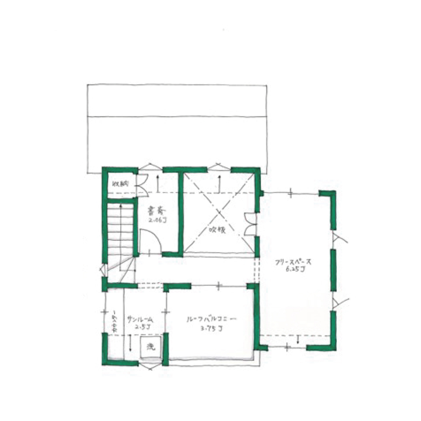
道路からの高低差があるうえ、再利用できない地下車庫の上に古い家が建っている土地。売り出された当初は、「ここにどんな家が建てられるんだろう?」となかなかイメージが湧かない土地だったからこそ、同社の手腕が存分に発揮されたのがこのE邸だ。地下車庫や家屋、既存擁壁の一部の解体工事からスタートした家づくり。「北側に道路があり、ほかの3方向も隣家との距離が近く外に開きにくい条件であるものの、外とのつながりを大切に設計しました」と担当者が語るように、巧みな設計によって明るく、開放的に暮らせる住まいが完成した。この住まいの特徴の一つが、地下車庫の上部のグレーチング。車庫の上部を居住空間にするのではなく、グレーチングを採用して上部を歩けるようにしたことで、ここがちょっとした庭のような空間に。さらに玄関ポーチや1階の寝室とつなげ、暮らしの中で気軽に屋外空間を楽しめるようになっている。LDKはたっぷりと光を取り込めるように2階に配置。吹抜けを採用し、3階の窓から吹抜けを通じて2階に光が落ちるように設計しているのもポイントだ。3階にはサブリビングとしても使えるフリースペースのほか、書斎、ランドリースペースを兼ねたサンルーム、ルーフバルコニーも配置し、家族の憩いの時間を楽しみながら、家事もしやすい設計になっている。

間取り図(3LDK+フリースペース)

1階
おいしいおうち 【2500万円/高低差ある土地/間取り有】約25坪の敷地を有効活用。外との繋がりも楽しめる開放感ある3階建ての間取り図(3LDK+フリースペース)1階
2階
おいしいおうち 【2500万円/高低差ある土地/間取り有】約25坪の敷地を有効活用。外との繋がりも楽しめる開放感ある3階建ての間取り図(3LDK+フリースペース)2階
3階
おいしいおうち 【2500万円/高低差ある土地/間取り有】約25坪の敷地を有効活用。外との繋がりも楽しめる開放感ある3階建ての間取り図(3LDK+フリースペース)3階
この会社をもっと知りたくなったら
無料でお届け!まずはカタログ請求

内外観ギャラリー

この会社をもっと知りたくなったら
無料でお届け!まずはカタログ請求

この建築実例の担当者

限られた敷地をどう有効活用するかをポイントに設計しました。家族の視線が交差するLDK、室内窓や吹抜けでつながる2階と3階など、家族のコミュニケーションがとりやすい間取りも魅力の一邸です。

おいしいおうちの担当者画像
代表取締役
山田昇平
得意分野
資金計画や融資相談、間取り考案、家づくりの全体計画、お客様との雑談

この会社の他の建築実例を見る

この建築実例が気になった方へおすすめ

  • この建築実例のカタログをもらう

    おいしいおうちのカタログ画像
    総合カタログ
    「おいしいおうち 家づくりメニュー」コンセプトカタログ
    私たちが考える「家づくりにとって大切なこと」を標準仕様も含めてご紹介しています。
  • モデルハウスを見学する

    おいしいおうちのモデルハウス画像1
    おいしいおうちのモデルハウス画像2
    • 延床面積
      124.62m237.6坪)
    • 所在地
      神奈川県大和市下鶴間142
    • 営業時間
      10:00~18:00(定休日:水曜日)
    • ナチュラル
    • シンプル
    • 家事ラク
    • 等身大
  • イベントに参加する

    おいしいおうちのイベント画像
    【新モデルハウス/建築現場見学会/大和市】3LDKが5LDK・二世帯住宅・店舗併用住宅に変化!間取りを変えられる、今も未来も暮らしにフィットする「kaeru-ie」をご提案
    • 構造見学会
    • モデルハウス見学会
    開催日
    随時
    開催場所
    神奈川県大和市下鶴間142-1

この建築実例の詳細情報

この建築実例を建てた店舗情報

住所 神奈川県横浜市都筑区北山田4-8-20-C2
問い合わせ
045-508-9445
  • ※営業時間内の対応となります。

  • ※お問い合わせの際は「SUUMO(スーモ)を見て」とお伝え下さい。

ホームページ この会社のホームページへ

おいしいおうちのコンテンツ一覧

お問い合わせ

カタログをもらう
総合カタログ
おいしいおうちのカタログ(「おいしいおうち 家づくりメニュー」コンセプトカタログ)
「おいしいおうち 家づくりメニュー」コンセプトカタログ
問合コード:1615610001
お問い合わせ先
045-508-9445
  • ※営業時間内の対応となります。

  • ※お問い合わせの際は「SUUMO(スーモ)を見て」とお伝え下さい。

  • 神奈川県横浜市都筑区北山田4-8-20-C2

  • 定休日:水曜日

この会社のホームページへ

この会社が気になったら

カタログをもらう
総合カタログ
おいしいおうちのカタログ(「おいしいおうち 家づくりメニュー」コンセプトカタログ)
「おいしいおうち 家づくりメニュー」コンセプトカタログ
問合コード:1615610001

関連キーワード

この建築実例のその他の特徴
ページトップへ戻る