ネクストイノベーション

ネクストイノベーション

【耐震等級3/最長60年保証/ZEH対応】の高性能住宅を手の届く価格で
お気に入りに追加する
愛知県岡崎市  Tさん
【愛知県/2600万円台/40坪台/吹抜けLDK/長期優良住宅/間取り有】夏はウッドデッキがオシャレなビアガーデン
ネクストイノベーション 【愛知県/2600万円台/40坪台/吹抜けLDK/長期優良住宅/間取り有】夏はウッドデッキがオシャレなビアガーデンの建築実例画像1
  • 本体価格
    2,500万円2,999万円
    47.5万円56.9万円/坪
  • 延床面積
    174.30m2 (52.7坪)
    敷地面積
    284.09m2 (85.9坪)
    家族構成
    夫婦30代+子ども2人
  • 竣工年月
    2016年6月
    工法
    木造軸組(オリジナルLVL工法)
この会社をもっと知りたくなったら
無料でお届け!まずはカタログ請求

施主Tさんのこだわり

外観デザインやプランは“平屋”風。明るさと開放感にもこだわって

できれば平屋にしたかったというTさん。そこで外観は軒を長くしたり、窓をシンメトリーに配置することで“平屋”に見えるデザインに。プランも1階で暮らしが完結するように【洗う→干す】が1階で済むように計画。寝室も1階とした。モデルハウスで一目ぼれしたダウンリビングのあるLDKは、開放感と明るさを重視。天井いっぱいまでのハイドア、家具を置くことで生まれる圧迫感をなくすために壁面収納をできるだけたくさん造ったことで、イメージ通りの空間に仕上がったそうだ。

できれば平屋にしたかったというTさん。そこで外観は軒を長くしたり、窓をシンメトリーに配置することで“平屋”に見えるデザインに。プランも1階で暮らしが完結するように【洗う→干す】が1階で済むように計画。寝室も1階とした。モデルハウスで一目ぼれしたダウンリビングのあるLDKは、開放感と明るさを重視。天井いっぱいまでのハイドア、家具を置くことで生まれる圧迫感をなくすために壁面収納をできるだけたくさん造ったことで、イメージ通りの空間に仕上がったそうだ。

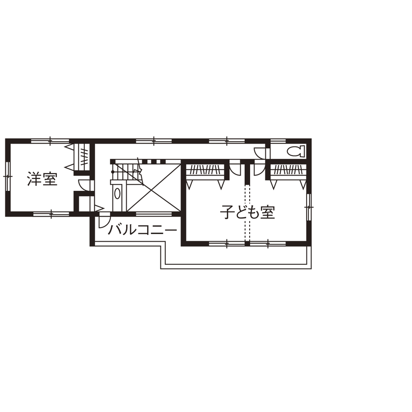
間取り図(4LDK)

1階
ネクストイノベーション 【愛知県/2600万円台/40坪台/吹抜けLDK/長期優良住宅/間取り有】夏はウッドデッキがオシャレなビアガーデンの間取り図(4LDK)1階
2階
ネクストイノベーション 【愛知県/2600万円台/40坪台/吹抜けLDK/長期優良住宅/間取り有】夏はウッドデッキがオシャレなビアガーデンの間取り図(4LDK)2階
この会社をもっと知りたくなったら
無料でお届け!まずはカタログ請求

内外観ギャラリー

この会社をもっと知りたくなったら
無料でお届け!まずはカタログ請求

この会社の他の建築実例を見る

この建築実例が気になった方へおすすめ

この建築実例の詳細情報

ネクストイノベーションのコンテンツ一覧

お問い合わせ

カタログをもらう
お問い合わせ先
050-5443-1111
  • ※営業時間内の対応となります。

  • ※お問い合わせの際は「SUUMO(スーモ)を見て」とお伝え下さい。

新宿本社
  • 東京都新宿区西新宿1丁目6番1号 新宿エルタワー2階

この会社のホームページへ
カタログ一覧
※1社で請求できるカタログは3冊までです。

この会社が気になったら

カタログをもらう

関連キーワード

ページトップへ戻る