夫人の実家を建て替える際、敷地を分割して建てることになったK氏邸。数社のハウスメーカーを訪問するも「毎日ワクワクを感じられる家」を思い描いていたKさんの心に響く提案には出会えなかったという。そんなとき、とある雑誌に掲載されていた「ミューズの家」の施工例を目にし、「楽しそう!」とひとめぼれ。自分たちが叶えたい住まいへの思いを共有したところ、設計担当の藤本さんから上がってきたのは、ほかでは出会えなかったユニークさと「ワクワク」に満ちたプラン。「自らの直感が正し… 続きを読む
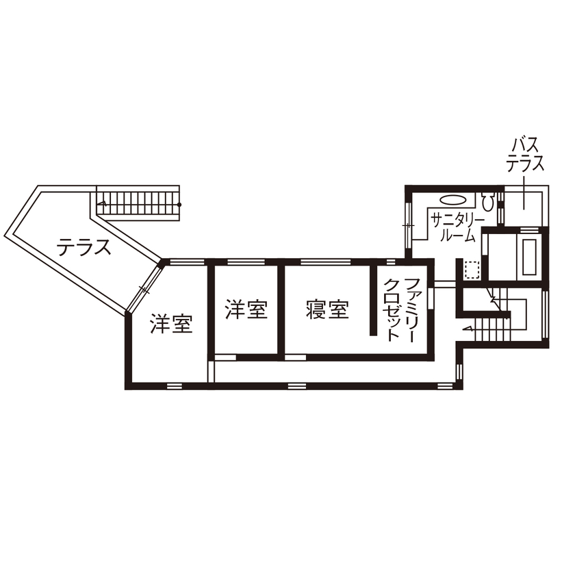
夫人の実家を建て替える際、敷地を分割して建てることになったK氏邸。数社のハウスメーカーを訪問するも「毎日ワクワクを感じられる家」を思い描いていたKさんの心に響く提案には出会えなかったという。そんなとき、とある雑誌に掲載されていた「ミューズの家」の施工例を目にし、「楽しそう!」とひとめぼれ。自分たちが叶えたい住まいへの思いを共有したところ、設計担当の藤本さんから上がってきたのは、ほかでは出会えなかったユニークさと「ワクワク」に満ちたプラン。「自らの直感が正しかったことと、嬉しい気持ちになりました」(Kさん)。完成したのは、そこで暮らすこと自体に「ワクワク」を感じられる遊び心にあふれているだけでなく、心身を思い切り開放できるようプライバシーに十分配慮された住まい。「人目を気にしなくてもいい南側(親世帯側)には開放感抜群の中庭デッキ+LDKを。反対に接道する側には『ナナメ』の形状を取り入れることで外からの視線を遮っています」とは設計の藤本さん。さらに2つの入口のどちらもユニークなワークスペース、一段下げたピットリビングや中庭デッキと2階をつなぐ外階段などの「遊び心」と相まって、Kさんが望んだとおりの「ワクワクが感じられる」住まいとなっている。
| 商品名 | - |
| 部材・設備 | 外装材/モルタル(塗り壁)・ヒノキ(板張り)、内装材/漆喰(壁、天井)※一部タイル張り、床材/ホワイトアッシュ、キッチン・キャビネット・ダイニングテーブル/オリジナル、洗面化粧台/オリジナル ほか |
| 商品名 | - |
| 部材・設備 | 外装材/モルタル(塗り壁)・ヒノキ(板張り)、内装材/漆喰(壁、天井)※一部タイル張り、床材/ホワイトアッシュ、キッチン・キャビネット・ダイニングテーブル/オリジナル、洗面化粧台/オリジナル ほか |
| 延床面積 | 130.49m2 (39.4坪) |
| 敷地面積 | 196.18m2 (59.3坪) |
| 工法 | その他(独自認定工法等)(SE構法) |
| 本体価格 | - |
| 竣工年月 | 2023年8月 |
| 店舗名 | 本社 |
| 住所 | 東京都小金井市本町4-13-17 |
| 問い合わせ | |
| ホームページ | この会社のホームページへ |
※営業時間内の対応となります。
※お問い合わせの際は「SUUMO(スーモ)を見て」とお伝え下さい。
東京都小金井市本町4-13-17