mito HOUSE(美都住販)

mito HOUSE(美都住販)

性能・間取り・デザイン・コスト。すべてが自分に・家族に“ちょうどいい”マイホーム
お気に入りに追加する
東京都町田市  Eさん
【町田|間取り有|2000万円台】家族が集う広いリビングがお気に入り。子どもの成長を健やかに育む住まい
mito HOUSE(美都住販) 【町田|間取り有|2000万円台】家族が集う広いリビングがお気に入り。子どもの成長を健やかに育む住まいの建築実例画像1
  • 本体価格
    2,000万円2,499万円
    61.5万円76.8万円/坪
  • 延床面積
    107.65m2 (32.5坪)
    敷地面積
    173.02m2 (52.3坪)
    家族構成
    夫婦+子ども2人
  • 竣工年月
    2022年6月
    工法
    木造軸組
この会社をもっと知りたくなったら
無料でお届け!まずはカタログ請求

施主Eさんのこだわり

家族みんなが過ごしやすい動線設計や、衛生面にも配慮した間取りがポイント

家にいる時間が長くなったことや、お子さんの成長をきっかけに新居を計画されたEさんご家族。以前は手狭なアパートに住んでいたこと、ご実家が戸建てだったことから、「いつかは戸建て住宅に住みたい」と考えていたそう。「美都ハウスさんは地元での実績が多いという安心感が決め手になりました。アットホームな雰囲気で打ち合わせも毎回楽しくて」とEさん。完成した住まいのポイントは、ナチュラルな木目が優しげな雰囲気を演出する、家族が集う広々としたリビング。洗面脱衣室と浴室を2階に… 続きを読む

家にいる時間が長くなったことや、お子さんの成長をきっかけに新居を計画されたEさんご家族。以前は手狭なアパートに住んでいたこと、ご実家が戸建てだったことから、「いつかは戸建て住宅に住みたい」と考えていたそう。「美都ハウスさんは地元での実績が多いという安心感が決め手になりました。アットホームな雰囲気で打ち合わせも毎回楽しくて」とEさん。完成した住まいのポイントは、ナチュラルな木目が優しげな雰囲気を演出する、家族が集う広々としたリビング。洗面脱衣室と浴室を2階に配置することで、ゆとりのある広さのLDKを実現した。木目調の折り上げ天井と、ウッドデッキとつながる間口の広い窓がさらに開放感を高めている。回遊できるアイランドキッチンや、家事の合間に子どものお昼寝をさせたりと、何かと便利なキッチン横の小上がりの畳コーナーなど、家族のライフスタイルに寄り添った空間設計も魅力。2階にはお子さんの成長に合わせて間仕切ることができる可変性のある子ども部屋や、家族みんなで使えるファミリークローゼット、直接バルコニーに出入りができる洗面脱衣室をプランニング。家事動線を極力短縮し、毎日を快適に過ごすことができる間取りとなっている。また、玄関ホールに洗面台を設置し、リビングに入る前に手洗いができるようにしたりと、衛生面にもこだわった住まいとなっている。

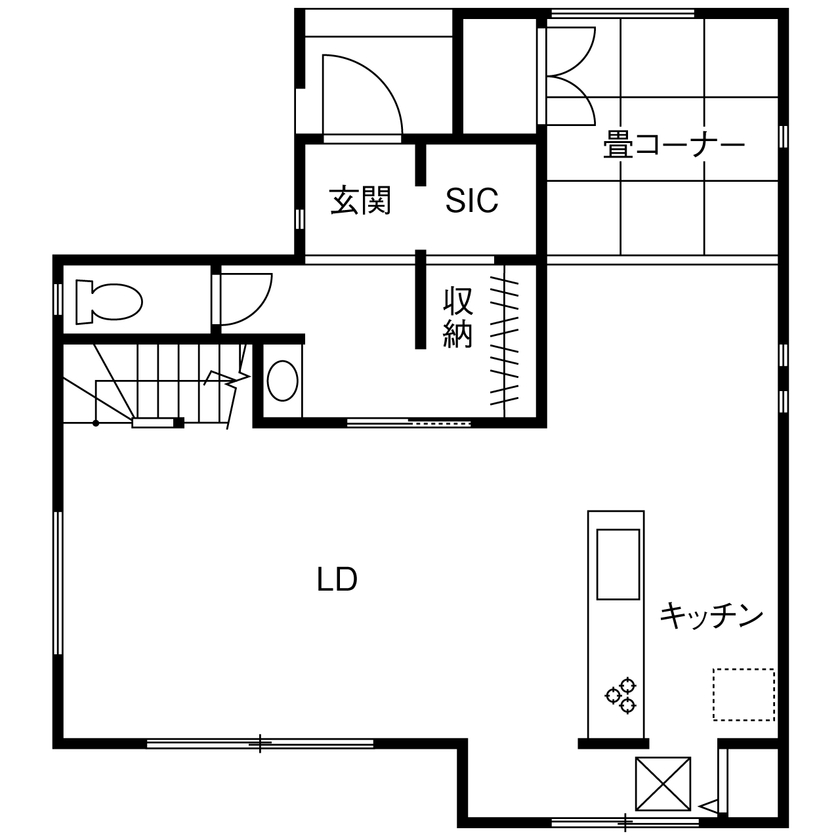
間取り図(2LDK)

1階
mito HOUSE(美都住販) 【町田|間取り有|2000万円台】家族が集う広いリビングがお気に入り。子どもの成長を健やかに育む住まいの間取り図(2LDK)1階
2階
mito HOUSE(美都住販) 【町田|間取り有|2000万円台】家族が集う広いリビングがお気に入り。子どもの成長を健やかに育む住まいの間取り図(2LDK)2階
この会社をもっと知りたくなったら
無料でお届け!まずはカタログ請求

内外観ギャラリー

この会社をもっと知りたくなったら
無料でお届け!まずはカタログ請求

この会社の他の建築実例を見る

この建築実例が気になった方へおすすめ

この建築実例の詳細情報

この建築実例を建てた店舗情報

店舗名 本社
住所 神奈川県相模原市中央区富士見3-15-7
問い合わせ
042-705-5505
  • ※営業時間内の対応となります。

  • ※お問い合わせの際は「SUUMO(スーモ)を見て」とお伝え下さい。

ホームページ この会社のホームページへ

mito HOUSE(美都住販)のコンテンツ一覧

お問い合わせ

カタログをもらう
総合カタログ
mito HOUSE(美都住販)のカタログ(デザインのある暮らし)
デザインのある暮らし
問合コード:5012760001
お問い合わせ先
042-705-5505
  • ※営業時間内の対応となります。

  • ※お問い合わせの際は「SUUMO(スーモ)を見て」とお伝え下さい。

本社
  • 神奈川県相模原市中央区富士見3-15-7

この会社のホームページへ

この会社が気になったら

カタログをもらう
総合カタログ
mito HOUSE(美都住販)のカタログ(デザインのある暮らし)
デザインのある暮らし
問合コード:5012760001

関連キーワード

この建築実例のその他の特徴
ページトップへ戻る