ライクスホーム

ライクスホーム

【モデルハウスへご来場を!】耐震 断熱 無垢にこだわった家 狭小地や土地探しも◎
お気に入りに追加する
埼玉県  Kさん
【2000万円/35.6坪/間取り/リビング階段/吹き抜け】薪ストーブを囲んで 3世代が団らんする終の棲家
ライクスホーム 【2000万円/35.6坪/間取り/リビング階段/吹き抜け】薪ストーブを囲んで 3世代が団らんする終の棲家  の建築実例画像1
  • 本体価格
    2,000万円
    56.1万円/坪
  • 延床面積
    117.99m2 (35.6坪)
    敷地面積
    456.37m2 (138.0坪)
    家族構成
    母+夫婦+子ども2人
  • 竣工年月
    2019年11月
    工法
    木造軸組
この会社をもっと知りたくなったら
無料でお届け!まずはカタログ請求

施主Kさんのこだわり

「薪ストーブ、無垢材、セルロースファイバーもまとめて予算内で叶いました」

「仕事の都合で引っ越しが多かったため、『実家が欲しい』と子どもたち。そろそろマイホームを手に入れようと、土地を購入しました」というKさん。もともとログハウスにあこがれがあったことから、無垢材はもちろん断熱材も木質繊維を原料とする「セルロースファイバー」や、薪ストーブを囲んでの暮らしに興味をお持ちだったという。「いろいろ調べて『融通を聞いてくれそうだな』と感じたのがライクスホームさん。川口にあるモデルハウスで話を聞き、希望が予算内で叶うこと、初回打合せでプラ… 続きを読む

「仕事の都合で引っ越しが多かったため、『実家が欲しい』と子どもたち。そろそろマイホームを手に入れようと、土地を購入しました」というKさん。もともとログハウスにあこがれがあったことから、無垢材はもちろん断熱材も木質繊維を原料とする「セルロースファイバー」や、薪ストーブを囲んでの暮らしに興味をお持ちだったという。「いろいろ調べて『融通を聞いてくれそうだな』と感じたのがライクスホームさん。川口にあるモデルハウスで話を聞き、希望が予算内で叶うこと、初回打合せでプランや見積りまで出てきたレスポンスのよさに魅力を感じました」。具体的なカタチになることで、イメージが湧き、「よし、家づくりをがんばろう!」という気持ちになれたそうだ。「プランを詰めていくなかでも、こちらが『うーん…ちょっと違うかな?』という感じになると『こんなのもありますよ』と別の角度から提案してくれる。アイデアの引き出しが豊富で、しかもその根拠も説明してくれるので、納得感が違うんです」。できた家は、まさにログハウスのような開放感と木の香り、間仕切りが少なくストレスを感じない動線が特徴だ。吹抜けの大空間で薪ストーブを囲み、ご家族で新生活を満喫されている。

間取り図(3LDK)

1階
ライクスホーム 【2000万円/35.6坪/間取り/リビング階段/吹き抜け】薪ストーブを囲んで 3世代が団らんする終の棲家  の間取り図(3LDK)1階
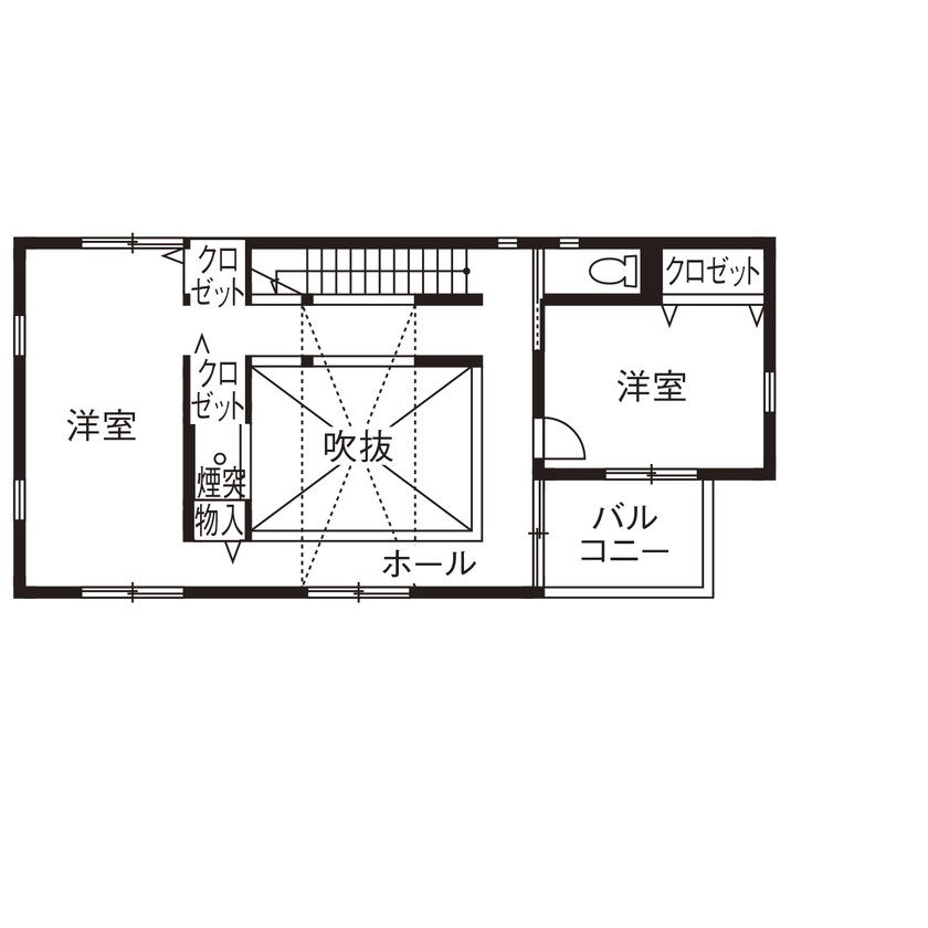
2階
ライクスホーム 【2000万円/35.6坪/間取り/リビング階段/吹き抜け】薪ストーブを囲んで 3世代が団らんする終の棲家  の間取り図(3LDK)2階
グルニエ
ライクスホーム 【2000万円/35.6坪/間取り/リビング階段/吹き抜け】薪ストーブを囲んで 3世代が団らんする終の棲家  の間取り図(3LDK)グルニエ
この会社をもっと知りたくなったら
無料でお届け!まずはカタログ請求

内外観ギャラリー

この会社をもっと知りたくなったら
無料でお届け!まずはカタログ請求

この建築実例の担当者

ライクスホームの担当者画像
ハウジングアドバイザー
八重樫清史
得意分野
当日にプラン見積りをお持ち帰り頂きたい方は当日に対応可能です。土地探しはお任せ下さい
実績
400棟

この会社の他の建築実例を見る

この建築実例が気になった方へおすすめ

この建築実例の詳細情報

この建築実例を建てた店舗情報

店舗名 体感モデルハウス展示場
住所 埼玉県川口市芝6306-3
問い合わせ
0120-914-017
  • ※営業時間内の対応となります。

  • ※お問い合わせの際は「SUUMO(スーモ)を見て」とお伝え下さい。

ホームページ この会社のホームページへ

ライクスホームのコンテンツ一覧

お問い合わせ

カタログをもらう
総合カタログ
ライクスホームのカタログ(FIX 標準仕様書 シンプル&スマートなかっこいい家)
FIX 標準仕様書 シンプル&スマートなかっこいい家
問合コード:1566260002
お問い合わせ先
0120-914-017
  • ※営業時間内の対応となります。

  • ※お問い合わせの際は「SUUMO(スーモ)を見て」とお伝え下さい。

体感モデルハウス展示場
  • 埼玉県川口市芝6306-3

この会社のホームページへ

この会社が気になったら

カタログをもらう
総合カタログ
ライクスホームのカタログ(FIX 標準仕様書 シンプル&スマートなかっこいい家)
FIX 標準仕様書 シンプル&スマートなかっこいい家
問合コード:1566260002

関連キーワード

この建築実例のその他の特徴
ページトップへ戻る