ライクスホーム

ライクスホーム

【モデルハウスへご来場を!】耐震 断熱 無垢にこだわった家 狭小地や土地探しも◎
お気に入りに追加する
埼玉県川口市  Yさん
【川口市/30坪】自然素材と無垢材のブランコ、ロフト、吹抜け、勾配天井、ウッドデッキ等こだわった家
ライクスホーム 【川口市/30坪】自然素材と無垢材のブランコ、ロフト、吹抜け、勾配天井、ウッドデッキ等こだわった家の建築実例画像1
  • 本体価格
    1,500万円
    48.7万円/坪
  • 延床面積
    102.00m2 (30.8坪)
    敷地面積
    166.00m2 (50.2坪)
    家族構成
    夫婦+子供3人
  • 竣工年月
    2016年 3月
    工法
    木造軸組
この会社をもっと知りたくなったら
無料でお届け!まずはカタログ請求

施主Yさんのこだわり

屋上、ロフト、抜き抜け、タイル、珪藻土、ブランコ、板張天井全て叶えたマイホーム

「僕自身マイホームは2回目になりますので、前回の失敗をふまえて今回はしっかり考え材料選びからこだわりました。こちらの監督の奥野木さんは3代続く工務店、建設一家に生まれ幼い頃から現場で育ったせいか、驚くほどの知識と提案と対応の早さで安心してマイホームを任せる事が出来ました。」とY様。今回特にこだわったのは、2階の造作の階段。無垢材を使い一枚一枚丁寧に施工し、木の質感を感じられるものに仕上げている。また、2階のバルコニーは1段下げて設計することで、その上にウッ… 続きを読む

「僕自身マイホームは2回目になりますので、前回の失敗をふまえて今回はしっかり考え材料選びからこだわりました。こちらの監督の奥野木さんは3代続く工務店、建設一家に生まれ幼い頃から現場で育ったせいか、驚くほどの知識と提案と対応の早さで安心してマイホームを任せる事が出来ました。」とY様。今回特にこだわったのは、2階の造作の階段。無垢材を使い一枚一枚丁寧に施工し、木の質感を感じられるものに仕上げている。また、2階のバルコニーは1段下げて設計することで、その上にウッドデッキを施工し、スペースをうまく活用する工夫も施されている。内壁は珪藻土があらかじめ埋め込んである壁紙を使い、床材は杉の無垢材を使用し限られた予算内で収まるよう工夫が施されている。さらに、16帖ある屋上はこれから芝を敷いたり、ウッドデッキを揃えることで、夏にはBBQを楽しめるように準備中である。「新築の今が完成ではなく、これから少しずつ手を加えて自分たちの住まいを完成させていきます」とY様。楽しみは広がっていく。

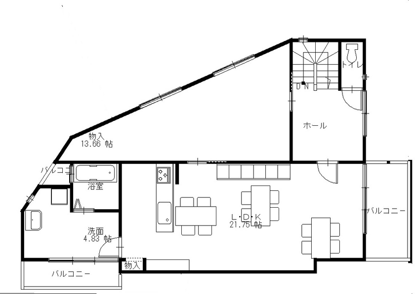
間取り図(3LDK)

1階
ライクスホーム 【川口市/30坪】自然素材と無垢材のブランコ、ロフト、吹抜け、勾配天井、ウッドデッキ等こだわった家の間取り図(3LDK)1階
2階
ライクスホーム 【川口市/30坪】自然素材と無垢材のブランコ、ロフト、吹抜け、勾配天井、ウッドデッキ等こだわった家の間取り図(3LDK)2階
3階
ライクスホーム 【川口市/30坪】自然素材と無垢材のブランコ、ロフト、吹抜け、勾配天井、ウッドデッキ等こだわった家の間取り図(3LDK)3階
この会社をもっと知りたくなったら
無料でお届け!まずはカタログ請求

内外観ギャラリー

この会社をもっと知りたくなったら
無料でお届け!まずはカタログ請求

この会社の他の建築実例を見る

この建築実例が気になった方へおすすめ

この建築実例の詳細情報

この建築実例を建てた店舗情報

店舗名 体感モデルハウス展示場
住所 埼玉県川口市芝6306-3
問い合わせ
0120-914-017
  • ※営業時間内の対応となります。

  • ※お問い合わせの際は「SUUMO(スーモ)を見て」とお伝え下さい。

ホームページ この会社のホームページへ

ライクスホームのコンテンツ一覧

お問い合わせ

カタログをもらう
総合カタログ
ライクスホームのカタログ(FIX 標準仕様書 シンプル&スマートなかっこいい家)
FIX 標準仕様書 シンプル&スマートなかっこいい家
問合コード:1566260002
お問い合わせ先
0120-914-017
  • ※営業時間内の対応となります。

  • ※お問い合わせの際は「SUUMO(スーモ)を見て」とお伝え下さい。

体感モデルハウス展示場
  • 埼玉県川口市芝6306-3

この会社のホームページへ

この会社が気になったら

カタログをもらう
総合カタログ
ライクスホームのカタログ(FIX 標準仕様書 シンプル&スマートなかっこいい家)
FIX 標準仕様書 シンプル&スマートなかっこいい家
問合コード:1566260002

関連キーワード

ページトップへ戻る