1. 不動産・住宅サイト SUUMO > 
  2. 注文住宅・ハウスメーカー > 
  3. 関東 > 
  4. 神奈川県 > 
  5. アオイ建設 一級建築士事務所 > 
  6. 【アオイ建設 東林間モデルハウス】 東林間駅徒歩9分 《駐車場・キッズスペースあり、送迎可能》
アオイ建設 一級建築士事務所
アオイ建設 一級建築士事務所

【お気軽に資料請求を】地域密着で50年・3000棟以上の実績。土地探しからサポート

お気に入りに
追加する
モデルハウス・イベント来場特典

【アオイ建設 東林間モデルハウス】 東林間駅徒歩9分 《駐車場・キッズスペースあり、送迎可能》

今家を建てるなら絶対叶えたい、真似したくなるアイディアに出会える!

テイスト
ナチュラル(自然素材など)、シンプルデザイン
ライフスタイル
収納充実・動線配慮で家事ラクな暮らし、子育て重視の暮らし
【アオイ建設 東林間モデルハウス】 東林間駅徒歩9分 《駐車場・キッズスペースあり、送迎可能》1
四角いフォルムが存在感を放つ外観。正面はほぼ窓がゼロ。だからこそ実現できる開放的プライベートな暮らし
【アオイ建設 東林間モデルハウス】 東林間駅徒歩9分 《駐車場・キッズスペースあり、送迎可能》2
デザイン性だけでなく家事ラクな間取りも参考になる
【アオイ建設 東林間モデルハウス】 東林間駅徒歩9分 《駐車場・キッズスペースあり、送迎可能》3
一画に設けた書斎はちょっとした仕事や趣味に使えるスペース。中庭から気持ちのいい日差しが届く
【アオイ建設 東林間モデルハウス】 東林間駅徒歩9分 《駐車場・キッズスペースあり、送迎可能》4
キッチン横のカウンターは子どもが勉強するスペースとして、また家族共通の家事スペースとしても活躍
【アオイ建設 東林間モデルハウス】 東林間駅徒歩9分 《駐車場・キッズスペースあり、送迎可能》5
おうちキャンプやBBQなど大人から子ども、ペットだって楽しめる。ご近所の目を気にせず楽しめるのが魅力
【アオイ建設 東林間モデルハウス】 東林間駅徒歩9分 《駐車場・キッズスペースあり、送迎可能》6
キッチン側からはご覧の開放感。玄関まで見渡せて子どもの帰宅も分かる
【アオイ建設 東林間モデルハウス】 東林間駅徒歩9分 《駐車場・キッズスペースあり、送迎可能》7
子ども部屋は将来間仕切りを入れて2部屋にすることもできるフレキシブルな空間
【アオイ建設 東林間モデルハウス】 東林間駅徒歩9分 《駐車場・キッズスペースあり、送迎可能》8
洗濯→干す→乾燥→片付けがここで完結。LDKと水回りをつなげる回遊動線で暮らしをスムーズに
【アオイ建設 東林間モデルハウス】 東林間駅徒歩9分 《駐車場・キッズスペースあり、送迎可能》9
2階の大きなホールはセカンドリビングとして活躍。独り趣味の時間を満喫したり、子ども遊び場にしたり
【アオイ建設 東林間モデルハウス】 東林間駅徒歩9分 《駐車場・キッズスペースあり、送迎可能》10
IoT対応のLDK。照明の点灯や消灯、玄関やシャッター雨戸の開閉など、話題の機能を体感できる

自由設計ってこんなに楽しい!を体感しよう。

完全自由設計でどんな住空間が叶うのか、ぜひ同社の新モデルハウスでご体感いただきたい。開放的な空間構成に回遊性のある動線など、「いつもの暮らしを便利に」「もしもの時にも安心」を両立させたこれからの時代に応える次世代型モデルハウスがNEWオープン。スタイリッシュな外観で、正面に窓がほぼないのに明るく開放的な空間、リビングから玄関まで見渡せて自然と家族が繋がる工夫、書斎やセカンドリビング、スカイバルコニーなど+αの空間など、家づくりの参考になるポイントがいっぱい。また、IoTに対応したモデルハウスなので実際に試してみるのもおすすめです。

このモデルハウスの見どころ・特長

  • 【アオイ建設 東林間モデルハウス】 東林間駅徒歩9分 《駐車場・キッズスペースあり、送迎可能》の見どころ1
    外観からは想像できない、明るく開放的な空間は必見

    プライバシーは保たれているのに、電気がいらないほど明るい室内。中庭×吹き抜け効果で光を感じる空間を叶えながらも、夏は涼しく冬は暖かい。そんな年中快適に暮らせる性能もぜひご体感ください。

  • 【アオイ建設 東林間モデルハウス】 東林間駅徒歩9分 《駐車場・キッズスペースあり、送迎可能》の見どころ2
    同社の設計力で叶えた便利な生活導線を体感しよう

    キッチンを中心にパントリー・洗面室・玄関・リビングとぐるっと回遊できる動線など、工夫溢れる空間づかいは必見。快適な広さを備えつつも、ひとつながりの設計でつながりのある空間の演出にも注目してほしい。

間取り図

  • 1階
    【アオイ建設 東林間モデルハウス】 東林間駅徒歩9分 《駐車場・キッズスペースあり、送迎可能》の間取り図(1階)
  • 2階
    【アオイ建設 東林間モデルハウス】 東林間駅徒歩9分 《駐車場・キッズスペースあり、送迎可能》の間取り図(2階)
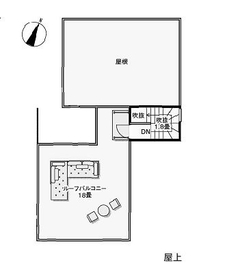
  • 屋上
    【アオイ建設 東林間モデルハウス】 東林間駅徒歩9分 《駐車場・キッズスペースあり、送迎可能》の間取り図(屋上)

モデルハウス詳細データ

所在地 神奈川県相模原市南区東林間3丁目6
延床面積 142.94m2
間取り 2LDK
想定家族構成 夫婦+子ども2人
完成年月 2023年5月
予約締切 見学したい日の前日まで
電話番号
042-745-9231
  • ※営業時間内の対応となります。

  • ※お問い合わせの際は「SUUMO(スーモ)を見て」とお伝え下さい。

営業時間 10:00~18:00
定休日 火・水曜日
ホームページリンク この会社のホームページへ

2023年08月09日より掲載
問合コード:0000050001002

アクセス

神奈川県相模原市南区東林間3丁目6
小田急江ノ島線「東林間」駅徒歩9分、駐車場完備

モデルハウス見学予約フォーム

※こちらのフォームに必要事項を入力し『「内容確認」へ進む』ボタンをクリックしてください。

  1. 【1】入力
  2. 【2】確認
  3. 【3】完了

必須は必須項目です。必ず入力ください。

お名前(全角)

必須

氏名

完了

ふりがな
※任意

ご連絡先

E-mailアドレス
(半角英数)

必須

※PCアドレス推奨

※確認のご連絡を差し上げる場合があります。

完了

電話番号
(半角数字)

必須

※確認のご連絡を差し上げる場合があります。

完了

ご希望の連絡時間帯
※任意

見学希望日

必須

定休日: 火・水曜日

カレンダーから指定
  • 2025年 12月
  • 2026年 1月
  • 2026年 2月
  • 2026年 3月
  • 2026年 4月
  • 2026年 5月
  • 2026年 6月
  • 2026年 7月
  • 2026年 8月
  • 2026年 9月
  • 2026年 10月
  • 2026年 11月
30 1 2 3 4 5 6
7 8 9 10 11 12 13
14 15 16 17 18 19 20
21 22 23 24 25 26 27
28 29 30 31 1 2 3
28 29 30 31 1 2 3
4 5 6 7 8 9 10
11 12 13 14 15 16 17
18 19 20 21 22 23 24
25 26 27 28 29 30 31
1 2 3 4 5 6 7
8 9 10 11 12 13 14
15 16 17 18 19 20 21
22 23 24 25 26 27 28
1 2 3 4 5 6 7
8 9 10 11 12 13 14
15 16 17 18 19 20 21
22 23 24 25 26 27 28
29 30 31 1 2 3 4
29 30 31 1 2 3 4
5 6 7 8 9 10 11
12 13 14 15 16 17 18
19 20 21 22 23 24 25
26 27 28 29 30 1 2
26 27 28 29 30 1 2
3 4 5 6 7 8 9
10 11 12 13 14 15 16
17 18 19 20 21 22 23
24 25 26 27 28 29 30
31 1 2 3 4 5 6
31 1 2 3 4 5 6
7 8 9 10 11 12 13
14 15 16 17 18 19 20
21 22 23 24 25 26 27
28 29 30 1 2 3 4
28 29 30 1 2 3 4
5 6 7 8 9 10 11
12 13 14 15 16 17 18
19 20 21 22 23 24 25
26 27 28 29 30 31 1
26 27 28 29 30 31 1
2 3 4 5 6 7 8
9 10 11 12 13 14 15
16 17 18 19 20 21 22
23 24 25 26 27 28 29
30 31 1 2 3 4 5
30 31 1 2 3 4 5
6 7 8 9 10 11 12
13 14 15 16 17 18 19
20 21 22 23 24 25 26
27 28 29 30 1 2 3
27 28 29 30 1 2 3
4 5 6 7 8 9 10
11 12 13 14 15 16 17
18 19 20 21 22 23 24
25 26 27 28 29 30 31
1 2 3 4 5 6 7
8 9 10 11 12 13 14
15 16 17 18 19 20 21
22 23 24 25 26 27 28
29 30 1 2 3 4 5

完了

希望時間帯

必須

営業時間: 10:00~18:00

完了

見学間近の予約のため、ご質問は直接お問い合わせ下さい。 お問い合わせ先:042-745-9231
※お問い合わせの際は「SUUMO(スーモ)注文住宅を見た」とお伝えになるとスムーズです。

SUUMOお役立ちメルマガ・アンケート
お役立ち情報の送付希望

※配信を希望しない場合は、「希望しない」にチェックを入れてください。

【ご注意】
1.ご予約いただきました内容に関して、施工会社の担当者よりご連絡させて頂く場合がございます。
集合場所、時間等に関してご質問がある場合は、恐れ入りますが直接お問い合わせください。
2.キャンセルや日程の変更があった場合、直接店舗へご連絡ください。
3.定休日・営業時間外のご予約は原則お受けできかねますので、予めご了承ください。

質問や建築のご予定など

※以下は必須の入力項目ではありませんが、ご入力いただくと今後の流れがスムーズに行えます。

現在のご住所

郵便番号
(半角数字)

ご住所
(全角)

※番地・建物名まで忘れずご記入ください

建築予定時期
建築予算(土地予算除く)
建築予定地

建築内容
年齢  

現在の状況






その他、ご要望があればご記入ください。

【ご注意】
1.ご予約いただきました内容に関して、施工会社の担当者よりご連絡させて頂く場合がございます。
集合場所、時間等に関してご質問がある場合は、恐れ入りますが直接お問い合わせください。
2.キャンセルや日程の変更があった場合、直接店舗へご連絡ください。
3.定休日・営業時間外のご予約は原則お受けできかねますので、予めご了承ください。
このモデルハウスと同じ所在地からハウスメーカー・工務店を探す
このモデルハウスと同じ所在地から展示場を探す

【モデルハウスの本体価格について】
掲載中のモデルハウスの中には一部参考本体価格の記載があるものがございます。価格は全て消費税相当金額を含みます。各社にお問い合わせください。また、モデルハウス情報の参考本体価格は施工当時のもので、現在の価格とは異なる場合があります。詳細は各社にお問い合わせください

お問い合わせ
  • お問い合わせ先
    042-745-9231
    • ※営業時間内の対応となります。

    • ※お問い合わせの際は「SUUMO(スーモ)を見て」とお伝え下さい。

    【アオイ建設 東林間モデルハウス】 東林間駅徒歩9分 《駐車場・キッズスペースあり、送迎可能》
    神奈川県相模原市南区東林間3丁目6
    [定休日]火・水曜日
カタログ一覧

アオイ建設 一級建築士事務所のカタログ一覧です。無料で請求できます。1社で請求できるカタログ数は3件までです。

ページトップへ戻る