旅行先のハワイで出会った、白い外壁にオレンジの屋根の家。その鮮やかであたたかみのある佇まいに惹かれ、「家を建てるならあんな雰囲気の家にしたい」と思い描いてきたAさん。愛犬“そらちゃん”と快適に暮らせる住まいも目指し、同社との家づくりがスタートした。外にドッグランとしても活用できる広々とした庭や、室内には将来のトリミングサロンを見据えた専用スペースも計画。家の中心であるLDKは、大勢の来客があってもゆったりと過ごせる広さを確保し、ハーフ吹抜の心地よい開放感と… 続きを読む
旅行先のハワイで出会った、白い外壁にオレンジの屋根の家。その鮮やかであたたかみのある佇まいに惹かれ、「家を建てるならあんな雰囲気の家にしたい」と思い描いてきたAさん。愛犬“そらちゃん”と快適に暮らせる住まいも目指し、同社との家づくりがスタートした。外にドッグランとしても活用できる広々とした庭や、室内には将来のトリミングサロンを見据えた専用スペースも計画。家の中心であるLDKは、大勢の来客があってもゆったりと過ごせる広さを確保し、ハーフ吹抜の心地よい開放感と、のんびり寛げる小上がりスペースもポイント。さらに、キッチンに洗面・脱衣室・ファミリークロゼットが隣接する家事ラク動線も、共働きのご夫婦にとって大きな魅力だ。花粉の時期も気兼ねなく洗濯物を干すことができるランドリールームも重宝しているそう。「お気に入りの場所は、広いリビング。ハーフ吹抜から日差しもたっぷり入るので、日中は照明をつけなくても明るく、子どもと愛犬と快適に過ごせます」と笑顔で語る夫人。家族のやさしい想いと愛犬への深い愛情が詰まった、理想の住まいが完成した。
1階は、愛犬と快適に過ごせる住まいをテーマに、広々とした空間設計がなされている。リビングはハーフ吹抜によって開放感があり、大勢の来客にも対応できるよう広さを確保。さらに3畳の小上がりのタタミコーナーを設けるなど、老後に備えて1階のみで生活が完結できる設計もポイントだ。キッチンは大きいサイズをセレクト… 続きを読む
1階は、愛犬と快適に過ごせる住まいをテーマに、広々とした空間設計がなされている。リビングはハーフ吹抜によって開放感があり、大勢の来客にも対応できるよう広さを確保。さらに3畳の小上がりのタタミコーナーを設けるなど、老後に備えて1階のみで生活が完結できる設計もポイントだ。キッチンは大きいサイズをセレクトし、作業スペースも充実。キッチン背面には収納を充実させ、物を外に出さない工夫もされている。水まわりは浴室・脱衣所・洗面室・ファミリークロゼットを一か所にまとめ、キッチンと直接つながる動線設計に。室内干しができるランドリールームも設置されており、花粉の時期も安心して洗濯ができる。さらに、将来トリミングサロンとしても展開できる専用のお部屋も計画している。
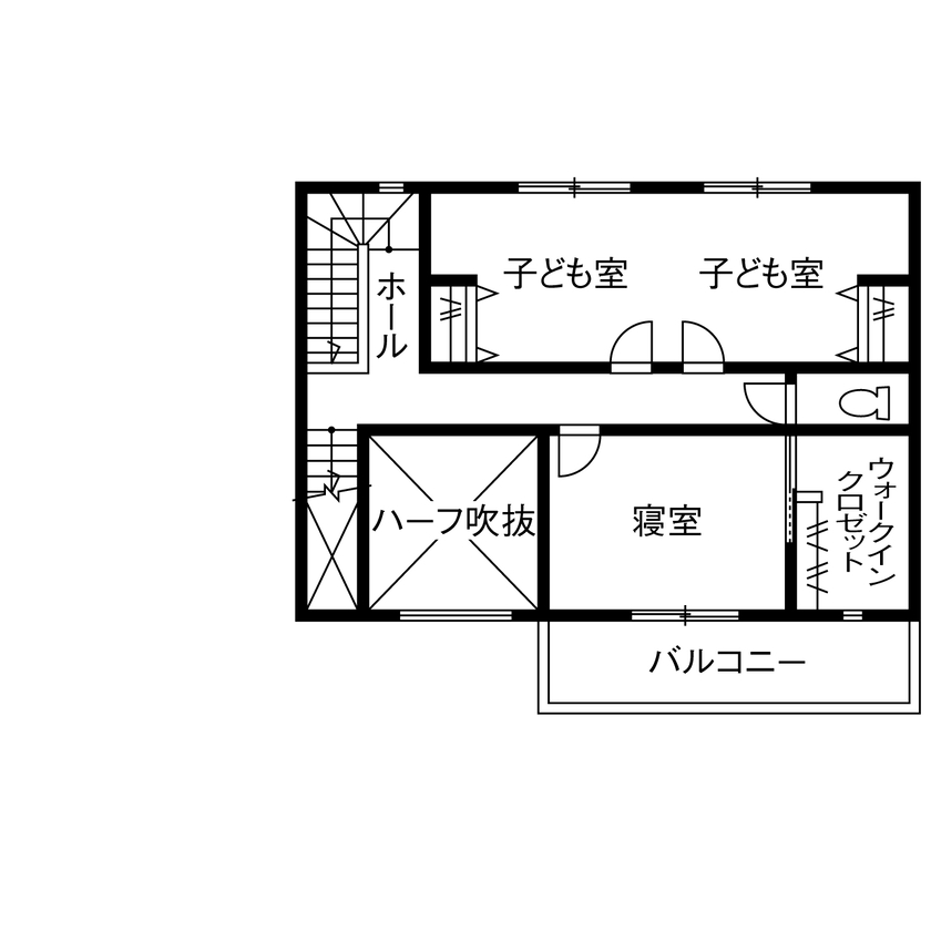
2階には、寝室、子ども室を配置。寝室には大容量のウォークインクロゼットを計画し、子ども室は将来的に仕切れる設計となっており家族構成の変化にも対応。
2階には、寝室、子ども室を配置。寝室には大容量のウォークインクロゼットを計画し、子ども室は将来的に仕切れる設計となっており家族構成の変化にも対応。
ハーフ吹抜の上部空間には、小屋裏を活用したAさんの趣味の空間を。1面の壁にはスクリーンになる壁紙を採用し、シアタースペースとしても使えるように。
ハーフ吹抜の上部空間には、小屋裏を活用したAさんの趣味の空間を。1面の壁にはスクリーンになる壁紙を採用し、シアタースペースとしても使えるように。
元々は別の会社を検討していたというAさん。しかしある日、SNSで目にした「ペットと暮らす家」という広告が、住まいづくりへの視点を大きく変えるきっかけになったという。大切な家族である愛犬との暮らしにもっと目を向けたいと感じ、自分たちの希望に寄り添ってくれる会社を改めて探し始め、同社にコンタクト。「広い庭や専門的なトリミングルームなど、愛犬目線の提案に強く惹かれました。家族はもちろん、愛犬と快適に暮らせる納得の住まいが完成しました」とAさん。
元々は別の会社を検討していたというAさん。しかしある日、SNSで目にした「ペットと暮らす家」という広告が、住まいづくりへの視点を大きく変えるきっかけになったという。大切な家族である愛犬との暮らしにもっと目を向けたいと感じ、自分たちの希望に寄り添ってくれる会社を改めて探し始め、同社にコンタクト。「広い庭や専門的なトリミングルームなど、愛犬目線の提案に強く惹かれました。家族はもちろん、愛犬と快適に暮らせる納得の住まいが完成しました」とAさん。
| 商品名 | - |
| 部材・設備 | - |
| 商品名 | - |
| 部材・設備 | - |
| 延床面積 | 125.03m2 (37.8坪) |
| 敷地面積 | 450.33m2 (136.2坪) |
| 工法 | 木造軸組 |
| 本体価格 | 3,000万円~3,499万円 |
| 竣工年月 | 2024年7月 |
| 店舗名 | 栃木支社 |
| 住所 | 栃木県宇都宮市駅前通り1-4-6 トナリエ宇都宮5階 |
| 問い合わせ | |
| ホームページ | この会社のホームページへ |
※営業時間内の対応となります。
※お問い合わせの際は「SUUMO(スーモ)を見て」とお伝え下さい。
鹿児島県鹿児島市与次郎1丁目9-38 南日本ハウジングプラザ エコスクエアII
定休日:毎週水曜日
家族や友人とホームパーティなどでもゆったりと過ごせる広さを確保したリビング。一角にはゴロゴロ寛げる小上がりのタタミコーナーも設置。飾り棚もあるので、五月人形など季節によって変えて楽しめる
ハワイ旅行で見た建物を参考に、白を基調とした外壁とオレンジの屋根で明るくかわいらしい印象に。愛犬との暮らしを考えた広い庭も備えている
色ムラのあるタイル調のアクセントクロスが空間に表情を与え、開放的なリビングの雰囲気を引き立てている
ハーフ吹抜を取り入れ、縦方向の開放感に加え、横にも広がりを感じられる空間を実現。高窓からたっぷり自然光が差し込み、家族や友人、愛犬が集う場に心地よさをもたらす
以前暮らしていたアパートでは狭くて料理がしにくかったため、新居では複数人でも余裕を持って作業できる広いキッチンに。大きいサイズをセレクトし、広い作業台で家族や友人と一緒に料理を楽しめる
白を基調とした空間に対し、キッチンは黒を採用し、折り下げ天井とともに引き締まった印象を演出
1階玄関ホール奥には、将来的にトリミングサロンを開き、お客さまを迎えられるように、壁付けの水栓を設けた専用スペースを確保。外から直接出入りできる専用ドアを設置している
キッチンから直接行き来できる洗面室は、家事動線を短縮し効率的な暮らしを実現。洗面化粧台の上部にも窓があるので、明るく快適な空間となっている
洗面室と脱衣室を独立させたことで、家族が同時に使っても混雑しにくく、スムーズに身支度や洗濯ができる
ファミリークロゼットが洗面室、脱衣室、ランドリールームと一直線に配置されているため、「脱ぐ・洗う・干す・しまう」の家事動線がスムーズに
花粉の時期も安心して室内干しができるランドリールーム。「翌日には洗濯物が乾くため、天候を気にせず洗濯ができるのが嬉しいですね」と夫人
玄関横に設置した、ゴルフバッグなども収納できる使い勝手の良いシューズインクローク。入り口は、やわらかな曲線のアーチ壁を採用
玄関の上がり框を斜めに設けることで、空間に広さを感じさせる工夫がされている。たくさんの靴をしまうことができる、天井まである靴箱も魅力的
ダークトーンでまとめた落ち着いた印象の寝室。隣接するウォークインクロゼットは収納力が高く、衣類や小物をすっきり整理できる
将来、中央部分で仕切れる、家族構成の変化や成長に合わせて使い方を変えていける子ども室
2階の階段ホールには飾り棚として使えるニッチを設け、季節の小物や思い出の品をさりげなく演出できる空間となっている
ハーフ吹抜の上部、小屋裏空間を活かしたシアタースペース。壁紙にはスクリーン用クロスを採用し、映画鑑賞を楽しめる空間に