SORAie

SORAie

【岩手県奥州市】その家に住む人のスタイルにピッタリな、"あなただけ"の家づくり
お気に入りに追加する
【自然素材/子育て世帯/間取り図有】家族の繋がりを大切にしたゆったり過ごせる住まい
SORAie 【自然素材/子育て世帯/間取り図有】家族の繋がりを大切にしたゆったり過ごせる住まいの建築実例画像1
  • 本体価格
    -
  • 延床面積
    145.74m2 (44.0坪)
    敷地面積
    -
    家族構成
    夫婦+子ども2人
  • 竣工年月
    2023年2月
    工法
    木造軸組
この会社をもっと知りたくなったら
無料でお届け!まずはカタログ請求

施主Sさんのこだわり

子どもの成長を楽しみながら様々な用途スペースをあわせ持つ住まい

信頼のできる住宅会社を探していたS様。SORAieとの出会いは以前建てていただいたお施主様のご紹介。シンプルな住宅をご希望であったが、弊社モデルハウスをとても気に入っていただき、ポイントで同じ仕様のマイホームが完成。小さなお子様もいる為、家事・育児優先の間取り、無垢材や漆喰等の自然素材を使用しこだわりの家づくりとなった。打ち合わせの中では細やかなところまで説明や相談ができ嬉しかった、お金の話もしやすかったと話してくれたS様。引き渡し後にはお腹にいたご家族も… 続きを読む

信頼のできる住宅会社を探していたS様。SORAieとの出会いは以前建てていただいたお施主様のご紹介。シンプルな住宅をご希望であったが、弊社モデルハウスをとても気に入っていただき、ポイントで同じ仕様のマイホームが完成。小さなお子様もいる為、家事・育児優先の間取り、無垢材や漆喰等の自然素材を使用しこだわりの家づくりとなった。打ち合わせの中では細やかなところまで説明や相談ができ嬉しかった、お金の話もしやすかったと話してくれたS様。引き渡し後にはお腹にいたご家族も加わり、賑やかで明るく素敵なマイホームとなり大満足いただけた。

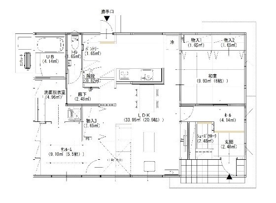
間取り図(4LDK+サンルーム)

1階
SORAie 【自然素材/子育て世帯/間取り図有】家族の繋がりを大切にしたゆったり過ごせる住まいの間取り図(4LDK+サンルーム)1階
2階
SORAie 【自然素材/子育て世帯/間取り図有】家族の繋がりを大切にしたゆったり過ごせる住まいの間取り図(4LDK+サンルーム)2階
この会社をもっと知りたくなったら
無料でお届け!まずはカタログ請求

内外観ギャラリー

この会社をもっと知りたくなったら
無料でお届け!まずはカタログ請求

この会社の他の建築実例を見る

この建築実例が気になった方へおすすめ

この建築実例の詳細情報

この建築実例を建てた店舗情報

住所 岩手県奥州市水沢字北田148-1
問い合わせ
0197-34-3511
  • ※営業時間内の対応となります。

  • ※お問い合わせの際は「SUUMO(スーモ)を見て」とお伝え下さい。

ホームページ この会社のホームページへ

SORAieのコンテンツ一覧

お問い合わせ

カタログをもらう
施工実例集
SORAieのカタログ(SORAie)
SORAie
問合コード:1789430001
イベントに参加する
お問い合わせ先
0197-34-3511
  • ※営業時間内の対応となります。

  • ※お問い合わせの際は「SUUMO(スーモ)を見て」とお伝え下さい。

  • 岩手県奥州市水沢字北田148-1

  • 定休日:水曜日・日曜日・年末年始

この会社のホームページへ

この会社が気になったら

カタログをもらう
施工実例集
SORAieのカタログ(SORAie)
SORAie
問合コード:1789430001
イベントに参加する

関連キーワード

この建築実例のその他の特徴
ページトップへ戻る