イオスホーム

無理のない資金計画で、お客様の夢の実現をお手伝い
お気に入りに追加する
埼玉県上尾市  Sさん
【1000万円台/30坪台/変形地/間取り図】たっぷりと明るいLDKに車2台分の駐車スペースを設計力で叶えた家
イオスホーム 【1000万円台/30坪台/変形地/間取り図】たっぷりと明るいLDKに車2台分の駐車スペースを設計力で叶えた家の建築実例画像1
  • 本体価格
    1,751万円
    55.4万円/坪
  • 延床面積
    104.54m2 (31.6坪)
    敷地面積
    118.41m2 (35.8坪)
    家族構成
    夫婦+子ども1人
  • 竣工年月
    -
    工法
    木造軸組
この会社をもっと知りたくなったら
無料でお届け!まずはカタログ請求

施主Sさんのこだわり

土地形状を活かしたユニークな設計。プライバシーにも配慮

Sさんが注文住宅を建てたのは、住宅街の道路と道路が交わるY字路。3辺が道路に接した、五角形に近い変形地だ。イオスホームには「シンプルでかっこいい外観」「明るいリビング」「2台分の駐車スペース」など、さまざまな要望を伝えた。変形敷地のため、一般的な設計手法だと凹凸の多い形状となってしまい、デザイン的にもコスト的にも、さらに建蔽率の観点からも望ましくなかった。そこで、敷地形状に合わせて折れ曲がる「くの字」型の建物を提案。北側に駐車スペースを確保するとともに、南… 続きを読む

Sさんが注文住宅を建てたのは、住宅街の道路と道路が交わるY字路。3辺が道路に接した、五角形に近い変形地だ。イオスホームには「シンプルでかっこいい外観」「明るいリビング」「2台分の駐車スペース」など、さまざまな要望を伝えた。変形敷地のため、一般的な設計手法だと凹凸の多い形状となってしまい、デザイン的にもコスト的にも、さらに建蔽率の観点からも望ましくなかった。そこで、敷地形状に合わせて折れ曲がる「くの字」型の建物を提案。北側に駐車スペースを確保するとともに、南側に開口を設けてたっぷりと陽ざしが入るようにした。「くの字」の折れ曲がりに合わせてリビングとダイニングをそれぞれ配置。リビング側は天井を上げて高い位置に窓を設け、通りからの視線も上手にかわしている。プランニングが難しい敷地だったが、熟練の設計士による工夫で、デメリットをメリットに変えた住まいが完成した。

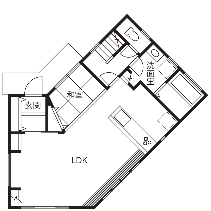
間取り図(3LDK +畳スペース)

1階
イオスホーム 【1000万円台/30坪台/変形地/間取り図】たっぷりと明るいLDKに車2台分の駐車スペースを設計力で叶えた家の間取り図(3LDK +畳スペース)1階
2階
イオスホーム 【1000万円台/30坪台/変形地/間取り図】たっぷりと明るいLDKに車2台分の駐車スペースを設計力で叶えた家の間取り図(3LDK +畳スペース)2階
この会社をもっと知りたくなったら
無料でお届け!まずはカタログ請求

内外観ギャラリー

この会社をもっと知りたくなったら
無料でお届け!まずはカタログ請求

この会社の他の建築実例を見る

この建築実例が気になった方へおすすめ

この建築実例の詳細情報

この建築実例を建てた店舗情報

住所 茨城県古河市本町2-5-2
問い合わせ
0120-12-5055
  • ※営業時間内の対応となります。

  • ※お問い合わせの際は「SUUMO(スーモ)を見て」とお伝え下さい。

ホームページ この会社のホームページへ

イオスホームのコンテンツ一覧

お問い合わせ

カタログをもらう
総合カタログ
イオスホームのカタログ(会社パンフレット)
会社パンフレット
問合コード:1205810002
お問い合わせ先
0120-12-5055
  • ※営業時間内の対応となります。

  • ※お問い合わせの際は「SUUMO(スーモ)を見て」とお伝え下さい。

  • 茨城県古河市本町2-5-2

  • 定休日:水曜日

この会社のホームページへ

この会社が気になったら

カタログをもらう
総合カタログ
イオスホームのカタログ(会社パンフレット)
会社パンフレット
問合コード:1205810002

関連キーワード

この建築実例のその他の特徴
ページトップへ戻る