旭化成ホームズ(ヘーベルハウス)

旭化成ホームズ(ヘーベルハウス)

都市の住まいづくりをもっと自由に
お気に入りに追加する
愛知県  Fさん
心も身体もリラックスして過ごせる 居心地のよさにこだわった住まい
旭化成ホームズ(ヘーベルハウス) 心も身体もリラックスして過ごせる 居心地のよさにこだわった住まいの建築実例画像1
  • 本体価格
    -
  • 延床面積
    144.72m2 (43.7坪)
    敷地面積
    -
    家族構成
    夫婦+子ども1 人
  • 竣工年月
    -
    工法
    重量鉄骨(重鉄制震・システムラーメン構造(プレハブ))
この会社をもっと知りたくなったら
無料でお届け!まずはカタログ請求

施主Fさんのこだわり

ヘリンボーンの床や、アーチ状の下がり壁で、憩いの空間を演出

暑さ寒さに悩まされず、明るく開放的に。暮らしやすい間取りや収納も実現したい。Fさんは新居で希望したことをヘーベルハウスで全て叶えたという。独自の鉄骨躯体とヘーベルウォールからなる構造は、耐震性・断熱性・遮音性・耐久性に優れ、住み心地だけでなく設計の自由度が高いのが特長。その強みが活かされたのが吹抜けで広々とした1階LDKと、対になるように設けられた中庭だ。LDKはランダムに配された大小のペンダントライト、ヘリンボーンの床、出入り口をアーチ状にした下がり壁な… 続きを読む

暑さ寒さに悩まされず、明るく開放的に。暮らしやすい間取りや収納も実現したい。Fさんは新居で希望したことをヘーベルハウスで全て叶えたという。独自の鉄骨躯体とヘーベルウォールからなる構造は、耐震性・断熱性・遮音性・耐久性に優れ、住み心地だけでなく設計の自由度が高いのが特長。その強みが活かされたのが吹抜けで広々とした1階LDKと、対になるように設けられた中庭だ。LDKはランダムに配された大小のペンダントライト、ヘリンボーンの床、出入り口をアーチ状にした下がり壁などで、やさしく包み込まれるような心地よい空間に。中庭へ空からの光が降り注ぎ、室内は一日を通してとても明るい。 「設計の方はヨーロッパの教会からLDK空間のイメージを膨らませたそうです。中庭は壁で囲まれ、窓にカーテンが必要ないのでとても開放的です」とFさん。中庭では子どもや孫がプールで遊んだり、卓球台を置いて試合をしたり、多目的に活用しているそう。オープンな室内をすっきり保てるよう納戸やクローゼットなど収納もしっかり確保。浴室隣に洗濯機とガス乾燥機を置き、家事負担も軽減した。「各部屋から中庭のモミジが四季で変化する様子を眺められるのがお気に入りです」。

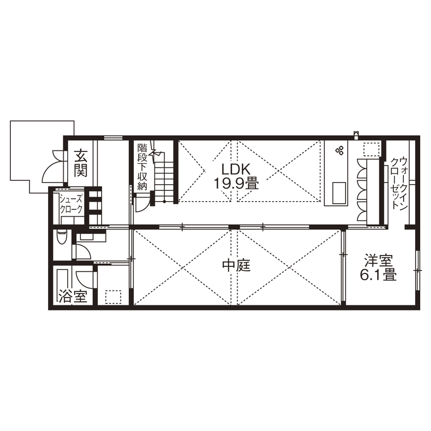
間取り図(4LDK)

1階
旭化成ホームズ(ヘーベルハウス) 心も身体もリラックスして過ごせる 居心地のよさにこだわった住まいの間取り図(4LDK)1階
2階
旭化成ホームズ(ヘーベルハウス) 心も身体もリラックスして過ごせる 居心地のよさにこだわった住まいの間取り図(4LDK)2階
この会社をもっと知りたくなったら
無料でお届け!まずはカタログ請求

内外観ギャラリー

この会社をもっと知りたくなったら
無料でお届け!まずはカタログ請求

この会社の他の建築実例を見る

この建築実例が気になった方へおすすめ

この建築実例の詳細情報

旭化成ホームズ(ヘーベルハウス)のコンテンツ一覧

お問い合わせ

カタログをもらう
カタログ一覧
※1社で請求できるカタログは3冊までです。

この会社が気になったら

カタログをもらう

関連キーワード

この建築実例のその他の特徴
ページトップへ戻る